圣吉罗拉莫堂区教堂,意大利 / nettiarchitetti
这项工程历时约30年完成设计与建造,其特色在于将新建的圣杰罗姆教堂单殿大厅与既有圣杰罗姆教区建筑(1958年)融为一体。
Completing a design and construction process that lasted about 30 years, the work is characterized by the union of the single-nave hall of the new church of San Girolamo with the existing building of the San Girolamo Parish (1958).
▼项目概览,Project overview

▼项目概览,Project overview

▼建筑远景,Bird-view of the project

▼沿街立面,Street-view of the Project

在礼拜空间内,采光由天窗提供,天窗勾勒出教堂的形体轮廓:入口处低矮宽阔,向后逐渐高耸收窄。这一透视设计强化了建筑的纵向尺度,亦象征着“更高秩序”的存在。
In the liturgical space, light is provided by skylights that define the outline of the volume of the church, low and wide at the entrance, high and narrow toward the back: a perspective machine that accentuates the longitudinal dimensions of the building and recalls the presence of a ‘higher order.’
▼入口立面,Entrance facade


▼侧立面,Side facade


▼背立面,Back side facade

教区建筑群的两部分由两主体间狭小的梯形空间相连,高差则通过设于圣徒礼拜堂体量内的室内楼梯得以消解。新建楼梯连通既有圣器室,该圣器室仍为新教堂履行原有功能,同时衔接将被改造为牧灵活动大厅的旧教堂。牧师办公室与教区档案库房仍保留在既有建筑内。

▼轴侧图,Axon diagram

The two parts of the parish complex are connected by the small narrow trapezoidal volume between the two bodies whose differences in elevation are overcome by the internal staircase placed in the volume of the Chapel of the Saint. The new staircase accesses the existing Sacristy that continues to fulfill its function in favor of the new church and connects the existing church intended to become a hall for pastoral activities. The pastor’s office and the parish archives also remain in the existing building.
▼礼拜空间,The liturgical space


▼门的变动,Changing door


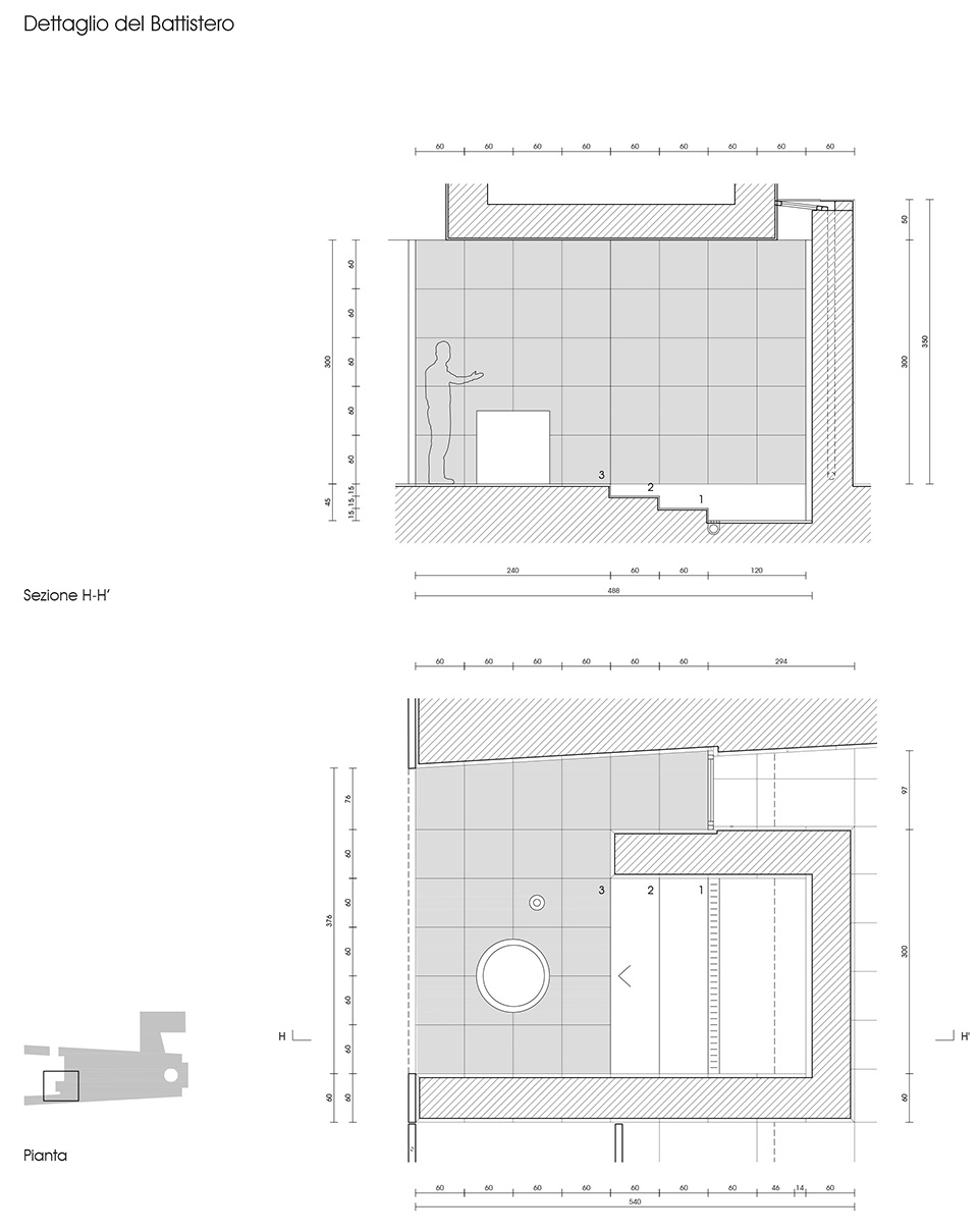
▼洗礼区,Baptistery

新建建筑所在地块为教区自有、与圣杰罗姆街垂直相交的一片土地。礼拜大厅的具体形态由可用场地的几何条件决定。
The lot that houses the new volume is a parcel of land transversal to St. Jerome Street already owned by the parish. The very shape of the liturgical hall was dictated by the geometry of the available land.
▼细部,Details

外部景观设计围绕建筑预留空间展开,建筑规模尽可能最大化,以容纳这座城市一处条件艰苦的城郊社区的全体信众。开阔的教堂庭院朝教堂立面微微抬升,形成一处小型广场,隐匿于街道、钟楼、洗礼堂拱顶体量与入口立面之间。

The exterior arrangements concern the residual space of the desired building of the maximum possible extent to accommodate the entire community of a difficult suburban neighborhood of the city. The wide churchyard, slightly rising toward the elevation of the church, realizes a small square recessed between the street, the bell tower, the extrados volume of the baptistery and the front of the entrances.
▼场地图,Site plan

▼平面图,Floor plan

▼立面图,Floor plan



▼剖面图,Section



▼细部图,Details


Design and art direction: Lorenzo Netti, Gloria A. Valente / nettiarchitetti
Building manager: Diego Bosco
MEP/FP engineer: Giuseppe Bitetti
Structural engineer: Chiaia & Zaccaria Engineering Srl
Safety manager: Luigi Nigro / CNC sstp
Contractor: Garibaldi Fragasso
Wood works: For.Coll. Snc
Metal works: Metalvetro Snc
Art works: Progetto Arte Poli Srl
Project team: Egidio Buonamassa, Roberto Carlucci, Michele Caputo, Vittorio Carofiglio, Michele Carone, Maria Cirulli, Graziana A. Cito, Giove Zeus Daresta, Giampio De Meo, Davide De Santis, Marina Dimatteo, Elita D’Onghia, Giovanna Ferri, Martina Gentile, Giuseppe Giannone, Francesco P. Gismondi, Rosanna Lamanna, Francesca Leo, Valentina Mansi, Daniela Martielli, Salvatore Mele, Michele Montalto, Lillo Montemurro, Domenico Pastore, Michelangelo Pinto, Vito Primavera, Valentina Talamo, Anna Zanni
Photography: Alberto Muciaccia, Antonio and Roberto Tartaglione
Preliminary design team: Lorenzo Netti, Gloria A. Valente, Grazio Vitantonio Frallonardo, Vincenzo Milella, Pietro Milella, Michele Colasuonno














