青年聚场,浙江 / 衍述设计
在县城城镇化进程中,存在一类遗留空间:既非规划意义上的公共场所,也未成为有效的居民服务配套。它们诞生于封闭社区的开发逻辑,却缺乏相应的管理机制,因而长期闲置。松阳青年社区更新正是围绕这类“剩余空间”展开——通过低成本、轻构筑的介入,重组其空间结构与使用关系,探索县城社区公共空间的再激活路径。
In the context of county-level urbanization, a particular type of residual space persists—neither formal public realm nor functional residential amenity. Born from gated community development logic yet lacking effective management, these spaces have remained idle for years. The Youth Community Renewal in Songyang takes precisely such residual spaces as its point of departure: through low-cost, lightweight interventions that reorganize spatial structures and patterns of use, it explores pathways to reactivate public space within county-level communities.
▼廊架与二层平台鸟瞰,Canopy Frame and Second-floor Platform Aerial

▼项目与松阳县城鸟瞰,Project in Songyang County Aerial

▼跃动平台铺装图案鸟瞰,Active Platform Paving Pattern Aerial

缘起与场地 Origin and Site
2024年10月底,我们受邀介入松阳县南城区一处青年社区。委托方并未给出详细任务书,只是提出一个开放性问题:整个社区可以做些什么来提升居住品质?委托方同时提到,平台下方一层空间未来计划改造为社区共享厨房。经过踏勘与研判,我们将设计聚焦于社区内部一处由住宅楼围合的二层平台及其周边剩余空间——它是整个片区中最具公共潜力、却最被忽视的场所。设计从这一判断出发,建立起一条从街道到平台、从地面到屋顶的空间序列,同时为包括共享厨房在内的后续分期更新预留结构接口。
▼改造前,Before Renovation


In late October 2024, Studio RE+N was invited to intervene in a youth community in the southern district of Songyang County. No detailed brief was provided—only an open-ended question: what could be done to improve the overall living quality of the neighborhood? The client also mentioned that the ground-floor space beneath the platform was envisioned for future conversion into a shared community kitchen. After site investigations and assessment, the design focused on a second-floor platform enclosed by residential buildings and its surrounding residual spaces—the most publicly promising yet most neglected area within the complex. Starting from this judgment, the design establishes a spatial sequence from street to platform, from ground to rooftop, while reserving structural interfaces for phased future updates including the shared kitchen.
▼临街界面螺旋楼梯塔与互动装置,Street Interface_Spiral Stair Tower and Interactive Installation

项目位于松阴溪以南的水南街道片区,由多栋住宅楼围合,西邻松阳五中。该社区建于2015至2017年间,但长期未能有效运营。场地包括二层屋顶平台及若干零散绿地,平台荒废多年,地面开裂、设施缺失;平台下场地东侧另有一处简易公共卫生间已破败闲置。尽管地处县城新城居住区,却因缺乏物理可达性与清晰的使用逻辑,始终未被有效利用。2024年,社区转为保障性青年公寓,越来越多的青年人开始入住,日常运动、交流与公共活动的需求逐渐浮现,原有空间已难以承载新的使用强度与行为类型。考虑到场地权属、用地性质与预算限制,设计提出“低成本、轻建构、高适应性”的介入原则,重新组织片区的公共空间系统,使其具备持续使用与演化的可能。
The project is situated south of Songyin Creek in the Shuinan Sub-district, enclosed by multiple residential buildings and adjacent to Songyang No. 5 Middle School to the west. The community was built between 2015 and 2017 but failed to operate effectively for years. The site comprises a second-floor rooftop platform and several scattered green areas. The platform had been derelict for years—its surface cracked and facilities absent—while a rudimentary public restroom on site had fallen into disrepair. Despite its location in the county’s newer residential district, the lack of physical accessibility and clear programmatic logic left these spaces largely unused. In 2024, the community was converted into subsidized youth housing, and a growing number of young residents moved in. Demands for daily exercise, social interaction, and communal activities emerged—demands the existing spaces could no longer accommodate. Given constraints of land ownership, zoning designation, and budget, the design proposed principles of low cost, light structure, and high adaptability to reorganize the public space system, enabling sustained use and future evolution.
▼总平面图,Site Plan

▼场地纵剖面图,Site Longitudinal Section

三重嵌套策略:从构筑介入到行为生成Nested Strategy: From Built Intervention to Behavioral Emergence
设计策略基于三重逻辑:构筑系统重塑边界与动线,模块节点植入功能场景,铺装图案引导行为路径。三者协同作用,将原本单一沉寂的场地转化为多入口、多停留点、多事件的日常公共空间。
The design strategy operates through three interlocking layers: the structural system reshapes boundaries and circulation; modular nodes insert programmatic scenarios; paving patterns guide behavioral paths. Working in concert, these layers transform a formerly monotonous site into an everyday public space with multiple entries, gathering points, and possibilities for events.
▼廊架下日常运动,Daily Exercise under Canopy Frame

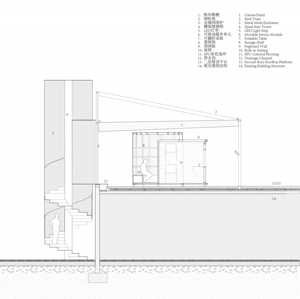
在二层平台西侧,设计植入一组红色轻钢构筑。一条通透的线性廊架确立新的街道界面,一座螺旋楼梯塔打破高差,在街道与平台之间建立可达路径。廊架顶部悬挂帆布,调节光影、划定边界,形成兼具遮蔽与开放的微气候空间。原本封闭内向的二层平台由此转化为具有双面朝向的开放界面,成为街道与社区之间新的接触面。底层临街墙面以红色涂装配合白色图形标识,以图示语言传达各模块的使用方式与组合可能。
On the west side of the second-floor platform, a series of red light-steel structures is introduced. A permeable linear canopy frame establishes a new street interface, while a spiral stair tower bridges the level difference, creating an accessible path between street and platform. Canvas panels hang from the canopy, modulating light and shadow, defining spatial edges, and forming a microclimate that balances shelter with openness. The formerly enclosed, inward-facing platform is thus transformed into a double-sided open interface—a new zone of contact between street and community. On the ground-level street-facing wall, red-painted surfaces with white graphic icons communicate the modules’ uses and combinatorial possibilities through visual language.
▼螺旋楼梯塔与图案墙面,Spiral Stair Tower with Patterned Wall

廊架下,可移动的服务单元模块和阶梯模块灵活布置,承载不同类型的社区活动。可移动服务单元内部设置座椅、可翻折桌板、置物架以及墙面洞洞板,为未来运营留有更多接口。夜幕降临,灯带嵌入廊架构筑缝隙,结构从白日的轻盈骨架转化为柔和的发光体。模糊的场地边缘,在光影中被重新界定为可亲近、可停留的社区边界。
Beneath the canopy frame, movable service modules and stepped seating units are flexibly arranged to accommodate various community activities. Inside, seating, foldable tables, storage shelves, and pegboard walls provide interfaces for future programming and adaptation. As night falls, LED strips embedded in the structural joints transform the daytime skeletal frame into a soft, glowing presence. The once ambiguous site edges are redefined through light as approachable, inhabitable community boundaries.
▼廊架大样剖面图,Canopy Frame Detail Section

▼构筑模块轴测分析图,Modular Structure Axonometric Diagram

空间原型转译 Spatial Archetypes Reinterpreted
构筑语言并非直接复制传统形式,而是从空间原型承载的行为逻辑出发,以当代材料与建造方式加以转译。螺旋楼梯塔借鉴“塔”的原型——垂直通达,同时标识入口;线性廊架回应“廊”的遮蔽与通透逻辑——随日夜、季节调节空间状态;弧形卫生间模块由两个服务单元组合而成,参照“龛”的围合特征,弧形推拉门的开合则呼应“帘”的收放逻辑,界定内外。可移动看台与驿站模块引入“亭”“台”语义,为停留、观演与互动提供空间支点,也构成可灵活重组的临时节点。临街一侧另设互动灯光装置,采用榫卯拼接逻辑,儿童可以攀爬,装置预制后现场快速组装,作为社区的标志性构筑。这种对空间原型的再构,使陌生场地获得文化上可识别、结构上可适应的空间肌理。
▼改造前 原有卫生间,Before Renovation Original Restroom

The architectural language does not directly replicate traditional forms, but rather translates the behavioral logic embedded in spatial archetypes through contemporary materials and construction methods. The spiral stair tower draws on the archetype of the tower—providing vertical passage while marking the entrance. The linear canopy frame responds to the logic of the corridor—sheltering yet permeable—adjusting spatial conditions with time and season. The curved restroom module, composed of two service units, references the enclosure of the niche, while its curved sliding doors echo the logic of the curtain—gathering and releasing—to define interior and exterior. Movable bleachers and station modules invoke the semantics of pavilion and terrace, providing spatial anchors for gathering, viewing, and interaction, while forming flexible, reconfigurable nodes. Along the street edge, an interactive lighting installation employs mortise-and-tenon assembly logic; climbable by children, it is prefabricated and rapidly assembled on site to serve as a landmark structure for the community. This reinterpretation of spatial archetypes grants the unfamiliar site a spatial texture that is culturally legible and structurally adaptable.
▼互动灯光装置与儿童,Interactive Lighting Installation with Children

▼互动装置内部与儿童,Inside Interactive Installation with Child

▼可移动服务单元与居民,Movable Service Module with Residents

▼服务单元内部框景,Framed View from Service Module

▼服务单元弧形座椅,Curved Seating inside Service Module

▼服务单元内部,Service Module Interior

▼可移动阶梯与社区聚集,Movable Stepped Seating and Community Gathering

▼弧形卫生间模块鸟瞰,Curved Restroom Module Aerial

▼弧形卫生间 帘幕开合,Curved Restroom Curtain Opening and Closing

▼弧形卫生间内部,Curved Restroom Interior

▼卫生间洗手区,Restroom Washing Area

▼互动灯光装置剖面图,Interactive Lighting Installation Section

▼弧形卫生间模块平面剖面图,Curved Restroom Module Plan and Section

跃动平台 The Active Platform
原本闲置的屋顶平台被重新定义为“跃动平台”——一处融合运动、社交、展演与休憩的复合公共场所。铺装系统采用放射与环形结合的组织方式,通过色彩、图案变化引导人群流线,建立具有方向感与层级感的图底结构,串联各功能区域。跑道线从放射图案中自然生长,运动边界与铺装肌理合为一体,使功能区域的划分不依赖硬质隔断,而是通过图底关系自行显现。图案一直延伸到东侧的台阶,将东西向的公共空间联动起来。功能布局涵盖乒乓球区、羽毛球场、健身区域、跑道,支持日常身体活动与社区事件的多样需求。可移动的阶梯为即兴表演、围观聚集与社区活动提供空间条件,强化场地的开放性与自发使用的可能。
▼改造前 东侧大楼梯,Before Renovation East Grand Staircase

The formerly idle rooftop platform is redefined as the Active Platform—a hybrid public space integrating sports, social interaction, performance, and leisure. The paving system combines radial and concentric patterns, using color and graphic variations to guide pedestrian flow and establish a figure-ground structure with directionality and hierarchy, linking functional zones across the platform. Running track lines emerge organically from the radial patterns, merging athletic boundaries with the paving texture so that functional zoning arises not from hard barriers but from the figure-ground relationship itself. The patterns extend to the stepped seating on the east side, connecting public spaces along the east-west axis. The program includes table tennis areas, a badminton court, fitness zones, and a running track, supporting both daily physical activities and diverse community events. Movable stepped elements provide spatial conditions for impromptu performances, casual gatherings, and community activities, reinforcing the site’s openness and potential for spontaneous use.
▼社区庭院鸟瞰,Community Courtyard Aerial

▼铺装图案与运动设施俯瞰,Paving Pattern and Sports Facilities Overhead

▼跃动平台与公寓立面全景,Active Platform and Apartment Facades Panorama

▼乒乓球活动场景,Table Tennis Scene

▼羽毛球活动场景,Badminton Scene

▼平台平面图,Platform Plan

▼场地纵剖面图,Site Longitudinal Section

材料与建造Materials and Construction
构筑系统以红色钢结构为主体骨架,辅以金属网围护。服务单元立面由钢筋围护,钢筋以一定间距排列形成通透的围合界面,统一喷涂红色,强调轻质感与可组装性。原有平台完成结构修缮与防水处理后,地面采用高耐候SPU彩色地坪,兼顾气候适应与后期维护。整体色彩以粉、蓝、绿为主色调,营造明快、年轻的视觉氛围;临街和二层平台两侧建筑立面亦通过低成本色彩更新凹入的阳台,与平台形成色彩上的呼应。所有模块均采用预制化设计,现场快速拼装,具备后续调整与替换的灵活性,为公共空间的长期运营提供结构基础。目前落地的为第一期,后续预计对北侧绿地平台、自行车棚以及前述的平台下方一层空间(规划为社区共享厨房)等进行二期更新。
The structural system uses red-painted steel as its primary framework, supplemented by metal mesh and vertically arrayed rebar forming permeable enclosures—all uniformly spray-painted red—emphasizing lightness and assemblability. Following structural repair and waterproofing of the existing platform, the surface employs high-durability SPU colored flooring, balancing climate resilience with long-term maintainability. The overall palette—pink, blue, and green—creates a vibrant, youthful visual atmosphere; on the building facades flanking the street and platform, recessed balconies are refreshed with low-cost color treatments, establishing a chromatic dialogue with the renewed platform. All modules are prefabricated for rapid on-site assembly, with built-in flexibility for future adjustments and replacements, providing a structural foundation for long-term operation. The current implementation constitutes Phase I; Phase II is planned for the northern green platform, bicycle shelters, and the aforementioned ground-floor space beneath the platform (planned as a shared community kitchen).
▼彩色阶梯与跑者,Colored Steps with Runner

运营激活与社区日常 Activation and Community Life
项目关注的并非单一构筑的完成,而是通过空间介入激活一套公共性系统——空间、行为与治理机制在此共同生成。每个模块既是物理节点,也是行为触发器:提供支撑,也设定情境。
The project’s focus extends beyond the completion of individual structures to activating a system of publicness through spatial intervention—where space, behavior, and governance mechanisms are co-produced. Each module serves as both a physical node and a behavioral trigger: providing support while setting the scene.
▼黄昏廊架亮灯鸟瞰,Illuminated Canopy Frame at Dusk Aerial

▼夜间音乐活动鸟瞰,Music Event at Night Aerial

运营阶段,政府与运营方每月引入不同主题的社区活动——音乐演出、社群市集、公共交流。周边居民在此练舞、运动、夜间聚会,构筑体、路径与使用者之间形成持续流动的日常秩序。公共空间不再是预设功能的容器,而是一套随使用持续演化的行为系统。
During the operational phase, the government and community operators introduce monthly themed community programs—music performances, neighborhood markets, and public forums. Nearby residents practice dance, exercise, and hold evening gatherings here, forming a continuously flowing everyday order among structures, pathways, and users. Public space is no longer a container for predetermined functions, but a behavioral system that continually evolves through use.
▼夜间音乐演出正面,Music Performance Front View at Night

▼夜间音乐演出全景,Music Performance Panorama at Night

我们希望这不仅是一个社区空间项目,更是一种在县城语境下的尝试:以最小物质换取最大参与,以轻量机制引导持久行为。「聚场」之名由此而来——它不是预设的剧场,却因日常的聚集不断生成着即兴的剧情。当傍晚的灯带亮起,螺旋塔下有人聚集,平台上有人跑跳,这片曾经被遗忘的屋顶便重新进入了县城的日常。
We hope this is not merely a community space project, but an experiment in the county-level context: achieving maximum participation with minimum material, guiding lasting behavior through lightweight mechanisms. The project’s name, juchang—“gathering ground”—finds its meaning here. A homophone of the Chinese word for “theater,” it was never conceived as a predetermined stage, yet through everyday gathering, it ceaselessly generates its own impromptu drama. When the evening lights come on and people gather beneath the spiral tower, when others run and play on the platform—this once-forgotten rooftop re-enters the everyday life of the town
▼活动模式切换,Activity Mode Transition

Project name: Youth Commons
Project type: Architecture / Renovation
Design: Studio RE+N
Website: https://www.studio-re-n.com/
Contact e-mail: info@studio-re-n.com
Design year: 2024.11–2025.3
Completion Year: 2025
Leader designer & Team: Yuting Zhang (Lead Architect), Zhang Pu, Wei Haiqi (Intern), Liu Yuhao (Intern)
Project location: Shuinan Sub-district, Songyang County, Zhejiang, China
Gross built area: 200 sqm (Site area: 1,300 sqm)
Photo credit: Kejia Mei, Studio RE+N
Partner: Structural / Construction Drawings: Songyang County Architectural Design Co., Ltd.; Construction: Songyang County Zimin Municipal Engineering Co., Ltd.
Clients: Songyang County Xingmin New Rural Construction Development Co., Ltd.
Materials: Steel, metal mesh, rebar, canvas, SPU.














