梅克斯普拉斯敬老院,比利时 / FELT
一座现有别墅构成了改造的起点,旨在将其转变为一所为心理健康挑战者提供服务的敬老院。建筑被剥离至其原始结构,房屋失去了屋顶和饰面,显露出平行墙体简洁的逻辑。这一结构成为了新规划的整体框架,一条宽敞的走廊串联起一系列独立的工作室。
An existing villa forms the starting point for the transformation into a care home for people with mental health challenges. Stripped down to its bare structure, the house loses its roof and finishes, revealing the simple logic of parallel walls. This structure becomes the framework for a new plan, where a generous corridor connects a sequence of independent studios.
▼项目外观,Exterior view



同样的设计理念延伸至一个新的侧翼,其中容纳了第二个居住单元。它们共同构成了一座双联式居所,使八位居住者能同住一个屋檐下。该项目探索了集体关怀与个体生活之间的微妙平衡,这是关怀建筑核心中永恒存在的一种张力。
▼轴测图,Axon diagram

The same concept is extended in a new wing that houses a second commune. Together, they form a double residence, each accommodating eight inhabitants under one roof. The project explores the delicate balance between collective care and individual living, a perpetual tension at the heart of care architecture.
▼双联式居所,A double residence


面向街道的一面,建筑呈现出统一的立面。而在背面,一系列呈节奏排列的三角墙屋顶徐徐展开,每一座都标识着一个私人房间的尺度。这种重复创造了对建筑的分层解读:如同一个个小房子聚集而成的一个集体之家。
Towards the street, the building presents a unified front. At the rear, a rhythmic series of gabled roofs unfolds, each marking the scale of a private room. This repetition creates a layered reading of the building: a cluster of small houses gathered into one collective home.
▼呈节奏排列的三角墙,A rhythmic series of gabled roofs


▼立面局部,Partial view of the building

建筑采用克制的浅灰色材料基调,使其根植于绿色的环境之中。砖、细部精致的细木工板以及落水管都融入了这种柔和的色调之中。这种平静的对比使建筑既能安处于景观之内,同时又保持着清晰而自信的存在感。

A restrained palette of light grey materials grounds the building in its green surroundings. Brick, slate and finely detailed joinery share the same soft tonality, with even gutters and downpipes absorbed into this muted spectrum. The calm contrast allows the architecture to settle into the landscape while maintaining a clear, confident presence.
▼植于绿色的环境,Building in green surroundings


▼窗景,Window view

建筑形式遵循着同样沉静的法则。宽敞且富有节奏感的开窗框定了花园的景致,而水平的构图赋予建筑一种沉着、近乎庄严的特质。立面平面的微妙变化使体量保持亲切感,并有助于建筑群自然地融入别墅区。最终呈现的是一座温和的房子:结构清晰,表达有度,并周到地适应着那些将称之为家的人们。

The form follows the same quiet discipline. Generous, rhythmic openings frame views of the garden, while the horizontal composition lends the building a composed, almost solemn character. A subtle shift in the façade plane keeps the volume familiar and helps the ensemble integrate naturally into the villa district. The result is a gentle house: clear in structure, measured in expression and thoughtfully attuned to the people who will call it home.
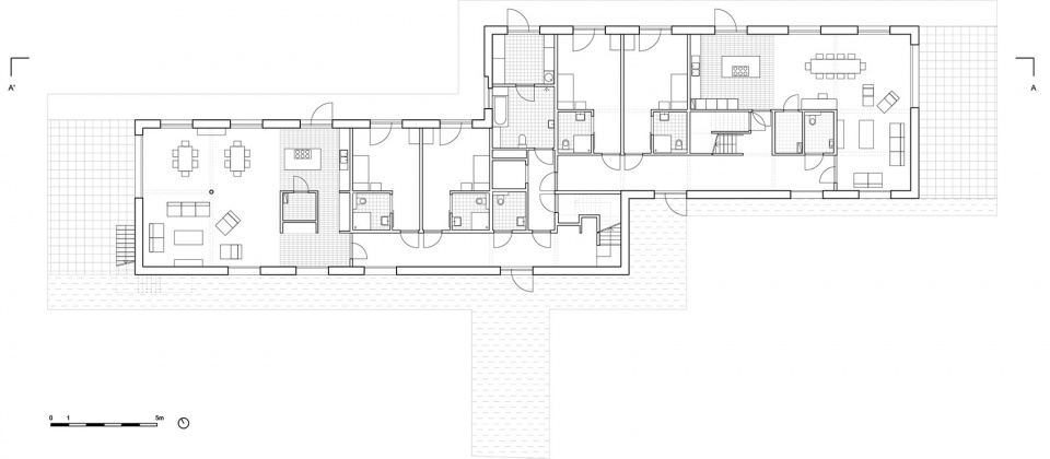
▼首层平面图,First floor plan

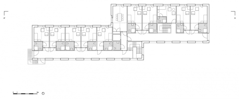
▼二层平面图,Second floor plan

▼剖面图,Section

▼细部图,Details

location: BE, Merksplas
client: vzw Emmaus
surface: 850 sqm
status: built (2025)
images: FELT
photos: Stijn Bollaert
consultants: Robuust














