林芝市工布江达县医院整体搬迁(县人民医院、县藏医院)项目,西藏 / 同济四时方院研究中心
在高原河谷中,实现现代医学与藏医文化的共生。
Achieving symbiosis between modern medicine and Tibetan medical culture in a high-altitude river valley.
▼鸟瞰全景,Aerial Panoramic view

西藏林芝工布江达,藏语意为“凹地大谷口”,这片平均海拔3600米的土地,坐落于藏南谷地向藏东高山峡谷区的过渡地带,尼洋河穿境而过,印度洋暖湿气流造就了它相对温和湿润的高原气候,也孕育了藏族传承千年的自然观与建造智慧。
Gongbujiangda County in Nyingchi City, Tibet — its name means “large valley mouth of the depression” in Tibetan. This land, with an average elevation of 3,600 meters, is located in the transitional zone from the southern Tibetan valley to the high mountain and gorge region of eastern Tibet. The Nyang River flows through it, and the warm, humid air currents from the Indian Ocean have created a relatively mild and moist highland climate, which has also nurtured the Tibetan people’s millennia-old views of nature and wisdom in construction.
▼高山河谷地貌,High Mountain River Valley Landform

▼山中一瞥,glance from the mountain


1 场地与缘起:高原河谷的医疗困境与发展期待Site and Origin: Medical Challenges and Development Expectations in a High-Altitude River Valley
工布江达曾因318国道成为拉萨与林芝之间的核心交通枢纽,而林拉公路、拉林铁路的相继开通,让其区位优势逐渐式微。当地政府希望以县医院的建设为契机,补齐民生短板,同时提振区域发展的信心。
▼场地区位,Site Location

Once a key transportation hub between Lhasa and Nyingchi due to National Highway 318, Gongbujiangda has seen its locational advantages gradually diminish following the successive openings of the Linzhi–Lhasa Highway and the Lhasa–Nyingchi Railway. The local government hopes to seize the opportunity presented by the construction of the county hospital to address gaps in public welfare and, at the same time, boost confidence in regional development.
▼工布江达县城重要视觉焦点,Visual Focal Point of Gongbujiangda County Town

2 总体布局:顺应自然,与河谷共生的形体逻辑Overall Layout: Form Logic that Follows Nature and Achieves Symbiosis with the River Valley
藏地营造的核心,从来不是人工对自然的改造,而是建筑与环境的长久共生。设计以自然营造学为基本立场,从场地条件与气候特征出发,完成了建筑形体的在地化生成。首先对不规则用地进行系统性划分,保留场地内已建成的四层妇幼中心和藏医院制剂中心,同时在西侧预留远期康养用地,实现已建、本期、远期的全土地周期规划;之后将东侧主体建筑人民医院进行拔高,面向城市门户形成标志性形象,同时临近已建妇幼中心实现功能紧密联动。西侧设置藏医院建筑,形成连续的城市界面。为改善医疗环境,在建筑中置入多组院落单元,并将建筑屋顶转化为可眺望河谷美景的疗愈休憩平台,为病患与医护人员提供可亲近自然的疗愈场所。
▼建筑形体生成逻辑,Architectural Form Generation Logic

The essence of Tibetan construction has never been about human intervention to transform nature, but rather about the enduring symbiosis between architecture and environment. Grounded in the principles of natural construction, the design proceeds from the site conditions and climatic characteristics to achieve a contextually generated architectural form.First, systematically subdivide the irregularly shaped site, preserving the existing four-story Maternity and Child Health Center and the Tibetan Hospital Preparation Center, while reserving land for future wellness and elderly care facilities on the west side, thereby achieving a full land-use cycle encompassing existing buildings, the current phase, and long-term development. Subsequently, raise the height of the main building of the People’s Hospital on the east side to create a landmark image facing the city gateway, while ensuring functional integration with the adjacent existing Maternity and Child Health Center. Place the Tibetan Hospital building on the west side to form a continuous urban interface. To improve the healing environment, introduce multiple courtyard units into the building complex and transform the rooftops into therapeutic rest platforms overlooking the river valley, providing patients and medical staff with healing spaces that allow close contact with nature.
▼对岸人视,Distant view from the river bank

针对藏地东风为主的主导风向,设计以东侧塔楼形成天然风屏障,并在建筑西侧挑空半室外空间形成导风洞。建筑内部设置多处采光洞口,顶部打造观景台,以框景、对景的设计手法,将尼洋河谷与周边山脉的自然景观引入建筑内部,从功能与心理双重维度,呼应藏族传统“天人合一”的哲学思想,让自然为身心疗愈赋能。
In response to the prevailing easterly wind direction in Tibet, the design uses the east tower as a natural wind barrier and creates a wind-guiding opening in the elevated semi-outdoor space on the west side of the building. Multiple light-collecting openings are provided within the building, and an observation deck is created at the top. Through design techniques such as framed views and aligned vistas, the natural scenery of the Nyang River Valley and surrounding mountains is introduced into the interior. This approach addresses both functional and psychological dimensions, echoing the traditional Tibetan philosophy of “unity of heaven and humanity,” allowing nature to empower physical and mental healing.
▼对岸人视,Distant view from the river bank

3 功能融合:打破壁垒,藏西医的共生疗愈体系Functional Integration: Breaking Down Barriers – A Symbiotic Healing System of Tibetan and Western Medicine
项目的核心设计目标,是打破现代综合医院的冰冷感,打造现代医学与藏医学相互融合、协同发展的医疗空间。面对业主提出的拆改已建妇幼医院的需求,设计团队从援藏资金的合理利用与医疗资源的高效整合出发,最终放弃拆改方案,转而通过疗愈平台将已有妇幼医疗中心、新建综合医院、藏医院三大功能体块有机串联,既实现了三大医疗中心的医技资源共享与互联互通,也在用地紧张的院区中,为病患创造了屋顶活动平台、室内公共空间等多样化的休闲与交往疗愈环境。
▼医技共享平台,Shared Medical Technology Platform

The core design objective of the project is to break away from the coldness typical of modern general hospitals, and create a medical space where modern medicine and Tibetan medicine are mutually integrated and developed in synergy. Faced with the client’s request to demolish and rebuild the existing Maternity and Child Health Center, the design team, taking into account the rational use of aid funds from Tibet and the efficient integration of medical resources, ultimately abandoned the demolition plan. Instead, they used a healing platform to organically connect the three major functional blocks—the existing Maternity and Child Health Center, the newly built general hospital, and the Tibetan hospital. This approach not only enables the sharing of medical technology resources and interconnectivity among the three medical centers but also creates diverse recreational and social healing environments—such as rooftop activity platforms and interior public spaces—for patients within the constrained site.
▼屋顶活动平台,Rooftop Activity Platform

4 空间叙事:藏地文化的疗愈性转译Spatial Narrative: A Healing Transposition of Tibetan Culture
对于藏族同胞而言,疗愈从来不止于身体的康复,更关乎精神的安宁。设计深度挖掘藏地文化与宗教信仰中的疗愈内核,将民族日常的行为模式与文化符号,转化为建筑空间的叙事语言。
For Tibetan compatriots, healing has never been merely about physical recovery; it is equally concerned with spiritual peace. The design deeply explores the healing essence embedded in Tibetan culture and religious beliefs, transforming the daily behavioral patterns and cultural symbols of the people into the narrative language of architectural space.
▼风洞远眺,Distant view of the Light Tower

▼风洞远眺,Distant view of the Light Tower

顺时针的疗愈路径The Clockwise Healing Path
转经是当地人融入日常的祈福行为,顺时针的祈福行走模式,早已成为刻在民族骨子里的空间习惯。设计以此为灵感,在各个单体之间打造了统筹全局的二层平台,并设计了一条顺应祈福的疗愈路径。这条疗愈路径从入口广场的旋转梯段起始,盘旋而上,串联起建筑内各个自然疗愈景观节点。行走其间,河谷与雪山的景致通过框景、对景的手法不断映入眼帘,让病患的康复行走与日常的祈福行为合二为一,实现身体与精神的双重疗愈。
▼疗愈路径,Healing Path

Turning prayer wheels is a blessing ritual integrated into the daily lives of the local people. The clockwise walking pattern for prayer has long become a spatial habit ingrained in the ethnic psyche. Drawing inspiration from this, the design creates a second-floor platform that coordinates the overall circulation among the various buildings, and designs a healing path that follows the prayer direction. This healing path begins with a spiral staircase at the entrance plaza and winds upward, connecting various natural healing landscape nodes within the building. As one walks along it, views of the river valley and snow-capped mountains continuously come into sight through framed vistas and aligned scenery. This integration merges the patient’s rehabilitative walking with daily prayer practices, achieving dual healing of both body and spirit.
▼疗愈路径与节点设计,Healing Path and Node Design


▼疗愈路径与节点设计,Healing Path and Node Design


光塔:藏地文化的空间锚点 Light Tower: Spatial Anchor of Tibetan Culture
设计以工布江达本地的秀巴古堡为空间原型——这片西藏现存最古老、保存最完整的古堡群,承载着藏族千年的建造智慧。在藏医院区域,设计以一座光塔串起所有藏医特色诊疗空间,完成了地域文化的当代转译。
▼秀巴古堡原型,Xiuba Ancient Fortress Prototype

▼藏医院光塔大样图,Light Tower Detail

The design takes the local Xiuba Ancient Fortress in Gongbujiangda as its spatial prototype—this ancient fortress complex, the oldest and best-preserved in Tibet, embodies millennia of Tibetan construction wisdom. In the Tibetan Hospital area, a light tower connects all the distinctive diagnostic and treatment spaces of Tibetan medicine, completing a contemporary reinterpretation of the regional culture.
▼藏医院光塔内部,Xiuba Ancient Fortress Prototype Interior of the Tibetan Hospital Light Tower

光塔的空间设计主动适配藏历天文历法,以夏至日正午阳光直射为基准参照,结合藏地星象图完成精准设计,让夏至日的正午光线,能够精准直射到塔底的坛城图案。以自然光线为媒介,藏地的天文历法、宗教文化与建筑空间融为一体,既强化了藏医院空间的地域文化特征,也以极具仪式感的空间氛围,舒缓病患的焦虑情绪,唤醒对康复的信心。
The spatial design of the light tower actively adapts to the Tibetan astronomical calendar. Using the direct sunlight at noon on the summer solstice as a reference, and incorporating Tibetan celestial star charts, the design is precisely calibrated so that the noon sunlight on the summer solstice can shine directly onto the mandala pattern at the base of the tower. With natural light as the medium, Tibetan astronomy and calendar, religious culture, and architectural space are integrated into a unified whole. This not only strengthens the regional cultural identity of the Tibetan hospital space but also uses a highly ritualistic spatial atmosphere to ease patients’ anxiety and awaken their confidence in recovery.
▼藏医院光塔外部,Xiuba Ancient Fortress Prototype Exterior of the Tibetan Hospital Light Tower

5 气候适配:风与光的精细化被动式调控 Climate Adaptation: Refined Passive Regulation of Wind and Light
设计以被动式节能策略为核心,通过风环境、光环境、围护界面的精细化模拟与设计,打造适配高原气候的低碳、舒适疗愈环境。
The design is centered on passive energy-saving strategies. Through refined simulation and design of the wind environment, light environment, and building envelope, it creates a low-carbon, comfortable healing environment suited to the plateau climate.
▼光谷室内,Interior of Light Tower

风环境优化 Wind Environment Optimization
工布江达地处河谷,河谷风对室外空间的使用与室内通风环境造成极大影响。设计通过风环境模拟,对建筑体量进行多轮比选优化,最终确定的U型护理单元,能够形成有效的院区内部避风空间,大幅提升中庭户外空间的舒适度;中庭天窗兼顾拔风效应,优化室内自然通风。同时,设计在建筑中庭14.5m标高处,开设了8m宽、4.5m高的洞口,引导主导风向气流有序穿过,避免中庭产生气流涡旋。经过模拟优化,场地内人行区(距地1.5m高)平均风速控制在3m/s,整体风速小于5m/s,完全满足行人在室外平台的日常活动需求。
▼外部风环境模拟,External Wind Environment Simulation

Gongbujiangda is situated in a river valley, where valley winds significantly affect the use of outdoor spaces and the indoor ventilation environment. Through wind environment simulations, the design underwent multiple rounds of comparative optimization of building massing. The finally determined U-shaped nursing unit creates an effective wind-sheltered space within the hospital area, greatly enhancing the comfort of the atrium’s outdoor space. The atrium skylight also takes advantage of the stack effect to optimize natural indoor ventilation. Additionally, at an elevation of 14.5 meters within the building atrium, an opening 8 meters wide and 4.5 meters high is created to guide the orderly passage of airflow from the prevailing wind direction, preventing the formation of air vortices in the atrium. Through simulation and optimization, the average wind speed in the pedestrian zone (1.5 meters above ground) within the site is controlled at 3 m/s, with the overall wind speed below 5 m/s, fully meeting the daily activity needs of pedestrians on the outdoor platforms.
▼光台,Light Terrace

光环境与色彩疗愈 Light Environment and Color Healing
西藏地区建筑常因厚重的保暖围护结构,导致室内采光不足,昏暗的环境极不利于病患的疗养康复。设计通过专业软件,模拟春夏秋冬四季、全天不同时段的日照角度变化,优化中庭天窗设计与光塔的直射光线利用,在室内精准还原日光的时序变化,帮助病患感知外界的昼夜与季节更迭,降低住院的隔离感与孤独感。
▼建筑天窗采光与拔风,Atrium Skylight Daylighting and Stack Ventilation

In the Tibet region, buildings often suffer from insufficient indoor daylight due to heavy thermal insulation envelopes. Dim environments are highly detrimental to patients’ recovery and rehabilitation. Through specialized software, the design simulates changes in sunlight angles across the four seasons and at different times of the day, optimizing the atrium skylight design and the utilization of direct sunlight in the light tower. This accurately reproduces the temporal changes of daylight indoors, helping patients perceive the alternation of day and night and the changing seasons outside, thereby reducing feelings of isolation and loneliness during hospitalization.
▼人民医院大厅,People’s Hospital Lobby

同时,设计提取藏地传统色彩体系,结合不同医疗空间的使用需求,完成了精细化的色彩疗愈设计:
•护理单元以平静放松的低饱和度色彩为主,搭配充足的自然采光,营造安心的休养氛围;
•候诊区采用舒缓的木色调、低饱和度蓝绿色调,缓解患者入院时的焦虑感;
•手术室采用低饱和度冷色调,以蓝、绿色组合减轻医生眼部视觉疲劳。
At the same time, the design draws upon the traditional Tibetan color system and combines it with the functional requirements of different medical spaces to achieve a refined color healing design:
•Nursing units primarily use calm, relaxing low-saturation colors, complemented by ample natural daylight, to create a reassuring atmosphere for recuperation.
•Waiting areas employ soothing wood tones and low-saturation blue-green hues to alleviate patients’ anxiety upon entering the hospital.
•Operating rooms use low-saturation cool tones, combining blue and green to reduce visual fatigue for medical staff.
▼护理单元,Nursing Unit

围护界面的被动式节能 Passive Energy Saving of the Building Envelope
设计以被动式节能为核心,针对高原气候特点,对立面开窗进行系统性优化:西北向设置小窗抵御寒风,东南向设置大窗最大化引入采光与日照;西向采用竖向遮阳构件缓解西晒影响,同时结合藏地传统窗洞形式,打造极具地域特色的立面肌理,实现功能与美学的统一。
Centered on passive energy-saving strategies and responding to the climatic characteristics of the plateau, the design systematically optimizes window openings on the facades: small windows are placed on the northwest side to resist cold winds, while large windows are placed on the southeast side to maximize daylight and solar gain; vertical shading elements are used on the west side to mitigate the effect of western sun exposure. At the same time, drawing on traditional Tibetan window forms, the design creates a facade texture with strong regional character, achieving a unity of function and aesthetics.
▼西立面,west facade

▼打造极具地域特色的立面肌理,Creates a facade texture with strong regional character

6 在地建造:传统工艺与现代技术的低成本适配 Local Construction: Low-Cost Adaptation of Traditional Craftsmanship and Modern Technology
项目单位造价仅约6000元,远低于内地同等规模的医疗建筑,如何在有限的造价内,实现藏地建造智慧的当代表达,同时保证建筑的耐久性与适配性,是设计团队必须解决的核心问题。
The project’s unit construction cost is only about 6,000 yuan per square meter, far lower than that of a medical building of comparable scale in inland China. How to achieve a contemporary expression of Tibetan construction wisdom within such a limited budget, while ensuring the durability and adaptability of the building, is a core challenge the design team had to address.
▼庭院夜景,Courtyard at night

边玛墙的当代转译 Contemporary Transposition of the Bianma Wall
边玛墙是藏地宫殿、寺院建筑的标志性工艺,以柽柳(藏语“边玛”)枝干去皮晒干后捆扎垒砌而成,既能减轻建筑顶部荷载,也形成了极具辨识度的赭红色立面。设计在入口坡道的近人墙面,创新性地将边玛墙作为饰面保温材料,在近人尺度重现手工建造的朴实质感,为医疗建筑注入人文温度。针对传统边玛墙易腐烂、耐火性差、与墙体衔接不稳定的痛点,设计进行了全面的现代化优化:将捆扎成束的边玛草浸泡在特殊防火防潮溶液中,形成防护保护膜;在结构体上植入固定龙骨,加强边玛草束与墙体的整体稳定性;安装完成后,外侧整体涂刷多层防护涂料与藏红色涂料,实现整体闭孔,彻底解决传统工艺的耐久性与安全性难题。
▼边玛墙施工工艺,Construction Technique of the Bianma Wall

The Bianma wall is a signature technique of Tibetan palace and monastery architecture. Twigs of the Tamarix (known as “Bianma” in Tibetan) are peeled, dried in the sun, bundled, and stacked to form the wall. This not only reduces the load on the top of the building but also creates a highly recognizable ochre-red facade. The design innovatively uses the Bianma wall as a surface insulation material on the wall near the entrance ramp, reproducing the rustic texture of handcrafted construction at a human scale and infusing the medical building with a humane warmth. To address the shortcomings of traditional Bianma walls—susceptibility to rot, poor fire resistance, and unstable connection to the main wall—comprehensive modern optimizations have been carried out: the bundled Bianma grass is soaked in a special fireproof and moisture-proof solution to form a protective coating; fixing keels are embedded into the structural frame to enhance the overall stability between the Bianma bundles and the wall; after installation, multiple layers of protective coating and Tibetan red paint are applied to the outer surface, achieving full surface sealing and completely resolving the durability and safety issues of the traditional craft.
▼边玛墙改良建成效果,Improved Completed Effect of the Bianma Wall

“牛奶墙”:适配高原的低成本耐久外墙 “Milk Wall”: A Low-Cost, Durable Exterior Wall Adapted to the Plateau
当地传统砌块外包岩棉的外墙做法,在西藏20℃以上的极端昼夜温差下,常因材料伸缩率差异,在建成5年内就出现外墙开裂、岩棉脱落的问题;同时,渗入砌体的水反复冻融,也会严重影响墙体强度与耐久性。设计团队经过实地调研与反复论证,最终放弃不耐久的岩棉外保温体系,借鉴藏地碉房的墙体营造技艺,以蒸压加气混凝土砌块为核心,形成蒸压加气混凝土自保温砌筑饰面一体化外墙系统,利用墙体自身厚度实现自保温,适配高原严寒气候。外墙直接涂刷当地特有的奶白色涂料,还原藏地传统“牛奶墙”的温润质感;采用两种规格的砌块,以凸起错动的砌筑方式,复刻传统片石碉房的原生肌理,以极低的建造成本,打造出兼具地域认同感、高耐久性与高保温性能的外墙体系。
▼蒸压加气混凝土自保温砌筑饰面一体化系统大样,Detail of the Autoclaved Aerated Concrete Self-Insulating Masonry and Finishing Integrated System

The conventional exterior wall construction method in the region—local masonry blocks wrapped with rock wool insulation—often leads to cracking and detachment of the rock wool within five years of completion, due to the extreme diurnal temperature variation of over 20°C in Tibet, which causes differential expansion and contraction of materials. Moreover, water that seeps into the masonry undergoes repeated freeze-thaw cycles, severely compromising the wall’s strength and durability.After field investigations and repeated evaluations, the design team abandoned the non-durable rock wool external insulation system and instead drew upon the wall-building techniques of traditional Tibetan stone-block towers (diaofang). Using autoclaved aerated concrete (AAC) blocks as the core material, they developed a self-insulating AAC masonry and finishing integrated exterior wall system, which relies on the inherent thickness of the wall to achieve thermal insulation, adapting to the harsh plateau climate. The exterior wall is directly coated with a locally distinctive milky-white paint, restoring the warm texture of the traditional Tibetan “milk wall”. Two sizes of masonry blocks are used, laid in a staggered, protruding pattern to replicate the raw texture of traditional stone-block towers. This achieves an exterior wall system with strong regional identity, high durability, and excellent thermal insulation at a very low construction cost.
▼光塔施工采用小模板拼接,Light Tower Construction Using Small Formwork Assembly

在地化可持续施工 Localized Sustainable Construction
项目全程践行低碳建造理念,最大化利用场地原生材料:地下室开挖产生的大量卵石,经整理重组后直接用于院区围墙建造,大幅减少建材运输与材料浪费;光塔模具采用可灵活调整、重复利用的小模板拼接而成,既适配现场施工条件,也节约了建材成本,提升了施工效率。
The project fully implemented a low-carbon construction philosophy throughout the process, maximizing the use of on-site native materials. A large quantity of cobblestones excavated from the basement was sorted and reused directly for the construction of the hospital’s perimeter walls, significantly reducing material transportation and waste. The formwork for the light tower was assembled using small, adjustable, and reusable panels, which not only adapted to on-site construction conditions but also saved material costs and improved construction efficiency.
▼夜景鸟瞰,Aerial view at night


▼夜景河谷鸟瞰,Aerial view of the valley at night



结语 Conclusion
藏族文化是中华文明的瑰宝,而藏地疗愈建筑的核心,从来不是现代建造体系对这片土地的单向输入,而是以尊重为前提的融合与共生。在平均海拔3600米的尼洋河谷,这座医院的设计始终以自然营造学为锚点,读懂藏地的气候、文化与人们的生活方式,用设计化解现代医疗与地域文化的冲突,平衡严苛的建造限制与疗愈空间的核心需求。它不仅是一座补齐当地医疗短板的现代化医院,更是一个承载藏地文化、与自然共生的精神疗愈场所。而关于藏西医融合、高原疗愈建筑的探索,也将在这片土地上,持续生长。
Tibetan culture is a treasured gem of Chinese civilization. At the heart of healing architecture in Tibet lies not a one-way imposition of modern construction systems upon this land, but rather a fusion and symbiosis rooted in respect. At an average elevation of 3,600 metres in the Nyang River Valley, the design of this hospital has consistently taken natural construction as its anchor—understanding Tibet’s climate, culture, and the way of life of its people. It uses design to resolve the tensions between modern medicine and regional culture, balancing stringent construction constraints with the core needs of a healing environment. This hospital is not only a modern medical facility that addresses the local healthcare gap; it is also a place of spiritual healing that carries Tibetan culture and coexists with nature. The exploration of integrating Tibetan and Western medicine, and of high-altitude healing architecture, will continue to grow on this very land.
▼总平面图,site plan

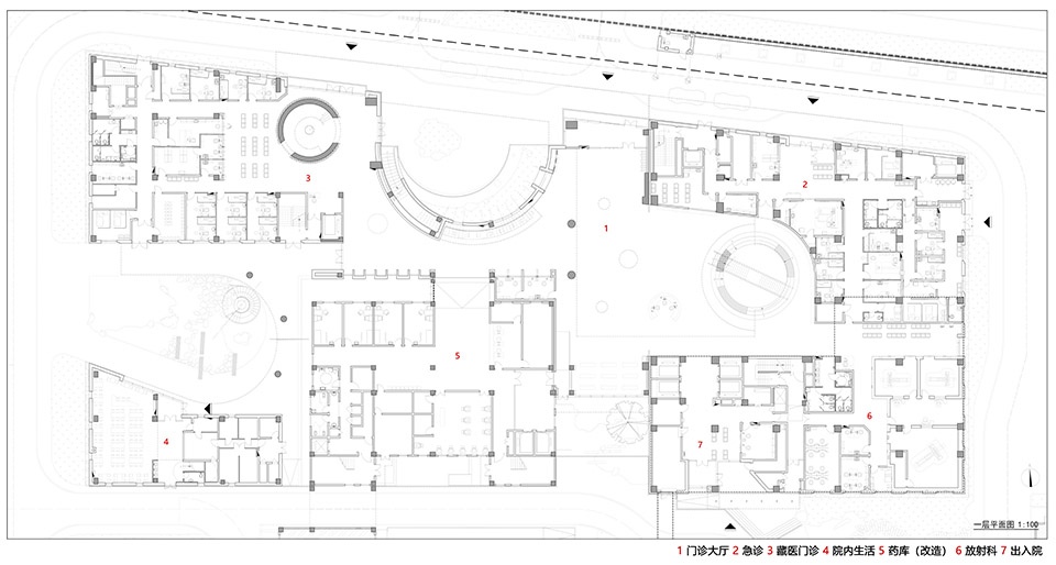
▼一层平面图,ground floor plan

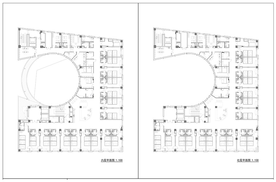
▼六-七层平面图,sixth and seventh floor plan

▼剖面图,section

设计团队:
项目总负责人:江立敏、周亮
建筑:江立敏、周亮、赵泓博、夏诗丹、袁万捷、苏文德、苏奕鸣、金鹤、柏杨
结构:朱亮,刘冰,胡广良,高路巧,李林,王尧,陈鑫
给排水:陈旭辉、王慧莉、葛佳春
暖通:孙翔宇、马国杰
电气:龙君、周波、李厚哲、张睿军、张馨皓、杨永鑫
泛光照明及光疗愈:郝洛西、邵戎镝
景观:何强、连乐桐、秦盼锋
室内:陈宇、赵飞、张星
幕墙:金颖、杨涛、倪镇国
技术经济:翁晓红、周致芬、李立漪
可研:谭念莹、赵逸筠
绿建:顾文、吕彦韬、朱翠雯
节能:唐澄宇、李鹏飞
项目信息:
Project name:The Overall Relocation Project of Gongbujiangda County Hospital in Nyingchi City (County People’s Hospital and County Tibetan Hospital)
Project type:Medical Architecture
Design:Tongji Architectural Design (Group) Co., Ltd. | Four Seasons Architecture
Website: http://www.tjad.cn/
Contact e-mail: 418978021@qq.com
Design year:2019
Completion Year:2025
Leader designer & Team:
Project location:Project Directors: Jiang Limin, Zhou Liang
Architecture Team: Jiang Limin, Zhou Liang, Zhao Hongbo, Xia Shidan, Yuan Wanjie, Su Wende, Su Yiming, Jin He, Bai Yang
Structural Team: Zhu Liang, Liu Bing, Hu Guangliang, Gao Luqiao, Li Lin, Wang Yao, Chen Xin
Plumbing Team: Chen Xuhui, Wang Huili, Ge Jiachun
HVAC Team: Sun Xiangyu, Ma Guojie
Electrical Team: Long Jun, Zhou Bo, Li Houzhe, Zhang Ruijun, Zhang Xinhao, Yang Yongxin
Floodlighting and Light Therapy Team: Hao Luoxi, Shao Rongdi
Landscape Team: He Qiang, Lian Letong, Qin Panfeng
Interior Team: Chen Yu, Zhao Fei, Zhang Xing
Curtain Wall Team: Jin Ying, Yang Tao, Ni Zhenguo
Technical Economics: Weng Xiaohong, Zhou Zhifen, Li Liyi
Feasibility Study Team: Tan Nianying, Zhao Yijun
Green Building Team: Gu Wen, Lyu Yantao, Zhu Cuiwen
Energy Saving Team: Tang Chengyu, Li Pengfei
Gross built area: 22407㎡
Photo credit: Yin Ming,Time & Space Architecture
Clients:Gongbujiangda County Health Commission
Materials: Autoclaved aerated concrete blocks, Bianma grass (Tamarix branches)














