群乐村青年社区,上海 / 立木
群乐村位于上海浦东新区曹路镇,是该镇三村联动打造市级乡村振兴示范片区的“成员村”之一。作为亦城亦乡的近郊村,群乐村不仅有地铁线直达,也毗邻包括上海金融数据港在内的多个产业园区,因此,村中一直不缺乏年轻人的身影。过去群乐村的群租房为周边工作的年轻人提供了相对廉价的居住环境,相应的,租金也是村民收入的重要组成部分。随着政府对群租房的整治,村民们的这部分收入大大下降。近年来,村集体主动介入村内产业升级与村民致富,将闲置民居与厂房等加以集中收储、改造与招商,腾笼换鸟为新经济的孵化空间。
▼项目区位与改造前照片,Project Location and Pre-renovation Photos

Qunle Village, located in Caolu Town of Shanghai Pudong New Area, is one of the “member villages” in the town’s initiative to build a municipal-level demonstration zone for rural revitalization through the joint development of three villages. As a suburban village blending urban and rural characteristics, Qunle Village enjoys direct access to metro lines and is adjacent to several industrial parks, including the Shanghai Financial Data Port. For this reason, young people have always been a common sight in the village. In the past, the rental housing in Qunle Village provided affordable accommodation for young people working in the surrounding areas, and the rental income accordingly became an important part of the villagers’ earnings. However, with the government’s renovation of illegal rental housing, this source of income for villagers dropped significantly. In recent years, the village collective has taken the initiative to promote industrial upgrading and help villagers increase their income. It has centralized the acquisition, renovation and investment promotion of idle residential buildings and factory premises, implementing a “cage exchange for birds” strategy to transform these spaces into incubation hubs for new economic forms.
▼项目概览,overview of the project

▼田野上的青年社区,The young community in the fields


群乐村青年社区项目用地的前身是一处金属加工厂房,因设备老旧、污染严重,村集体将其收储并引入社会资本,将其改造为一处青年社区。群乐村青年社区融合文创办公与青年公寓,一层二层为众创空间,三层以上为青年公寓,为创客青年提供颇具性价比的创业与居住空间。目前,群乐村青年社区已实现成功运营与招商,一批新村民入驻其中,为群乐村带来青春与活力。
The site of the Qunle Village Youth Community project was once a metal processing factory plagued by outdated equipment and severe pollution. The village collective acquired the factory, attracted social capital, and transformed it into a vibrant youth community integrating cultural and creative offices with youth apartments. The first and second floors serve as a makerspace, while the floors above are dedicated to youth apartments, offering cost-effective spaces for young entrepreneurs to both start businesses and live. At present, the Qunle Village Youth Community has achieved successful operation and investment attraction, with a group of “new villagers” moving in, infusing the village with youthful vitality.
▼老民居与新社区,Old dwellings and new communities

▼东川公路2988号入口,Entrance at No. 2988, Dongchuan Road

▼青年社区入口广场,Entrance square of the youth community

▼青年社区内部,Within the youth community

▼户外楼梯间,Outdoor stairwell

群乐村青年社区的设计回应了场地的“工厂”线索,以该村特产“小番茄”为主题,通过一个正在运行中的番茄工厂的设计意象,为村庄带来新的活力与生机。立面设计模拟了一条正在罐装的小番茄流水线,用交通流线塑造空间,丰富有趣。人们可以通过入口门厅进入中庭,或穿越台阶下的展廊到达建筑内部,满足日常或参观人群的使用需求。
▼概念生成,concept generation

The design of the Qunle Village Youth Community draws inspiration from the site’s industrial past as a factory and takes the village’s specialty, cherry tomatoes, as its central theme. The design concept mimics a functioning tomato processing plant, breathing new life and vitality into the village. The facade is designed to resemble a production line for canning cherry tomatoes, with traffic flow cleverly shaping the space to create a rich and engaging environment. Visitors and residents can enter the atrium through the entrance hall or access the building’s interior via the exhibition corridor beneath the steps, catering to the needs of both daily users and tourists.
▼番茄图案的入口广场,The entrance square with tomato patterns


▼番茄工厂,Tomato Factory

项目以活泼俏皮的嫩绿色为主题色,如同田野中破土而出的新芽,既保留了乡村建筑的纯净底色,又注入了鲜明的青春标识。设计利用原有厂房轮廓,场地合围形成公共舞台,便于举办各种活动。室外地面铺装以橙色与绿色拼贴出小番茄图案,结合入口处的卡通雕塑,进一步强化青春可爱的空间气质,让整个社区成为一个可触摸、可互动的 “大玩具”。而室内则延续了流动的曲线和色彩元素,使整个空间活力满满。
▼轴测图,axonometric diagram

The project adopts a lively and playful light green as its theme color, evoking the image of new shoots breaking through the soil in the fields. This color scheme retains the pure, rustic charm of rural architecture while adding a distinct youthful flair. Leveraging the original outline of the factory building, the site is enclosed to form a public stage, ideal for hosting various events. The outdoor floor is paved with orange and green tiles arranged in a cherry tomato pattern, and combined with the cartoon sculptures at the entrance, it further enhances the youthful and lovely ambiance of the space, turning the entire community into a tangible and interactive “giant toy”. The interior continues the use of fluid curves and vibrant color elements, filling the space with dynamism.
▼游戏空间吸引小朋友们前来探索,The game space attracts children to come and explore.

▼游戏空间吸引小朋友们前来探索,The game space attracts children to come and explore.



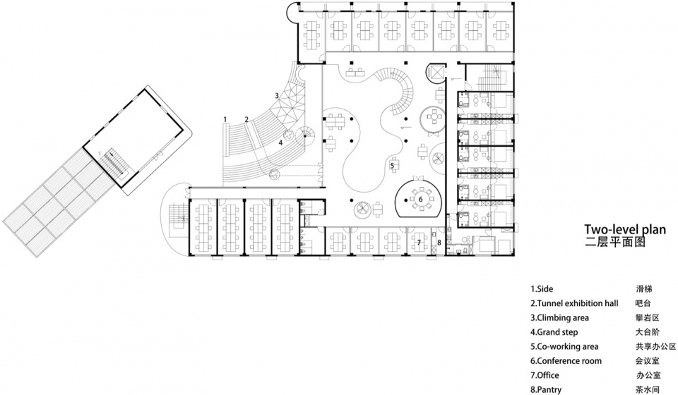
青年社区的一层与二层设置为开放模式,以中庭为中心,环绕布置小型办公室与会议室。作为社区的活力锚点,一层设置开放的创意办公、社区展厅与共享会客厅。大面积的落地玻璃消解了室内外界限,让绿意与田野自然渗透。二层以开放式工位与独立工作室相结合,营造在自然里办公的松弛氛围。内部空间通过曲线消解了空间尺度,中庭可以用来举办活动或布置成灵活办公。饱满明快的色彩,活泼生动的线条,使室内空间充满青春的气息。
The first and second floors of the youth community are designed as open spaces, with small offices and meeting rooms arranged around a central atrium. As the vibrant core of the community, the first floor features open creative offices, a community exhibition hall, and a shared lounge. Large floor-to-ceiling glass windows blur the boundaries between indoor and outdoor spaces, allowing greenery and rural scenery to flow naturally into the building. The second floor combines open workstations with independent studios, creating a relaxed working environment immersed in nature. Curved lines are used to soften the spatial scale, and the atrium can be flexibly used for hosting events or as a collaborative workspace. The bold, bright colors and lively, dynamic lines fill the interior with a youthful atmosphere.
▼一层公共区,ground floor public space


▼流动的中庭空间,The flowing atrium space

三层及以上为青年公寓,可通过单独的公寓门厅进入。公寓采用模块化户型设计,从单人 studio 到双人合租单元,满足不同居住需求。公共区域设置共享厨房、洗衣房与屋顶花园,鼓励住户走出房间,形成互助式的邻里关系。
The third floor and above are dedicated to youth apartments, accessible through a separate apartment lobby. The apartments adopt a modular design, ranging from single-person studios to two-person shared units, catering to diverse living needs. Public areas include a shared kitchen, laundry room, and rooftop garden, encouraging residents to step out of their rooms and foster a mutually supportive neighborhood.
▼公共卫生间,public washroom

▼从村民家的菜地望向青年社区,
Looking from the villagers’ vegetable plots towards the Youth Community

▼村里小河边望向青年社区,
Looking across the small river in the village towards the Youth Community

在乡村振兴的大背景下,群乐村青年社区项目展示了大城市近郊村更新与转型的一种可行性。相较于近在咫尺的城市型办公园区和住宅社区,青年社区为新村民提供更加低价、灵活、松弛的田园生活方式。新村民的进入不仅为村集体经济带来新的增长点,也为这个逐渐老龄化的原住民社区带来活力与生机。
Against the backdrop of rural revitalization, the Qunle Village Youth Community project demonstrates a feasible path for the renewal and transformation of suburban villages near major cities. Compared with the nearby urban office parks and residential communities, the youth community offers “new villagers” a more affordable, flexible, and relaxed rural lifestyle. The arrival of these new residents has not only created a new growth point for the village collective economy but also injected vitality into the aging community of original villagers.
▼一层平面图,ground floor plan

▼二层平面图,first floor plan

项目名称 群乐村青年社区
设计方 立木
公司网站 www.limu.design
联系邮箱 limuarch@163.com
项目设计 & 完成年份 2023-2025
主创及设计团队 项目经理:郭岚
方案设计团队:邹明溪、刘明昊、李春瑶、程苗、李佳妍、谢瞬冰、代英航
设计顾问:申鹏
项目地址 上海
建筑面积 4200
摄影版权 朱清言
品牌 金属漆、木丝吸音板、PVC地坪
Project name Qunle Village Youth Community
Design L&M
Website www.limu.design
Contact e-mail limuarch@163.com
Design year & Completion Year 2023-2025
Leader designer & Team Project Manager: Guo Lan
Design Team: Zou Mingxi,Liu Minghao, Li Chunyao, Cheng Miao, Li Jiayan, Xie Shunbing, Dai Yinghang
Design Consultant: Shen Peng
Project location Shanghai
Gross Built Area (square meters) 4200
Photo credits Zhu Qingyan
Brands / Products used in the project Metallic paint/Wood wool acoustic panel/PVC flooring














