Grands Cepages生态酒店,法国/建筑设计
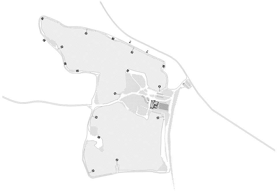
法国南部的葡萄园和湖泊环境里建造建筑是一项巨大的挑战。在未遭受开垦的地中海玛基群落中,自然是这里唯一的主角。因此,建筑与环境的充分融合是该项目的重点内容。在业主的期许中,这里将成为Châteauneuf-du-Pape区来访者首选的最佳垂钓之处。
Building on a lake surrounded by vineyards in the south of France is a challenge. In a magical and untouched place like the Mediterranean maquis, nature is the only protagonist of the scene. The imperative for the architect remains the absolute camouflage with the existing landscape. Clients have envisioned this eco-lodges project choosing as their site an incredible fishing reserve in Châteauneuf-du-Pape, a few kilometers away from Avignon.
▼远视,view from distance



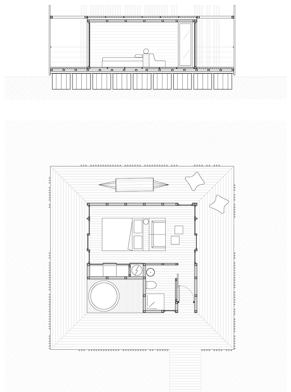
十间身处于芦苇荡中的套房简单却精巧:它们底部架空如竹筏般漂泊在La Lionne湖面上,让居住者仿佛回到史前时代的居住环境。独特的造型给予来访者超乎想象的居住空间,又在开阔的尽管环境中为来访者觅得一处私密处所。
10 suites, simple but sophisticated, evoke primitive constructions in lake reeds: floating on the water like rafts, on pilotis along the banks like real palafitte or underground, like a troglodyte dwelling, the eco-lodges of the Grands Cépages rise along the lake of La Lionne, privileging the most particular and sought-after view for each one, always preserving the privacy of the inhabitants.
▼分布在湖面上的十栋小木屋,the huts distributed on the lake

建筑立面透过木质栅板展现出向上生长的势头,与湖中摇摆的芦苇建立了趣味性的对话。与之呼应的,环绕四周的芦苇转变成建筑的天然屏障,既将其隐藏在自然环境中,又保护了居住者的私密环境不受侵扰。
The architecture of the lodges dialogues perfectly with the lake reeds, taking up the vertical and elegant upward momentum and then rationalizing their arrangement, much more geometric, regular and repetitive. In this way the hut remains hidden by a vegetable filter – like a light screen – that in addition to being the same structure as the parapets and the pergola, filters the direct view on the terraces of each lodge.
▼立面木质栅板与湖中芦苇建立了趣味性对话,the facade of the architecture set up a dialogue with the water reed



季节的变幻和日间天色的变化不断改变着建筑的外貌。在树叶的映衬下,建筑在景观中若隐若现。冬季里,白雪覆盖湖面和岸边,建筑在水中泛起微弱的倒影。日间,阳光穿透栅板在房间内舞动,为假日居住带来趣味性体验。日落时,木屋景象则完全颠倒。建筑安静的沉睡在黑暗环境中,月光洒在小木屋上,仅有屋内的金黄色灯光从木栅中满溢出来,如灯笼一般,氛围宁静又祥和。
The changes of the seasons and the hours of the day constantly transform the presence and the dynamics of the hut with the landscape. With leaf trees, the architecture integrates with the landscape in a perfect game of camouflage. In winter instead, with the earth and the lake gathered under a blanket of snow, the vertical lines of the battens are reflected on the water. During the day, the experience inside the suite is a play of light and shadow with the sun filtering through the screening. After sunset the effect is reversed, immersed in darkness and illuminated only by the moon, the hut evokes a lantern, radiating the internal golden light between the wooden slats.
▼建筑与景观相互映衬,view connections of the architecture and landscape






▼居住内部,the bedroom


▼夜色中满溢的金色灯光,the golden light coming through the hut into the night




为了避免偏远地区建筑建造的不可预见性,建筑大部分工程均采用自Pyrenees一家木工房打造的预制构件。所有组件均进行编号,并在3个月内组装和搭建完毕。预制构件降低了生产成本和人力成本,也减小了对场地自然环境的破坏。
In order to simplify the unforeseen in a remote site, the project was largely prefabricated in a wood workshop in the Pyrenees. The components were numbered, dismantled and rebuilt on site in 3 months. Prefabrication reduced production costs and labor costs during installation, impacting the landscape as little as possible.
▼剖面及平面,section and plan


项目信息
项目名称:法国Grands Cepages生态酒店
文章分类:建筑设计-酒店会所
设计公司:Atelier LAVIT
项目地址:LacdelaLionne 84700Sorgues(France)
项目规模:74m²
项目年份:2017年
摄影师:Marco Lavit Nicora
客户:Cabanes des Grands Cépages
施工团队:Nid Perche / créateur d'hébergements insolites
结构形式:Nid Perche / créateur d'hébergements insolites
主要材料:木头
Project information
Project Name: French Grand Cepages ecological hotel
Article category: Architectural Design - Hotel Club
Design company: atelier lavit
Project address: lacdelalione 84700sorges (France)
Project scale: 74m ²
Project year: 2017
Photographer: Marco lavit Nicora
Client: Cabanes des grands C é pages
Construction team: NID perche / Cr é ateur d'h é bergements insolites
Structural form: NID perche / Cr é ateur d'h é bergements insolites
Main material: Wood














