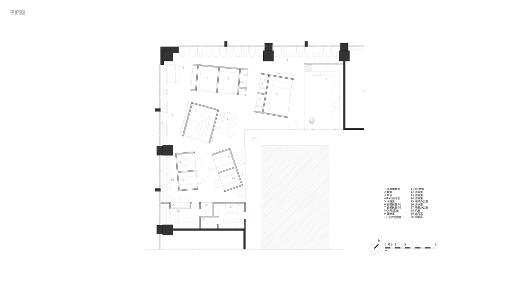
精英英语培训中心,北京/室内

项目位于一座办公楼内,业主租赁三个房间作为学校的办公和培训区域。为了整合全部的空间的使用,设计师将其打通成为一整个房间。
The project is located in an office building with good vision, the owner rent three rooms as the office and training area. the designer opened it up into a whole room in order to integrate the use of all the space.

本案的空间的设计,与传统的教室的设计有所不同。设计的核心概念为社区,它由五个不同材质的盒子,围合出功能不同的区域空间,比如,书房,厨房,办公交流等公共区域。房间内则是教室,每个房间都拥有良好的视野和光线。
In this case, the design idea of the space is different from the traditional training classroom. The key concept of it are to build a community, it consists of five different materials boxes, surrounded by different functional areas of space, such as study area, kitchen, office communication and other common space. The five room of inside view is the classroom with a good vision and light.

入口处,两扇2000mm宽的大门设计,当玻璃门打开时,室内和走廊形成了相对开放的空间。
Two 2000mm wide door was designed at the entrance area, the interior and corridor formed a relatively open space when the glass door opened.

房间使用了不同的材质,镀锌钢板,水泥板,木板,红砖,作为盒子表面材料的。地面则使用了的灰砖,地面的破旧感和房子的不同材质的对比,形成很大的反差,给人以强烈的视觉冲击力。
The five rooms use different materials, such as, galvanized steel, cement board, wood and red brick, as the surface.The material of gray bricks in ground shows a sense of rough,in contrast to other five materials, involving a strong visual impact.



























