深业上城LOFT,深圳/建筑
基地为包含6栋超高层办公、酒店及商务公寓的高端综合体,毗邻深圳CBD核心圈,位于两大城市中心公园之间。都市实践的设计任务是在其占地逾6万平方米的大型购物中心顶部,建造10万平方米的居住及办公 LOFT。
This base is a high-end commercial complex with 6 high-rise towers containing offices, hotels and business apartments. Adjacent to the CBD district, it is also located between two central parks in Shenzhen. URBANUS’ design task was to construct a 100,000㎡ loft of apartments and offices on top of a shopping center larger than 60,000㎡.
▼总体外观鸟瞰,general bird-eye’s view of the project
为消解地块自身的超高层垂直向的巨大压力,我们利用面积较大的居住 LOFT和办公 LOFT营造出两座人工山形体量,回应超高层塔楼的巨大尺度,并呼应周边的莲花山和笔架山。同时向内围合出一个安静的空间,以细致的步行街道联结3-4层的高密度的办公 LOFT,排列出一个高低错落,空间变化丰富的小镇,其中纳入 LOFT剧场、展示交易中心等公共活动空间,从外围的“大”和“实”逐渐过渡到内部“小”而“虚”非常有活力的区域。让商业、办公与住宅人流在同一街区活动,创造了一种居住、办公、商业与文化空间融合的聚落式街道生活新模式。
To release the enormous pressure from the vertical dimension of the high-rise tower, we take advantage of the large area of the LOFTs, creating two artificial mountain volumes, in response to the huge scale of the towers. At the same time, the design connects the project to the natural form of the surrounding Lianhua and Bijia Mountains. This design also encloses a quiet space, by connecting the 3-4 level high-density office LOFT through exquisite sidewalks, creating a small town with rich spatial variation. There are also some public spaces, such as the LOFT Theater and the Trading & Exhibition Center that gradually transform the “big” and “solid” periphery space to the “small” and “dynamic” inner region. The Loft Town has accommodated a shopping mall, business offices and apartments, creating a new model of settlement which integrates residents, offices, shopping malls and cultural spaces.
▼形式策略,formal strategy
▼设计生成,massing concept diagram
▼轴测图,annotated axonometric
▼分解轴测图,annotated exploded axonometric
▼整体俯瞰图,general aerial view
▼东北向俯瞰图,aerial view from northeast
▼南向鸟瞰图,两座人工山形体量回应超高层塔楼的巨大尺度和周边的莲花山和笔架山
bird’s-eye view from south, two artificial mountain volumes respond to the huge scale of the towers and the surrounding Lianhua and Bijia Mountains
▼西南侧(B区和D区)外观,基地南侧的D区(下图右侧的体量)采用“山体”的造型
general view (the view of the B District and D District) from southwest, D District (the right volume in the image below) located at the south is another “mountain” volume
▼西南侧(B区和D区)外观,D区(下图右侧的体量)在立面上设置贯通的大洞
general view (the view of the B District and D District) from southwest, D District (the right volume in the image below) has holes throughout the building’s facades
▼西向街景,street view from west
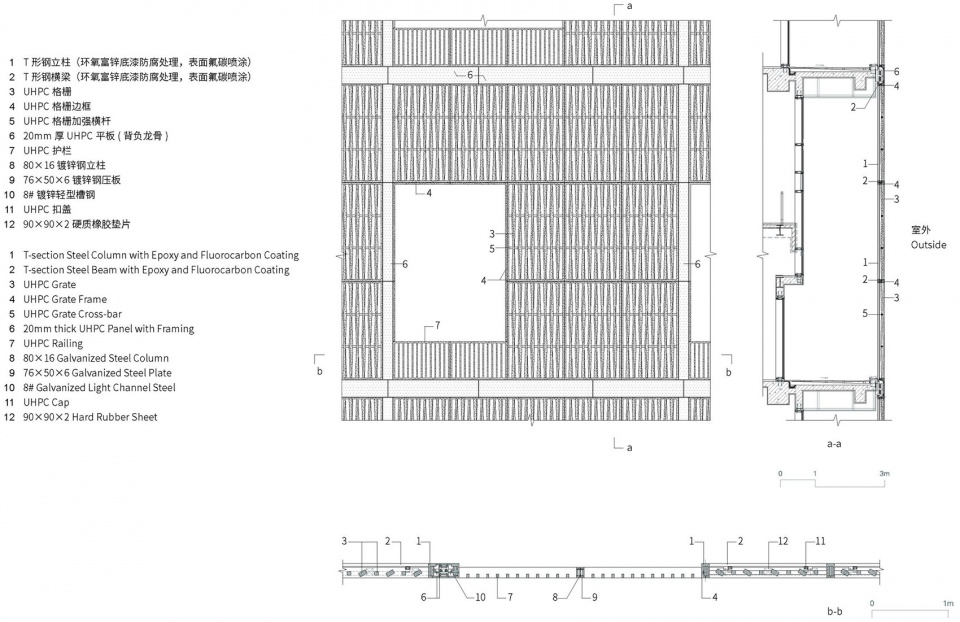
A区居住LOFT主体标准层高9m,可灵活划分使用;于南北两侧设置外廊,通风防晒良好;户户拥有私家庭院,邻里之间既有交流,又保证了私密空间。立面以灰白色“拧麻花”的格栅样式力求将材料本身的性能发挥到极致。
The standard floor height of residential loft in Zone A is 9m, which can be flexibly divided and used; Corridors are set on the north and south sides, with good ventilation and sunscreen; Each household has a private courtyard, which not only has communication between neighbors, but also ensures private space. The vertical style of grille is "fried dough twist", and the material is to exert its ultimate performance.
▼A区户型分解轴测图,A zone residential types
▼A区南、北立面单元轴测图,于南北两侧设置外廊
south & north facade unit in the A zone, verandas are set on the north and south sides
▼A区南立面格栅详图,A zone south facade detail with annotation
▼A区南立面局部,partial exterior view of the south facade of A zone
▼A区外走廊,立面采用灰白色“拧麻花”的格栅样式
corridor in A zone, using a greyish twisted grid as the form of the facade
B区酒店及办公 LOFT以两栋建筑围合出一个内院,中央设置“黑盒子”小剧场激活未来区域文化活动,外立面灰白色陶板,粗糙的质感,带给人返朴归真的感受。
C区LOFT办公由二十多栋3~4层的小型建筑组合成“村落”,建筑呈组团式排列,每个组团自成院落,内部小巷宽4~6m,而组团之间为开放广场,街道宽度为8~15m,组团建筑体量穿插组合,形成架空通道、露台、庭院、阳台、过廊等丰富的空间形态。办公与商业平台之间以竖向交通连接,办公人群下楼即可漫步商业街,上楼又可继续工作,往北A区可居住,往南去往D区可看展览,深业上城 LOFT以新的建筑空间模式创造了多维度的生活方式。
In B District, the hotel loft and office loft enclose an inner garden, where a black box theater is set to stimulate future cultural activities in this region. The facades are decorated with white ceramic plates with rough texture, giving people the feeling of getting back to nature.
In C District, there are over twenty office lofts with 3-4 stories, forming small “villages”. These lofts were arranged by groups, each with a courtyard. The lanes inside have the width of 4-6m and between these groups are open spaces with streets of 8-15m in width. Overhead channels, terraces, courtyards, balconies and galleries are interspersed among them, forming various spatial structures. The office platform and business platform are connected by vertical transports. Workers can stroll in the mall when they are downstairs, and go back upstairs to work very conveniently. In the north is a residential area, and in the south people can see exhibitions in D District. The LOFT Town in UpperHills, by using a new building model, creates for its residents a multi-dimensional lifestyle.
▼C区LOFT办公鸟瞰图,由二十多栋3~4层的小型建筑组合成“村落”的形式
bird-eye’s view of the C District, there are over twenty office lofts with 3-4 stories, forming small “villages”
▼C区LOFT办公鸟瞰图,建筑呈组团式排列,每个组团自成院落
bird-eye’s view of the C District, the lofts are arranged by groups, each with a courtyard
▼内街,组团建筑体量形成架空通道、露台、庭院、阳台、过廊等丰富的空间形态
inner street, overhead channels, terraces, courtyards, balconies and galleries are interspersed among the lofts, forming various spatial structures
▼内街,下层是商业街,上层是办公空间,inner street, downstairs spaces host the mall, while upstairs host the work space
▼内街,办公与商业平台之间以竖向交通连接
inner street, the office platform and business platform are connected by vertical transports
D区是位于基地南侧与A区相望的另一座“山体”,作为还建政府的部分,它的功能最初被设定为总部办公。建筑体量的进深较大,有26m至56m不等,通过在建筑立面设置贯通的大洞,在不同区域设置内天井,端头与商业结合的位置设置架空平台,极大的丰富了室内外空间的层次,建筑内中走道办公空间,串联了多个内院、休息厅,室外架空平台等多个不同层次的空间,形成丰富的空间体验。
D District is another “mountain” across from District A, located on the south side of the base. As a part of the government, it was initially set as the headquarter office. The depth of the building volume varies from 26m to 56m. By creating holes throughout the building’s facades, the inner courtyards were set in different areas. This design would greatly enrich the levels of indoor and outdoor space. In the inner part of the building, aisles connect different levels of spaces, including inner courtyards, lounges and outdoor overhead platforms, forming a rich spatial experience.
▼D区平台与连廊,丰富了室内外空间的层次
platform and joint gallery in D zone that greatly enrich the levels of indoor and outdoor space
▼外观夜景,night view of the project
▼区位分析图,site analysis
▼研究过程模型,conceptual models
▼“环”概念手绘草图(左),“村落”概念手绘草图(右),sketch of the“ring” (left), sketch of the“village” (right)
▼正轴测图,axonometric drawing
▼总平面图,site plan
▼四、五层平面图,the 4th & 5th floor plans
▼剖透视图,sectional perspective















































