北京常各庄村农舍改造,北京/建筑
项目位于北京西南郊区的大兴县庞各庄镇常各庄村,改造的对象是一栋有着超过40年历史的破旧农舍。原有的建筑是京郊农村中常见的一层砖木结构。屋内没有上下水,陈设简陋,光线昏暗,墙壁被几十年做饭的烟火熏的漆黑一片。南向的院落由于将农用三轮停放在了最里边,完全变成了一个车道。最为糟糕的是建筑的室内地坪比外边的院子低了近20公分,大雨时会发生院中的雨水倒灌进屋的情况,而这也极大的威胁到了结构的安全。与此形成鲜明对比的则是项目所在的地区严重缺水,村里几乎每天都会停水,而且还总是发生在用水高峰的晚上,给住户的生活带来了极大的不便。
The project is situated in ChangGe Village, Daxing County, in Beijing’s southwestern suburb. Subject of rebuild is a worn-out farm house built in the early 1970’s, with its original wood-brick structure commonly seen in north China’s country side. Before the remodel, inside the dim and shabby house (or a shack to be more exact), walls were coking dark, covered by more than 40 years of hard cooking smokes & ashes. The place had no water supply nor a restroom – its residents, a senior farm couple, needed to walk out 100m around the house to get to the closest loo in the neighborhood. The house’s long but narrow courtyard facing south functioned as a pathway for the family’s only transport vehicle, a three-wheeler, which was inconveniently parked in a dead end. Even worse, interior floor elevation of the house was almost 20 cm lower than the courtyard, turning the house into a flooding pond whenever it rained, a safety threat to the entire building structure. Ironically, the area was troubled by water shortage – water gets cut off almost daily, sometimes during peak evening hours.
▼改造后的建筑,after renovation
设计师的改造设计是北京卫视的一档真人秀节目,因此建造成本和施工周期都受到了极大的限制。可使用的经费约30万元人民币不仅涵盖了从场地及建筑改造,室内硬装,直至家具灯具和配饰软装的所有费用,还为住户购置了一些简单的家用电器。由于播出日期已定,设计加上施工的时间也被限定在了45天。
The remodel project was one episode of BTV’s live television show series called “Our Warm New Houses”, newly rolled out earlier this year. The show producer set up specific but stringent requirements on cost and construction speed. Design and construction needs to be completed in 45 days. All-inclusive budget is capped at 300,000 RMB (about 45,000 USD), including labors and materials on field work, site remodeling, interior construction, lights and fixtures, furniture and interior decorations, even purchasing new home electronics.
水的问题 | Water Issue
针对水的问题,我们将排水与节水一并考虑。一方面,我们提升了室内地面,调整了室外地面并重新铺设了排水沟。另一方面,我们在院子的端头修建了蓄水池,将院子两侧屋顶的雨水收集起来循环利用。这不仅是达到了节水的目的,同时也极大的减少了强降雨时院中的短时汇水量,使得院中的雨水可以及时排净。在晚间停水时,收集的雨水可以做为冲厕用水的补充水源。
To solve the core water issue, our architectural design process thoroughly considered the challenges of both water shortage and flood control. First, we elevated the interior floor, adjusted exterior courtyard ground level and installed new sewer & gutter systems. In addition, a new water tank with a capacity over 2-cubic-meters was built at one end of the courtyard, to harvest & recycle rain water collected from the rooftops. In the evenings when water gets occasionally cut off, collected rain water could be used as a supplementary water source for toilet flushing or to satisfy other essential needs, for up to a year. At the same time, with water drainage now in place, the building structure stands strong even in pouring rain.
▼室内地面被提升来防止雨水渗入屋内,the base of the house is raised
功能布局 | Functional Layout
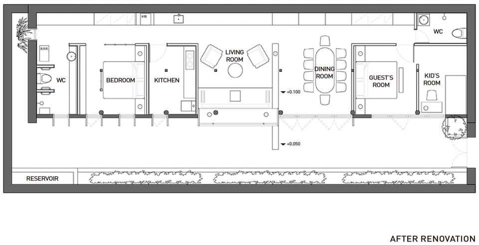
在功能布局上,经过与住户的仔细沟通,在充分的了解了住户生活习惯的基础上,我们对原有的布局做出了很大的调整。首先,我们将原来停放在院子端头的农用三轮车移至大门外停放,使得院子可以被重新加以利用。沿墙的绿化为室内空间创造出了可视的景观。由于当地有不能在北墙开窗的习俗,我们将所有的收纳功能都集中到了北墙一侧,所有的居住功能都安排在了南边采光更为充足的一侧。
In terms of functional layout, we have made adjustments to re-organize the floorplan based on detailed communications with the residents, understanding their daily routines and habits. Outside the house, we first re-located the parking area of the “three-wheeler”, from the inner-most end of the courtyard to outside of the gate, so the courtyard could be fully utilized, and not having to worry about its pathway function. We then planted bamboos & lavenders along the neighboring wall by the south side of the courtyard facing the house, creating a relaxing and serene landscape to be viewed from inside.
▼客厅面向院落,living room
▼重置的院落景观愉悦的室内氛围,the renovated courtyard pleased the atmosphere in side
鉴于房屋东西狭长的特点,中间的部分安排为公共的开放空间,长辈的卧室和客人的卧室这些较为私密的空间则被分置于东西两侧,避免相互之间的干扰。由于地面高度的提升,梁下的净空高度只剩下不到2.1米,加上原有的简易的吊顶,十分低矮压抑。我们将原有的吊顶全部拆除,露出了木结构及秸秆铺装的屋顶肌理。在做了简单的清理及维护后,尽量保持了它上面的岁月痕迹。另外我们有意将南侧的维护结构向外推出了约50公分,将承重用的木柱保护在了室内免受室外风雨的侵袭,同时木结构柱也得以单独暴露在室内空间中成为了一种自然的装饰。
Inside the house, by custom, the locals particularly dislike windows on the north wall, so we have carefully accommodated this by moving all the storage function to the north side of the house, while taking the daily activity function to the south side where it is also better lit. As the house layout takes the shape of a narrow rectangle, with the long side oriented north and south, the middle part of the house is better suited as a common area. It also separates the resting areas for hosts and guests, allowing for better privacy.After elevated the floor for flood control, the building height is only 2.1m. So we removed the suspended ceiling, to allow for more space. Then, after some cleaning and maintenance work, the original wood structure and straw-covered ceiling texture is finally revealed, telling a story of time.Originally, one side of seven structural columns were partially exposed to the exterior, which could potentially become a safety issue given their age. We have managed to push out the south side exterior wall by 50 cm, so the columns are now behind the wall, protected against wind and rain; a source of natural beauty, these wood columns themselves seamlessly become part of interior decorations.
▼客厅与饭厅相通,dinning room connects the living room
▼拆除吊顶,露出屋顶肌理,the original wood structure is revealed after the cleaning
▼住宅为狭长的东西布局,the house is east-west trend layout
在场地勘测的过程中,我们发现现有房屋同西侧邻居家院墙之间有一道宽约80公分的狭长走道。于是我们在室内走廊尽端的西墙上开了一条景窗,窗外种植的绿竹成了狭长走道的对景,摇曳的竹影也进一步将室内空间同自然环境联系在了一起。
During site survey process, we discovered a narrow pathway about 80cm wide between the west side of the building and neighboring wall. So we designed a view window at the end of the corridor toward the west side. Outside the window, swinging bamboo shadow helps to connect the interior space with the natural environment.
▼走廊尽头的开窗可感受室外景观,view window at the end of the corridor connects the natural environment
家具选择 | Furniture Selection
在家具用品的选择上我们尽量是就地取材,保留下的水缸成为了茶几和伞筒,破旧的木条凳重新打磨后摆在床前放置衣物,原先已然无法使用的花格门则成为了主卧室里可以攀扶的屏风。
In terms of furniture selection, we preserved the resident’s existing furniture whenever possible, and gave them new lives. Two large clay water jars now function as an umbrella stand and a side-table, a torn wood bench is polished and placed by the end of the bed to stow clothes and linens; even the wood lattice door, once about to be thrown out in to garbage, become folding screens in the main bedroom.
▼废弃的花格门作为主卧屏风,the wood lattice door become folding screens in the main bedroom
▼卧室家居就地取材,the furniture is based on the local
▼收纳空间沿北侧布置,the storage spaces are placed along the north side
▼新元素的融入与老建筑形成对比,the comparison of the new and the old
▼洗手间,bathroom
▼改造前后对比,before and after renovation
项目名称:北京常各庄村农舍改造
设计团队:空间进化
文章分类:室内设计-别墅
设计公司:空间进化
项目地址:北京
项目规模:占地面积 210㎡ | 建筑总面积 130㎡
Project Name: Renovation of Farmhouses in Changgezhuang Village, Beijing
Design Team: Space Evolution
Article classification: Interior Design - Villas
Design Company: Space Evolution
Project address: Beijing
Project scale: covering an area of 210 square meters | total building area of 130 square meters


































