西安高新区环普科技产业园,西安/建筑




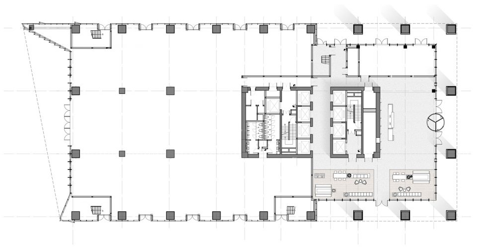
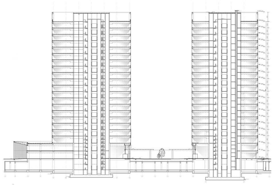
该项目是一个大型办公园区整体规划中的二期工程。中央景观公园是新设计的核心,更是充当了整个园区的绿色社区中心。此前的整体规划将办公设施全部安排在了同一区块内,MDO 将该区域重新设计成四座办公楼, 在建筑和公园之间添加了景观走廊,改善了整体采光,并增强了楼层的租赁优势。
The project is the second phase of the overall planning of a large office park. The central landscape park is the core of the new design and serves as the green community center of the whole park. In the previous overall planning, all office facilities were arranged in the same block. MDO redesigned the area into four office buildings, added a landscape corridor between the building and the park, improved the overall daylighting and enhanced the rental advantage of the floor.











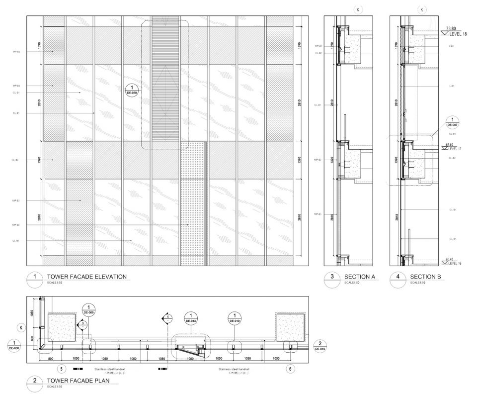
夜幕降临,两座办公楼的灯光呈现出抽象的图案,与二进制码的设计安排呼应。铝板向外翻折,使得灯槽仅从特定角度可见。这就意味着,从四座办公楼前经过时,楼体外观会随着角度的推移而略显不同。
At night we imagined the towers to create an abstract play of light, referring to arrangements of binary codes. Aluminum panels were folded outwards to create light slots which can be seen only from certain angles. This means as you walk past, the 4 towers subtly change in appearance.















