折叠公寓,上海 / 室内
在任何一个城市的市中心购置一套公寓都并非易事,这通常意味着诸多的生活上的妥协。鉴于这一普遍的事实,建筑及室内设计工作室MDO在上海法租界的里弄里购置了一套位于2层的公寓,位置绝佳但采光条件很差,然后对它进行了一番改造。
Finding an affordable apartment in the centre of any city is very difficult. Usually compromises need to be made and in this case we bought an apartment with poor daylight, but a great location and a plan we could reconfigure.
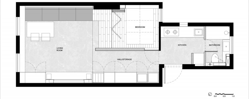
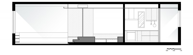
设计的关键在于两点:开放的空间感和相对的私密性。对一套小公寓而言,二者通常是对立的。设计师按照从公共到私密的空间序列重新排布功能空间,然后将它们围绕着中心墙体进行折叠。空间在刻意保持了开放性的同时,通过控制视线范围达到了必要的私密效果。另外,设计师通过一系列透明的玻璃门让阳光可以穿透整个公寓。这样的做法也让东北向的客厅在白天的时候可以通过卧室的窗户获取光照。
We wanted two key things from the apartment – a sense of space, of openness, and on the other hand, privacy. In a small apartment these two requirements are usually at odds. We achieved them by organizing the functions from public to private and then folding them around a central spine wall. The spaces are kept deliberately open but privacy is achieved by controlling the view vistas, and through a series of translucent glass doors which allow daylight to penetrate through the apartment. This move also allows the northeast facing living room to receive light from the bedroom window during the day.
▼ 概念图示,concept
▼ 轴测图,axonometric drawing
面向卧室一侧的中心墙面使用软装来确保良好的隔音性能。另一侧装配通高的穿衣镜,来拓展走廊空间的视觉效果。为了最大化储藏空间和方便移动WC和洗衣设备,设计师在公寓内设计了不同的地面高度。从走廊向下一个台阶进入起居室,而后向上三个阶梯进入环境更加温馨的卧室,床下是容量可观的储藏空间。于此同时,在客人到访时,台阶可以用作非正式的座椅。
On the bedroom side of the spine wall it is finished with upholstered fabric to give a close acoustic environment. The opposite side of the wall is clad with full height mirror, useful for dressing and helps to expand the sense of space in the hallway, doubling the perceived area.
In order to maximize storage space and to facilitate moving the WC and washing machine, the floor level changes through the design. The living room steps down from the hallway creating more height, whilst the bedroom is accessed via 3 steps which gives a more intimate environment, whilst creating much needed storage space under the bed. The steps also double as informal seating when we have guests.
▼ 入口和走廊,entrance and hallway
▼ 起居室,living room
▼ 从起居室看向卧室和走廊,view from the living room to bedroom and hallway
▼ 从卧室看向起居室,view from bedroom to the living room
▼ 卧室一角&起居室一角,conner of bedroom & conner of living room
▼ 厨房,kitchen




























