水土老街手爬岩咖啡馆,重庆/建筑
在重庆北碚,有首流传了半个多世纪的儿歌——“北碚的豆花土沱酒,好耍不过澄江口”,这其中的“土沱”,就是指的水土镇,清康熙年间设立水土铺,后称水土沱。水土镇曾是工商重镇,有诗“白天千人躬首,夜晚万盏明灯”来形容水土镇的繁华。但比起若干年前,水土老场镇范围的已被周边逐年发展起来的新区步步紧逼,仅剩下靠近嘉陵江边的这块最后的领地,还在苦苦坚守。
In Beibei, Chongqing, there is a children’s song that has been circulating for more than half a century – In Beibei, there are Beancurd flower and Tutuo Liquor, and the most interesting place is Chengjiangkou. The “Tutuo” in this song refers to the Shuitu Town, which was set up in the Kangxi period of the Qing Dynasty and later called Shuitu Tuo.Shuitu Town was once an important industrial and commercial town. The poem “thousands of people bow their heads during the day and thousands of bright lights at night” describes the prosperity of Shuitu Town. However, compared with a few years ago, the old town of Shuitu has been gradually pressed by the surrounding new areas that have developed year by year, leaving only the last territory near the Jialing River, which is still hard to defend.
随着几十年来的自建改建,老街已不再是那种青瓦坡屋顶层叠于山地中的、有着统一风貌的传统街镇,但相比众多开发过度或是经过一番“风貌”打造的古镇老街而言,这里有三线建设时期留下来的大院、清代的寨门、山顶的江机厂旧址、写满标语的理发店、江边的国民党中央警卫署旧址、还有残破却又依旧屹立的江北县人民大礼堂和人民政府办公楼……古朴而又真实,码头、幽巷、石阶、青苔,种种质朴扑面而来,仿佛这里从未被人打扰过一般。
With decades of self construction and reconstruction, the old street is no longer a traditional street town with a unified style and features with green tile roofs stacked in the mountains. However, compared with many old towns and streets that have been over developed or built through a series of “styles”, there are courtyards left from the third line construction period, village gates in the Qing Dynasty, the former site of Jiangji Factory at the top of the mountain, barber shops with slogans, the former site of the Kuomintang Central Guard Office on the riverside, the dilapidated but still standing Jiangbei County People’s Auditorium and the People’s Government Office Building… simple and true, with docks, lanes, stone steps, and moss, all kinds of simplicity come to us as if there had never been disturbed here.
初到水土老街,是在2014年10月,目的是探访重庆主城最后的一个在航的车渡——三土车渡,一条连接着北碚施家梁三胜村与水土老街之间的、始建于1961年的载车过嘉陵江的航道。
The first time I visited at Shuitu Old Street was in October 2014, with the purpose of visiting the last navigable ferry in the main city of Chongqing, the Santu Ferry, a waterway connecting Sansheng Village of Shijialiang in Beibei and Shuitu Old Street, which was built in 1961 to carry cars across the Jialing River.
随着主城越来越多跨江大桥的新建,重庆城的两江四岸边,运输人与交通工具过江的,承载着无数老重庆人儿时记忆的摆渡船也就渐渐退出了历史舞台。而水土江边的的三土车渡,作为战备码头得以保留,并从2012年起,开始了公益性的免费摆渡。
With the construction of more and more bridges across the river in the main city, the ferry carrying the memories of countless old Chongqing people’s childhood, which transports people and vehicles across the river, gradually withdrew from the historical stage along the two rivers and four banks of Chongqing. The Santu Ferry along the Shuitu River has been retained as a war readiness wharf, and since 2012, it has started a public welfare free ferry.
2019年底,由我们团队设计的“陵江驿渡·三胜车渡服务站”在三土车渡施家梁一侧的江岸正式建成并投入使用。在这个面积仅450㎡的三层钢结构建筑里,为市民及游客提供了文化展示和休闲的场所,同时解决部分船员的食宿问题,以此来体验车渡,愿景则是能将原汁原味的老重庆文化延续,从而带动两岸的复兴和发展。
At the end of 2019, the “Lingjiang Yidu Sansheng Ferry Service Station” designed by our team was formally completed and put into use on the river bank on the side of Shijialiang, Santu Ferry. In this three storey steel structure building with an area of only 450 ㎡, it provides a place for citizens and tourists to display culture and relax, and at the same time, it solves the problem of accommodation and food for some crew members, so as to experience the ferry. The vision is to continue the original culture of old Chongqing, so as to drive the revival and development of both sides of the river.
市民对于车渡的体验兴致盎然,但渡江航行的过程仅短短几分钟,并不能完全满足作为体验及旅游消费目的地的需求。水土老街一侧,除了那些烟火气十足的街巷和老店能吸引摄影爱好者前来,对于90、00后的年轻人或普通市民而言,自然还缺乏一些可看、可拍、可玩、可停留消费的公共服务空间。无论城与乡,活化与更新,传承与发展,应是一个动态生长的过程而非某种静态终极目标。在这里,思考、研究与实践还在继续。
The citizens are very interested in the experience of the ferry, but the process of the river crossing is only a few minutes, which can not fully meet the needs as a destination for experience and tourism consumption. On the side of Shuitu Old Street, in addition to those lanes and old shops full of nostalgic atmosphere that can attract photography enthusiasts, for young people or ordinary citizens after 90 or 00, there is still a lack of public service space that can be seen, photographed, played, and stayed for consumption. Whether city or village, activation or renewal, inheritance or development should be a dynamic growth process rather than a static ultimate goal. Here, thinking, research and practice is continuing.
手爬岩,用重庆话应该念“手Ba岩”,是位于水土老街临江崖壁上的一片场地。顾名思义,这里地势陡峭,交通极为不便,不仅不通公路,甚至山路的坡度连推车也无法抵达,只能徒步前往。事实上,后期这个小咖啡馆的修建,所有的建材,无论钢结构还是石块、玻璃,都得依靠肩挑背扛,甚至拉来骡子参与搬运。
Hand Climbing Rock is a site located on the riverside cliff of Shuitu Old Street. As the name implies, the terrain here is steep, and the traffic is extremely inconvenient. Not only is there no driveway, but even the slope of the mountain road can not be reached by carts, so we can only go there on foot. In fact, in the later construction of this small coffee shop, all building materials, whether steel structures or stones or glass, had to be carried by shoulders, or even pulled mules.
从江边公路拾级而上,有一座小到几乎路过而不见的小庙,庙右侧的石碑上刻着1981年嘉陵江洪水时的水位线,再向上,离建设场地不到50米之处,有个天然洞穴,上方的岩石上阴刻有三个字,即便经过上百年风吹雨打,字体还依旧可辨——“棲流所”,棲是栖字的繁体,而栖流所则专指清代收留难民、流民的专门机构。
Up from the riverside road, there is a small temple that is almost invisible. The stone tablet on the right side of the temple is engraved with the water level line of the Jialing River flood in 1981. Then, less than 50 meters away from the construction site, there is a natural cave. Three characters are engraved on the rocks above. That is, after hundreds of years of wind and rain, the font is still recognizable – “Qiliusuo”, which refers to the special organization that took refugees in the Qing Dynasty.
水土老街的活化与更新,当地街道负责人先后选择了三处场地与设计方探讨改造前景与策略,除了手爬岩这处废弃垮塌的宅基地外,还有不远处的何家大院以及位于老街东侧的老电影院。一个成功的改造项目,不仅仅是物质空间的改造更新,而应该是将前期的产业策划和合理的功能定位在改造前便梳理清晰并落定到位,使改造后的空间物尽其用,避免空置浪费。就如总面积超过1000㎡的何家大院,虽然大家一致认为其改造后可以作为传承文化的展示之地或是民宿休闲的公共院落,但在没有具体承载内容、没有落实运营团队,没有具体空间需求的前提下,不能为了改造而改造,贸然动作。
For the activation and renewal of Shuitu Old Street, the local street principal has successively selected three sites to discuss the reconstruction prospects and strategies with the designer. In addition to the abandoned and collapsed house site of Hand Climbing Rock, there are Hejia Courtyard not far away and the old cinema located in the east of the old street.A successful transformation project is not only the transformation and renewal of the physical space, but also the prior industrial planning and reasonable functional positioning should be sorted out clearly and set in place before the renovation, so that the renovated space can be put to good use and avoid vacancy and waste. For example, the Hejia Courtyard with a total area of more than 1000 ㎡, although everyone agreed that it could be used as a place to display the heritage culture or a public courtyard for home stay and leisure after transformation, it should not be transformed for the purpose of transformation without specific content, implementation of the operation team, and specific space requirements.
团队研判再三,决定选择三个备选处中最小的一块不到200㎡的场地进行试点,其改造目标为可供招商租赁亦可作为公共空间使用的茶室咖啡馆。
The team has studied and judged many times, and decided to select the smallest site less than 200 ㎡ among the three alternatives for the pilot project. The transformation goal is to provide a teahouse and coffee shop that can be used for investment leasing and public space.
咖啡馆坐落于手爬岩的一处崖壁台地之上,周边被各个年代的矮旧房子包围,西面临江,视野开阔,与车渡服务站隔江相望。台地前有一条山地步道顺着山势蜿蜒而上,尺度逼仄,仅能步行,串联起来了老街的市井深巷。
The coffee shop is located on a cliff terrace on the Hand Climbing Rock, surrounded by low and old houses of all ages, facing the river in the west, with a wide view, and facing the Ferry Service Station across the river. In front of the platform, there is a mountain trail winding up the mountain, which is narrow and can only be walked, connecting the deep lanes of the old street.
于台地之上眺望,花草树木野蛮生长,青瓦屋顶鳞次栉比。这里拥有典型的山地老街格局,保留了老重庆最纯粹的模样,承载着山城数代人记忆的老街正在城市边缘以“活化石”的姿态见证着山城的变迁。
Looking over the terrace, flowers and trees grow wild, green tile roofs are arranged in rows. It has a typical pattern of old mountain streets, retaining the purest appearance of old Chongqing, and the old streets carrying the memory of generations of people in this mountain city are witnessing the changes of the mountain city at the edge of the city in the form of “living fossils”.
在设计之初,“显”或“隐”便是摆在面前的两种不同方向的思路。最终,不求以与众不同的色彩或形态去跳出环境、一味地强调自身所谓“设计感”的彰显自我,成了团队构思时的共识。设计,向下扎根,隐入场地,融于市井。在这里,老街作为历史文脉的载体,我们应当同面对时间和历史一般对之抱以尊重和敬畏。咖啡馆的一切应是质朴的,让建筑犹如在这块场地中自然生长而出,让它以一种极其谦逊的态度介入,力求最大限度地贴合场地。
At the beginning of design, “explicit” or “implicit” were two different ways of thinking. In the end, it became the consensus of the team that do not want to jump out of the environment with distinctive colors or shapes and blindly emphasize their so-called “sense of design” to reveal themselves. Design, take root downward, hide into the site, and blend into the old street. Here, as the carrier of historical context, we should respect and revere the old street as we face time and history. Everything about the coffee shop should be simple, so that the building grows naturally out of the site, allowing it to intervene in an extremely humble manner, trying to fit the site to the maximum.
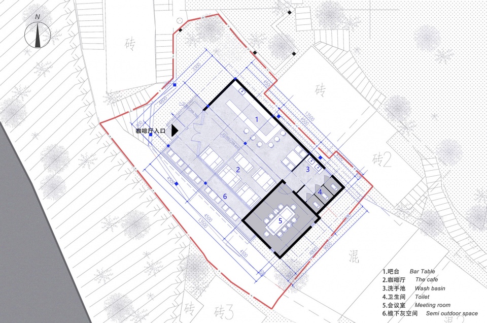
局促的场地以及周围紧邻的多层老旧建筑共同赋予了咖啡馆低矮的体量,于是咖啡馆的功能便被限定在面积仅为120㎡的单层体量之中。利用有限的体量做出尽可能多的感受,成为了本次设计的难点。建筑的功能被合理地划分为了一大一小两处空间,再辅以服务空间进行功能补充。大空间用于容纳可以自由布局的咖啡厅,包含操作台、辅助空间、客座区等,而小空间则置入了一个20㎡的小型会议室。在室外与室内的关系处理上,更是尽力去寻求视线上的自由——低矮的建筑体量限制了人们的视线,使得落地窗外的景致一下子就跳脱了出来。屋檐向外努力延伸,在落地窗外形成了宽约2m的檐下空间,将窗内的视野推向远处。落地窗与檐下空间相互叠合,双层次扩大了临江视野。
The cramped site and the adjacent multi-storey old buildings together give the coffee shop low volume, so the function of the coffee shop is limited to a single floor volume with an area of only 120 ㎡. Making use of the limited volume to make as many feelings as possible has become the difficulty of this design. The function of the building is reasonably divided into two spaces, one large and one small, supplemented by service space. The large space is used to accommodate the coffee shop that can be freely arranged, including the console, auxiliary space, passenger area, etc., while the small space is put into a small meeting room of 20 ㎡. In dealing with the relationship between outdoor and indoor, we try our best to seek the freedom of sight – the low building volume restricts people’s sight, making the scene outside the french window jump out at once. The eaves extend outward, forming a space under the eaves about 2m wide outside the french window, pushing the view inside the window to the distance. French windows and the space under the eaves overlap each other, expanding the view of the river.
在形态处理上,建筑和室内氛围呈现出了绝对的一致性——简约而不简单。建筑轮廓通过一大一小、一虚一实的两个单坡屋顶体块交错勾勒而成。坡屋顶的倾斜方向对场地面前唯一的山地步道形成避让,在面积极其受限的情况下,咖啡馆仍旧在入口处切角,退让出了一片入口广场,极大地消解了人们走上台阶后的局促体验。
In terms of morphological treatment, the architecture and indoor atmosphere show an absolute consistency – simplicity but not simple. The outline of the building is occluded by two single slope roof blocks, one large and one small. The sloping direction of the sloping roof gives way to the only mountain trail in front of the site. In the case of extremely limited area, the coffee shop still cuts corner at the entrance, yielding to an entrance square, which greatly dispels the cramped experience of people after walking on the steps.
建筑立面也通过对比实现了与整体的一致性:檐下空间的开敞与室内空间的闭合、落地玻璃窗的通透与穿插于其中的石头房子的敦实……各种虚实对比使得建筑在极小的尺度中完成了多种变化。最终,种种变化都统一于“一横(地平线)一竖(建筑竖向界面)一斜(单坡屋顶)”的精炼造型之中。
The building facade also achieves consistency with the whole through comparison: the openness of the space under the eaves and the closure of the indoor space, the transparency of the french glass windows and the solidity of the stone house interspersed in them… All kinds of empty and stocky comparisons make the building complete a variety of changes in a very small scale. Finally, all changes are unified in the refined modeling of “one horizontal (horizon), one vertical (vertical interface of the building) and one inclined (single slope roof)”.
咖啡馆的建造材料都就地取材,选用天然原石、旧木板以及钢材进行建造。旧木的细腻、天然原石的粗粝和钢材的坚硬,性格迥然不同的几种材质之间相互碰撞,在色调上与老街达到了惊人的一致性,营造出了一种独特的原始质感,在视觉和触觉上引起人的情感共鸣,使建筑扎根于老街,为老街而建,与老街共存。
The construction materials of the coffee shop are all local materials, using natural raw stones, old wooden boards and steel for construction. The delicacy of old wood, the coarseness of natural stone, the hardness of steel, and the collision between several materials with different personalities have achieved amazing consistency with the old street in color, creating a unique original texture, arousing emotional resonance in vision and touch, so that the building is rooted in the old street, built for the old street, and coexists with the old street.
建造是设计成功与否的关键一环,从选材到施工都由设计团队把关,设计团队认可后方能继续施工。石头墙是用当地的原石一块一块垒砌而成的,要求石材与石材之间的交接处勾水泥砂浆而又不裸露砂浆,这对工人的施工工艺提出了一定的要求。
Construction is the key to the success of the design. From material selection to construction, the design team checks. Construction can continue only after the approval of the design team. The stone wall is built with local raw stones one by one. The junction between stone and stone is required to be coated with cement mortar without exposing mortar, which puts forward certain requirements for workers’ construction technology.
原石及旧木板的选用也很考究,原石的尺寸不能太大,也不能太小,且要求大小均匀;旧木板选择的颜色及花纹也要既协调统一又要体现出旧木的温润和质感。
The selection of raw stones and old wooden boards is also very careful. The size of raw stones should not be too large or too small, and the size should be uniform; The color and pattern of the old wooden boards should also be coordinated and unified to reflect the warmth and texture of the old wood.
愿景,向上生长,带动老街,活化更新。咖啡馆是我们团队在水土老街更新中的又一试点,我们期望它可以继续作为触媒体,以点带线、以线带面、以面扩体,推动老街持续地、渐进地生长发展。
Vision, grow upward, drive the old street, activate and update. The coffee shop is another pilot project of our team in the renewal of Shuitu Old Street. We hope that it can continue to serve as a touch media to promote the sustainable and gradual growth and development of the old street by leading the line with points, leading the area with lines, and expanding the volume with areas.
乘着九月的尾声,我们前往咖啡馆进行建筑拍摄。从水土老街江岸拾级而上,经过望江楼网红米线、穿过光影斑驳的老街深巷、再走过门口开满大片三角梅的何家院子,就到了。彼时咖啡馆已经营业两月有余,前来打卡休闲的游客仍旧络绎不绝,或是通过自媒体、或是朋友推荐前来。不论如何而来,他们都选择了将自己的时光留在了这小小的咖啡馆之中,凝固在老街的市井烟火气之中。
At the end of September, we went to the coffee shop for architectural photography. You can go up the river bank of Shuitu Old Street, go through Wangjianglou rice noodles, go through the dark and shadowy old streets and deep lanes, and then go through the Hejia courtyard, which is full of triangular plum blossoms. At that time, the coffee shop had been open for more than two months, and there was still an endless stream of tourists who came for leisure, either through internet or recommended by friends. No matter how they came, they all chose to leave their time in this small coffee shop, solidified in the atmosphere of the old street.
最令人意外的是,咖啡馆正在慢慢地融进老街居民的生活中。前来消费的人群中本地人占半数,就连员工也多是本地人。嬢孃们喜爱来此处放风,小孩子们喜欢来这里玩耍,咖啡馆于老街就像是村口的大树一般,成为了老街的一处日常公共空间。
The most surprising thing is that this coffee shop is slowly merging into the lives of residents in the old street. Local people account for half of the people coming for consumption, and even the employees are mostly local people.Aunties like to come here to have a rest, and children like to play here. This coffee shop in the old street is like a tree at the entrance of the village, becoming a daily public space in the old street.
刻板印象让我们认为咖啡馆的受众人群应该是城市中的年轻人们,但其实不然。不论是小孩、还是嬢孃们,都乐于投身悠闲惬意的生活氛围,去感受这所小房子所带来的精神愉悦。对美好事物的欣喜总是不分对象的,而这种平易近人的精神愉悦也正是这所小房子的最大感动所在。我们希望这种欣喜和感动能够通过这所小房子内化进老街的每一处人家,也能够源源不断地为这片土地汲取更多的活力。我们相信,在咖啡馆之后,水土老街还会有更多的“咖啡馆”出现。
Stereotype makes us think that the target population of coffee shops should be young people in cities, but in fact it is not. No matter children or aunties, they are willing to join in the leisurely and comfortable life atmosphere to feel the spiritual pleasure brought by this small house. Everyone will be happy with the good things, and this kind of approachable spiritual pleasure is also the most touching part of this small house. We hope that this joy and emotion can be internalized into every family in Shuitu Old Street through this small house, and can also continuously absorb more vitality for this land.We believe that there will be more “coffee shops” in Shuitu Old Street after this coffee shop.
项目名称:水土老街手爬岩咖啡馆
项目类型:公共建筑
项目地址:重庆市北碚区水土街道陵江社区
建筑面积:120㎡
联系邮箱:cqyueji@163.com
项目设计:2021.05
完成年份:2022.06
设计单位:重庆悦集建筑设计事务所
主持建筑师:田琦 何飙 李骏
设计团队:郭剑 鲁泽希
结构专业:王立彬
给排水专业:王月冬
电气专业:陈卫
暖通专业:吴猛
施工单位:重庆儒阳建筑工程有限公司
业主方:重庆市北碚区人民政府水土街道办事处
摄影版权:常文雨,田琦,刘国畅
Project name:Hand climbing Rock Cafe in Shuitu Old Street
Project type:Public building
Project location:Lingjiang Community, Shuitu Street, Beibei District, Chongqing
Gross built area:120㎡
Contact e-mail:cqyueji@163.com
Design year:2021.05
Completion Year:2022.06
Design:Chongqing Yueji Architectural Design Office
Leader designer:Tian Qi, He Biao, Li Jun
Team:Guo Jian, Guo jian, Lu zexi
Structure major: Wang Libin
Water supply and drainage discipline: Wang Yuedong
Electrical major: Chen Wei
HVAC discipline: Wu Meng
Proprietor:Shuitu Sub district Office of Chongqing Beibei District People’s Government
Construction unit:Chongqing Ruyang Construction Engineering Co., Ltd
Photo credit:Chang Wenyu,Tian Qi, Liu Guochang


















































