明月湖沙金小学改造咖啡馆,重庆/建筑
初识 | 兴衰后的时代遗存
First Acquaintance | The Legacy of the Times After the Rise and Fall
经历了我国十几年间的“撤点并校”政策后,乡村小学数量急剧减少,并涌现了大量的闲置校园及资产,建筑空间的浪费遂成了问题。作为时代特殊价值语境下的空间,村小筹融了过往的许多记忆与憧憬,不应沦为价值凹地继续荒废下去,抑或随着岁月的流逝将旧址夷为平地,彻底抹除它的时代印记。如何在现代社会的场域中,重新思考此类建筑的发展方向及自身定位,为其赋予新的身份,并探索环境、建筑和人共构的方式,是当下研究城乡更新的一个重要课题。
After more than a decade of “school abolition” in China, the number of rural primary schools have been drastically reduced, and a large number of unused campuses and assets have emerged, making the waste of architectural space a problem. As a space in the special value context of the times, the rural primary school has integrated many memories and aspirations of the past. It should not be reduced to a value depression and continue to be abandoned, or raze the old site to the ground with the passage of time, completely erasing its era mark.How to rethink the development direction and positioning of such buildings in the field of modern society, to give them a new identity, and to explore the way of co-construction of environment, architecture and people is an important issue in the current study of urban and rural renewal.
沙金小学,位于重庆市渝北区沙金村(现两江协同创新区),建于上世纪80年代末,作为曾经的乡村小学,废弃于21世纪初,现今行政划分纳入两江新区范围。初访这片场地时,杂草丛生,满目凋敝,犹如一位风尘仆仆、衣着陈旧的耄耋老者,却已是弃置许久。几十年前稚嫩的朗朗读书声与此时此景的萧肃赫然对比于眼前,老房子变成了落后破败的象征,被赋予一种自卑的情绪,似与现代社会“格格不入”。
Shajin Primary School, located in Shajin Village, Yubei District, Chongqing(Now the Chongqing Liangjiang Collaborative Innovation Zone), was built in the late 1980s.As a former rural primary school, it was abandoned in the early 21st century, which is now administratively divided into the scope of the Two New Rivers New District. When I first visited this site, it was overgrown and full of weeds, like a dusty, old man in old clothes.It has obviously been abandoned for a long time.The old house became a symbol of backwardness and dilapidation, and was given an inferiority complex, seemingly “out of place” in modern society.
原建筑主体为三层砖混结构,矩形平面布局,南北长39.6m,东西宽8m,各层层高均为3.6m,外连两层附属用房,整体为中轴对称布局,面贴黄色瓷砖,内部可容纳8间教室。现今在重庆两江协同创新区的上位规划背景下,明月湖片区规划计划将其改造作为抗战大后方高校内迁馆及配套公共服务空间。通过此次更新的契机,我们希望充分依托场地背山环水的优越生态,将自然和文化元素融入到设计之中,置换单调废置的功能空间和打破呆板对称的建筑形式,在这个承载记忆的文化容器中创造出叠合、开放、多元的复合型空间,一方面来满足人们在身体和精神两方面恢复活力的需求,另一方面提升片区的文化传播力,从而带动两江协同创新区的整体发展。期待着,在此处,一种久违了的乡村公共空间形式被构想和呈现……
The main body of the original building is a three-story brick and concrete structure with a rectangular layout, 39.6m long from north to south, 8m wide from east to west, and 3.6m high on each floor, with two floors of attached rooms. Nowadays, in the context of the upper planning of Chongqing Liangjiang Synergistic Innovation Zone, the planning of Mingyue Lake area plans to transform it into a museum for the relocation of universities in the Great Rear of the Resistance War and supporting public service space. Through the opportunity of this renewal, we hope to fully rely on the superior ecology of the site, which is surrounded by mountains and water, integrate natural and cultural elements into the design, replace the monotonous and abandoned functional space and break the dull and symmetrical architectural forms, and create a composite space of overlapping, open and diversified in this cultural container carrying memories, so as to meet the needs of people’s physical and spiritual rejuvenation on the one hand. On the one hand, it will meet the needs of people’s physical and spiritual rejuvenation, and on the other hand, it will enhance the cultural communication power of the area, thus driving the overall development of the Two Rivers Collaborative Innovation Zone.It is expected that a long lost form of rural public space will be conceived and presented here.
回应 | 与自然的诗意共鸣
Response | Poetic Resonance with Nature
小学位于明月湖畔的一片林静山幽之地,三面环水,背靠群山。场地的东、西及北侧均为临湖面,拥有开阔的湖景视线。场地西南侧新置入了一个游船码头,晨光初露,泛舟摇曳其中,湖面微波荡漾,再现了中国古代文人山水画悠远的意境。除由湖而来,亦可驱车经沿湖公路行至场地南侧,顺着一条蜿蜒小路向前即可看到场地的入口,四周高大的常绿乔木与湖面围合出一片不规则的区域。面对这样诗意的自然场地特征,我们希望采用谦逊的场地处理策略,因地制宜,顺势而为,使改造更新后的空间与原有自然生态产生共鸣,从而将建筑与场地、自然、城市有机的联系在一起。
The primary school is located in a quiet and mountainous area on the shore of Mingyue Lake , surrounded by water on three sides and backed by mountains. The east, west and north sides of the site are adjacent to the lake, with a wide view of the lake. A new boat dock has been installed on the southwest side of the site. When the morning light dawns, boats will be swaying on the lake and the surface will be rippling, recreating the distant mood of ancient Chinese literati landscape paintings. In addition to coming from the lake, one can also drive along the lake road to the south side of the site and follow a winding path to the entrance of the site, surrounded by tall evergreen trees and the lake surface to enclose an irregular area. In the face of such poetic natural site characteristics, we hope to adopt modest site treatment strategies, adjust measures to local conditions, and follow the trend, so that the reconstructed and updated space resonates with the original natural ecology, so as to organically connect the building with the site, nature and city.
首先在东侧整个这一块场地中,利用原来的操场形成上下两个台地的关系,置入坡道连接两者,上部的平台与建筑主入口相连接,而下部的平台则有良好的休闲氛围和滨水开阔的视野,作为市民公共开放活动的场地的同时,补足原有建筑亲水性不强的问题。其次,因场地中原建筑所在的高台与水岸线存在约6.6米的高差,我们在建筑西侧引入五个交错叠合的观景平台来连接高低两处地势,一方面强化它们之间的对话关系,让建筑自然地顺应地形条件;另一方面将人的视线进行层次化导向处理,营造过渡式的公共漫游体验。
First of all, in the whole site on the east side, the original playground is used to form the relationship between the upper and lower platforms, and a ramp is placed to connect the two. The upper platform is connected with the main entrance of the building, while the lower platform has a good leisure atmosphere and a wide view of the waterfront. As a venue for public open activities, it complements the lack of hydrophilicity of the original building. Secondly, due to the height difference of about 6.6 meters between the platform where the Central Plains building is located and the water shoreline, we introduce five staggered viewing platforms on the west side of the building to connect the high and low terrains. On the one hand, we strengthen the dialogue between them, so that the building naturally conforms to the topographic conditions; On the other hand, people’s line of sight is guided hierarchically to create a transitional public roaming experience.
在场地景观设计的思考中,设计团队希望秉持自然恢复、生态修复的观念,尊重原生环境,在保留场地原有地貌前提下,经过合理且有节制的设计,表达出场地自身独特的韵味与意境。设计初,对场地西北半岛大片的竹林,大树,以及场地东侧靠水岸线的一排树群决定进行全部保留。在场地植物的选择上,尽量采用原生态的、富有野趣的草木,自然生态的芦苇、芭茅,为空间增添明快鲜活的色调,低矮的灌木丛隐在林间,辅以清新素雅的再力花,唐菖蒲,水生美人蕉,旱伞草,梭鱼草等植物作点缀,塑造了成片的适合水岸生长、带有野趣的移步易景的关系。用诗意的方式回应环境中层叠的文化印记,以期将此处打造为曲径通幽,野趣与禅意并存的静雅之地,从而焕发新的活力。
In the consideration of the landscape design of the site, the design team hoped to uphold the concept of natural restoration and ecological restoration, respect the native environment, and express the unique flavor and mood of the site through a reasonable and restrained design while preserving the original landform of the site. At the beginning of the design, it was decided to preserve all the bamboo forests and large trees in the northwest peninsula of the site, as well as a row of trees along the waterfront on the east side of the site. In the selection of plants for the site, we try to use original and wild grasses and trees, natural reeds and barberry to add bright and vivid tones to the space, low shrubs hidden in the forest, supplemented by fresh and elegant flowers, calamus, aquatic plantain, dry umbrella grass, barracuda and other plants for embellishment, shaping the relationship between the patches of suitable for waterfront growth, with the wild and easy to move. In a poetic way, we respond to the cascading cultural imprints in the environment, with the aim of creating a quiet and elegant place where the paths are open to the public, and where wildness and Zen coexist, thus giving it a new vitality.
新旧 | 时间的凝固与流动
Old and New | The Solidification and Flow of Time
原建筑主体为三层砖混结构的,形式呆板对称,质量等级较差,需针对许多结构的薄弱环节进行有效加固。建筑师选择采用“轻介入”的结构策略,协调新旧结构之间关系,打破呆板对称感,丰富建筑空间形式,与新植入功能的气质相匹配。具体做法是——在两侧脱开外墙800mm进行新加入的钢结构基础开挖,搭建形成一套新的“门”形框架钢结构体系,使其既与原有体量相互搭接融合一体,实际又独立承受荷载,不干扰原有结构。
The main body of the original building was a three-story brick and concrete structure with a dull and symmetrical form and poor quality grade, which needed to be effectively reinforced for many structural weaknesses. The architect chose to adopt the structural strategy of “light intervention” to coordinate the relationship between the old and new structures, to break the dull symmetry, to enrich the form of the building space, and to match the temperament of the newly implanted functions. The specific approach is to excavate the foundation of the new steel structure 800mm away from the outer wall on both sides, and build a new “door” shaped frame steel structure system, so that it not only laps and integrates with the original volume, but actually bears the load independently, without disturbing the original structure.
新置入的钢结构体系,不仅满足了新增楼梯、平台、卫生间等功能性需求,同时也为外立面的形态表达提供了多种可能。为了提升展览馆入口一侧空间界面的丰富性并满足遮风避雨的需求,在东侧入口上的屋顶增加连续折面的坡屋顶,形成入口展廊灰空间,增加进入空间仪式感的同时,柔化了原本建筑面向公共开敞区域生硬的室内外边界。
The new steel structure system not only meets the functional needs of the new stairs, platforms and toilets, but also provides a variety of possibilities for the expression of the facade. In order to enhance the richness of the spatial interface on the entrance side of the exhibition hall and to meet the demand for shelter from wind and rain, a continuous folded sloping roof is added to the roof of the east entrance to form the gray space of the entrance gallery, increasing the sense of ritual of entering the space while softening the rigid indoor-outdoor boundary of the original building facing the public open area.
此外,建筑师引入木色的“竹钢”包裹在被改造建筑的四周,作为构造材料和装饰材料,来进行块与面的组合,和原主体划分出清晰的层次。改造后的建筑空间,既是承载时间的容器,又是过去与当代之间的锚点,时间的凝固与流动,记忆的重现与延续,交汇定格在此处。
In addition, the architect introduces wood-colored “bamboo steel” wrapped around the renovated building as a construction material and decorative material to combine blocks and surfaces, and to delineate a clear hierarchy with the original main body. The transformed building space is both a container of time and an anchor point between the past and the present, where the solidification and flow of time and the reproduction and continuation of memory intersect and are fixed.
借景 | 回归日常的趣味
Borrowed Scenery | Return to Daily Interest
“建筑物不是物的制造,而是沿着日常生活去创造事件,把人连接起来”。改造后的建筑,妄图脱离于宏大叙事的主题,在细微之处体现日常的趣味,目的是与到访者产生知觉和视觉上的微妙连接。将借景应用于建筑中,是本次设计中一条重要的思考脉络。
“The building is not the making of things, but the creation of events along the daily life to connect people”. The remodeled building is a vain attempt to depart from the theme of grand narrative and embody the interest of the everyday in subtle ways, with the aim of creating a subtle connection with visitors both perceptually and visually. The use of borrowed scenery in the architecture is an important line of thinking in this design.
位于场地东侧的入口处有一条约1.5米宽30米长的坡道,连接了上下两块有高差的台地,在坡道的末端则保留了原场地的一棵遒劲挺拔的古树,与岸边的一排构树群形成互望对景之势。同时站在室内二层的楼梯平台上亦可直接看到建筑入口处的景观布置,形成看与被看的关系。建筑的内部空间则是采用了远借的手法,在室内向外眺望,感受“无数峰峦远近间”。移步换景,举目皆景。
At the entrance of the site on the east side, there is a ramp of about 1.5 meters wide and 30 meters long, connecting the upper and lower terraces with a difference in height, and at the end of the ramp, a strong old tree from the original site is preserved, forming a mutual view with a row of trees on the shore. At the same time, standing on the staircase platform on the second floor of the interior can directly see the landscape arrangement at the entrance of the building, forming a relationship between seeing and being seen. The interior space of the building adopts the technique of borrowing from afar, looking out indoors and feeling “countless mountains far and near”. The scenery changes step by step, and the scenery is everywhere.
为打破原有呆板对称的空间形式,并丰富天际轮廓,在建筑的三层嵌入错落有致、富有节奏变化的木质坡屋顶盒子,既是对传统形制的致敬,又是抽象之后的创新形态。而顶部体量的表皮采用了虚实相间的朦胧化处理手法,木格栅和玻璃幕墙作为新的材料增强建筑的虚实对比,未被覆盖的部分剔除原有瓷砖使用黄灰色抹灰替换,保留原有建筑记忆的同时增加表皮质感。
In order to break the original dull and symmetrical spatial form and enrich the skyline silhouette,the three floors of the building are embedded with staggered and rhythmically changing wooden sloping roof boxes, which are both a tribute to the traditional form and an innovative form after abstraction. The surface of the top volume adopts the hazy treatment method of alternating virtual and real. The wood grille and glass curtain wall are used as new materials to enhance the virtual and real contrast of the building. The uncovered parts are removed and the original tiles are replaced with yellow gray plastering to retain the memory of the original building and increase the sense of surface cortex.
文脉 | 场所精神的延续
Context | Continuation of The Spirit of Place
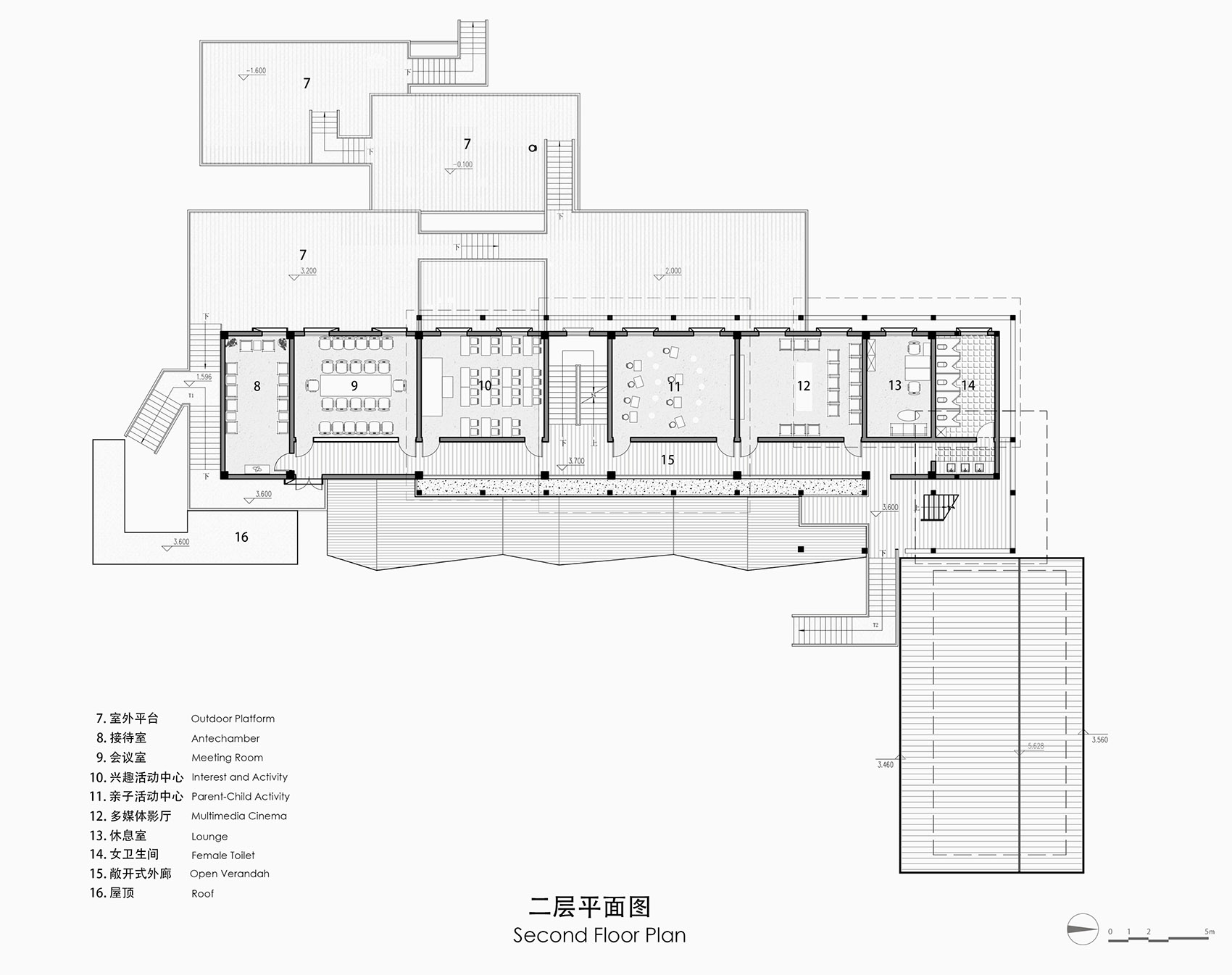
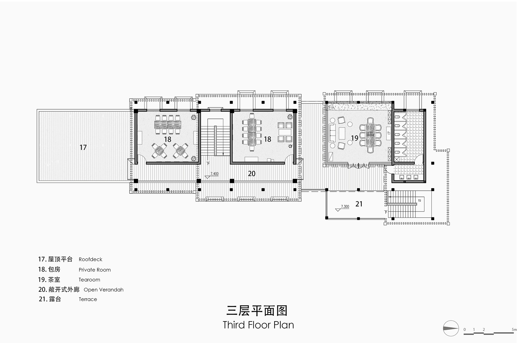
改造设计的基本思路是从保留其独特而内在的特性出发,激发场所特质,并运用多种手法以达到新旧交融的目的,实现空间与历史的对话。现一层空间承担了文化历史信息的传播功能,到访者可以在此处了解到抗战时期高校西迁的史实,这是过往历史与当下空间的碰撞,也是乡村小学教育功能的另一种延续,加强了场地的历史叠合感和空间丰富度。建筑的二层利用原有教室的宽大空间,作为青少年培训、文化艺术讲堂和多媒体会议室等具有参与性的功能空间。建筑三层则是茶室和小型会议室,把当下空间与参观者的需求结合起来。
The basic idea of the renovation design is to preserve its unique and intrinsic characteristics, to stimulate the characteristics of the place, and to use a variety of techniques to achieve the purpose of blending the old with the new, and to realize the dialogue between space and history.The current first floor space assumes the function of disseminating cultural and historical information, where visitors can learn about the historical facts of the westward migration of colleges and universities during the War of Resistance, which is a collision of the past history and the present space and another continuation of the educational function of the rural elementary school, strengthening the sense of historical superposition and spatial richness of the site. The second floor of the building utilizes the large space of the original classroom as a participatory functional space for youth training, culture and art lecture hall and multimedia meeting room. The third floor of the building is a tea room and a small meeting room, combining the current space with the needs of visitors.
原沙金小学只有中部的一个竖向楼梯,无法满足现有疏散和功能要求。因此我们在建筑南北两侧的放大节点处置入钢结构楼梯,为到访者提供清晰的视线引导,使其与叠级的平台、原有建筑交通体形成立体漫游路径,从而实现竖向设计上的自由流动。另外,在北侧破损严重的原有厕所、厨房基址上进行了拆除重建,置入一个出挑的、视线通透的全景咖啡厅,满足了参观者或游客休憩放松等多样化的需求,也让这样一个看似严谨的教育基地,业态更丰富多元,更富有生机与吸引力。
The original Shajin Primary School has only one vertical staircase in the middle, which cannot meet the existing evacuation and functional requirements. Therefore, we disposed the steel structure staircase at the enlarged nodes of the north and south sides of the building to provide visitors with a clear line of sight, so that they can form a three-dimensional roaming path with the stacked platforms and the original building traffic body, thus realizing the free flow in the vertical design. In addition, the existing toilets and kitchen on the north side were demolished and rebuilt, and a panoramic café with a clear line of sight was inserted to meet the diversified needs of visitors and tourists, and to make such a seemingly rigid educational base more diversified, vibrant and attractive.
闲置废弃的沙金小学,曾经是乡村中孩子们的基础教育设施,改造后则作为面向重庆市民宣传抗战时期大后方高校内迁那段波澜壮阔历史的展览馆。从原有的乡村教育功能到当下的历史展陈教育,这不仅是功能的置换,空间的复兴,更是一种文脉的传承,是空间场所精神的延续。
The idle and abandoned Shajin Primary School, once a basic education facility for children in the countryside, was transformed into an exhibition hall for the citizens of Chongqing to publicize the dramatic history of the relocation of colleges and universities to the rear during the war. From the original function of rural education to the current historical exhibition education, it is not only a replacement of function and revival of space, but also a heritage of culture and the continuation of the spirit of space.
展望 | 村小的现代性探索
Outlook | The Quest for Modernity in Village Primary Schools
乡村小学充分利用其良好的改造条件重焕新面,取得最终成效的不仅是既有建筑的更新层面,更对未来城乡发展的思考,文化的保护与传承、传统技艺的营造、地域文化自信的建立、乡土生活的激活都是超越建筑物质空间本身而具有独特作用的。这些年在理论方面不断的探索思辨和对设计手法的整理归纳,以及过往改造更新项目建成后的反馈,为我们提供了新一轮讨论与反思的空间。乡村小学的改造最终不能遗忘的是过去空间的公共属性,服务的本体依旧是人,建筑师在设计过程中的一系列的探索与尝试均当以“保护”为前提,这是不变的。
The rural primary school makes full use of its good renovation conditions to renew its new face, and the ultimate result is not only the renewal of existing buildings, but also the reflection on future urban and rural development, the preservation and transmission of culture, the creation of traditional skills, the establishment of regional cultural confidence, and the activation of local life are all unique beyond the material space of the building itself. Over the years, we have been exploring the theoretical aspects and summarizing the design approaches, as well as the feedback after the completion of past renovation and renewal projects, providing us with a new round of discussion and reflection. The ultimate thing that cannot be forgotten in the renovation of rural primary school is the public attribute of the past space, and the service object is still the human.A series of explorations and attempts in the design process of architects should be based on the premise of “protection”, which is unchanged.
希望未来通过建筑师们微薄的努力,去展现这个时代下乡村小学焕然一新的面孔。教育阻断贫困代际遗传,是改变乡村的起点,而建筑师的介入是重新谱写乡村基因的密码的关键。实体空间的留存是对过去岁月的凝望和纪念,而记忆空间中留存的是山的味道,风的味道,阳光的味道,也是时间的味道,人情的味道。
We hope that in the future, through the modest efforts of our architects, we can show the new face of rural primary school in this era. Education is the starting point for changing the countryside by interrupting the intergenerational transmission of poverty, the intervention of architects is the key to rewrite the code of rural genes. The retention of physical space is the gaze and remembrance of past years, while the memory space is the taste of mountains, wind, sunshine, time and human feelings.
▼总平面图,General layout
▼首层平面图,1F plan
▼二层平面图,2F plan
▼三层平面图,3F plan
▼东立面图,East elevation
▼南立面图,South elevation
▼剖透视图,Sectional Perspective
项目名称:明月坊——沙金小学改造方案
项目类型:既有建筑改造与更新
项目地址:重庆市两江协同创新区明月湖
建筑面积:1450㎡
联系邮箱:cqyueji@163.com
项目设计:2020.01–2020.04
完成年份:2021.05
设计单位:重庆悦集建筑设计事务所
主持建筑师:田琦 何飙 李骏
设计团队:宛良清 郭剑 刘旭 翁钰展 孙婧 鲁泽希
结构专业:王立彬 刘鹏
给排水专业:王月冬
电气专业:陈卫
暖通专业:吴猛
施工图合作单位:重庆何方城市规划设计有限公司
业主方:两江协同创新区建设投资发展有限公司
建设单位:重庆两江新区市政景观建设有限公司
摄影版权:三棱镜建筑空间摄影,田琦
Project name: Mingyuefang——Reconstruction plan of Shajin primary school
Project type: Reconstruction and renewal of existing buildings
Project location: Mingyue lake, Liangjiang Collaborative Innovation Zone, Chongqing
Gross built area: 1450㎡
Contact e-mail: cqyueji@163.com
Design year: 2020.01——2020.04
Completion Year: 2021.05
Design: Chongqing Yueji Architectural Design Office
Leader designer: Tian Qi, He Biao, Li Jun
Team: Wan Liangqing, Guo Jian, Liu xu,Weng Yuzhan,Sun Jing,Lu Zexi
Structure major: Wang Libin, Liu Peng
Water supply and drainage discipline: Wang Yuedong
Electrical major: Chen Wei
HVAC discipline: Wu Meng
Working drawing partner: Chongqing Hefang urban planning and Design Co., Ltd
Proprietor: Liangjiang Collaborative Innovation Zone Construction Investment Development Co., Ltd
Construction unit: Chongqing Liangjiang New Area Municipal Landscape Construction Co., Ltd
Photo credit: Prism Images,Tian Qi






















































