万涧村儿童公益书屋,安徽 / 建筑
万涧是皖南一个典型的传统村落,村内60%以上的房屋是用土坯和木材建造的。这些传统民居一直被当地村民视为贫困的象征,近几十年来,由于城市化进程的加快,这些民居大多被废弃。与此同时,与其他偏远贫困村庄一样,村内及周边200余名留守儿童的教育成长问题也日趋严峻,他们的父母不得不常年在城市打工以维持生计。
Wanjian is a typical traditional village in Southern Anhui Province, where over 60% of rural dwellings are built with adobe and timber. Those traditional dwellings are always regarded by local villagers as a symbol of poverty and have been mostly abandoned due to accelerating urbanization in recent decades. At the same time, as in other remote and poor villages, in Wanjian the education problem of over 200 left-behind children, whose parents have to work all year around in cities to improve their livelihoods, is becoming increasingly serious.
▼项目概览,Overall view
▼改造前的房屋状况 & 总平面图,The existing site & Site plan
在此背景下,项目组与当地村民研究互动后,决定将由当地村民在1981年集体建造的手工竹纸作坊土坯房改造,用慈善捐款为万涧的留守儿童建书屋。项目通过从前期规划到建成运营的全程实地调研,既满足了留守儿童各种形式的公益活动需求,又探索和论证了传统村落空废化房屋活化利用与村落社区可持续健康发展的方法路径。
Under the background, after study and discussion with local villagers, the project team decided to build a village library with charitable donations for those left-behind children in Wanjian by renovating an adobe house, which was built by local villagers in 1981 as a handmade bamboo-paper workshop, and has been abandoned since 1983. Through the whole process of on-site research from preliminary planning to completion and operation, the project aims not only to meet the demands for various forms of welfare education activities for left-behind children, but also to explore and demonstrate a feasible way for the revitalization and utilization of abandoned rural traditional dwellings and also for the sustainable development of village communities.
▼鸟瞰,Aerial view
儿童图书馆南侧紧邻竹林,东侧有一个小露台。原来的房子内部空间低矮昏暗,承重结构系统由破旧的木构架屋架和已经开裂并有倾覆风险的承重土坯围护墙组成。针对当地较低的施工水平和相对粗糙的组织模式,设计团队着重探索简洁朴素、高效易行的技术解决方案,以满足多种功能需求,创造丰富的空间体验。
The children’s library is adjacent to a bamboo forest on the south side and has a small courtyard on the east side. The original house was with dark and low interior spaces and an wall-bearing structural system consisting of a dilapidated timber roof structure and load-bearing adobe envelope walls which are already cracked and at risk of tipping over. In terms of local low construction level and relatively crude organization mode, the design team focuses on exploring simple, plain, and easy-to-operate technical solutions for complex problems aiming not only to meet multiple functional demands but also to create a rich spatial experience.
▼概念构成,Concept
▼从竹林望向书屋,View from the bamboo forest
▼改造后的书屋东立面,East facade after renovation
▼土坯墙的加固尽可能留存了村民们在物质层面共同的记忆,The reinforcement of the adobe walls preserves as much as possible the common memory of the villagers on a physical level
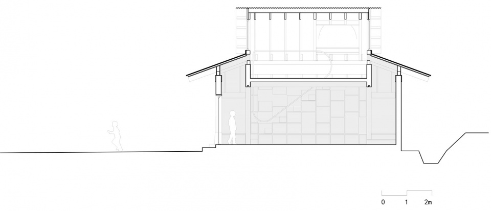
为减轻土坯外墙的荷载压力,室内原有非承重隔墙被一个置入的混凝土框架取代,使原本外墙承重结构转变为中心框架与外墙联合承重结构体系。该框架如同仅有一半桌面的四腿“方桌”,不仅可确保整个房屋的结构安全,而且其四条“桌腿”、桌面等结构构成,连同保留下来的土坯外墙一起,成为重新定义室内空间的界定要素。根据“方桌”上下、左右、前后等相对位置的不同,形成了一系列可满足多种功能需要的室内空间区域,以及相应的宽窄、高低、明暗等相互交替的空间体验。
In order to reduce the load pressure on the adobe exterior walls, the original non-load-bearing interior partition walls were replaced by a concrete frame, transforming the original structure system into a new one in which the central concrete frame, like a four-legged “square table” with only half of the table top, shares the roof load with the adobe exterior walls and further enhances the structural safety of the house. Meanwhile, all elements of the “table”, including its four “legs” and the table top, redefine the interior space and create a series of indoor areas for various functional demands, together with the corresponding spatial experiences in width, height, light and darkness.
▼内部空间,Interior view
▼可被灵活划分与拓展的多功能空间,The multi-functional space for various activities
“桌下”,可通过框架梁下帘布的开合与“桌子”北、东、西三侧,共同形成可被灵活划分与拓展的多功能空间,以满足孩子们上课、游戏、展览以及村民小组会议等多种使用需求;“桌子”南侧,利用兼做楼梯之用的书架,分隔形成相对安静的读书空间。
The spaces under the “table” and those on the north, east and west sides could flexibly be combined and divided with the curtain under the frame beam, so as to be adapted to various activities of children such as classes, games, exhibitions and even villagers gathering. The bookshelf on the south side of the “table” not only works as a staircase to the attic, but also forms a relatively quiet reading space.
▼室内一角,Interior view
▼ “桌子”限定出的多重空间,The spaces identified by the “table”
▼主厅,The hall
▼黑板墙,Blackboard
▼室内结构和高窗细节,Window and structural detail
为解决原有房屋土坯外墙开窗受限和室内层高局促的问题,原顶部主屋面由东西坡向改为南北坡向,并将屋脊适当抬高,以此不仅可以利用旋转后形成的三角山面设置高窗,大幅改善室内自然采光环境,而且连通一半“桌面”,形成可领略自然、远眺天祝山的二层静怡空间。新屋面上设置的气泡窗不仅克服了楼梯上人高度的限制,而且为孩子们创造了一个风中竹林炫动的梦幻体验。
For the limitation of the original house in interior space height and lighting environment, taking advantage of the opportunity of the roof structure renewal, the original roof was changed from an east-west slope to a north-south slope with a higher roof ridge, so as to create a pair of high windows and a comfortable and quiet mezzanine space with mountain and bamboo forest views on the “table” top, and further to greatly improve the interior natural lighting environment on the first floor. The bubble window embedded in the new roof not only overcomes the height restriction of the stairs, but also creates a dreamy experience for children with the internal view of the dazzling bamboo forest in the wind.
▼“桌面”上的阁楼空间,The attic above the “table”
▼面向竹林的气泡窗,The bubble window facing the bamboo forest
▼气泡窗外观,Bubble window exterior view
除必要的门窗洞口原位更新以外,尽可能减小对建筑外部原风貌的扰动,留存村民们30年的共同记忆。
In addition to the necessary in-situ renewal of windows and doors, the exterior appearance of the adobe walls is minimally disturbed as it carries 30 years of villagers’ common memories.
▼外观近景,A close-up view to the facade
▼竹林雪景,Winter scenery
现在,书屋运营采取村民互助和社工志愿者服务相结合的模式,以几乎零成本的方式保障了书屋的良好运行,已逐渐成为当地留守的儿童们放眼世界,与城市的孩子们一起共同成长的小天地。作为建筑师,我们希望为孩子们创造一个可以沉浸在阳光、蓝天、竹林和鲜花中感受自然和美丽以及传统智慧的家园。
Now, the children’s library is well co-operated by villagers and volunteer families from cities with a near-zero operating cost. It has become a window for the local left-behind children to see the outside world and grow together with the city children. As architects, we expect to create a home for the children where they can immerse themselves in sunlight, blue sky, bamboo forest and flowers, feel nature and beauty, and understand the traditional wisdom of their ancestors.
▼如今书屋已进入良好的自组织运行状态,Now the bookstore is in good self-organizing operation
▼平面图,Plan
▼长轴剖面,Long section
▼剖面图,section
项目名称:万涧村儿童公益书屋
项目类型:建筑
设计方:土上工作室,北京建筑大学,西安建筑科技大学
设计年份:2019
完成年份:2019
设计团队:蒋蔚,穆钧,谢月皎,吴仰晨,Tiffany LIM, Melanie PORRAS, 陈翔宇
结构设计:周铁钢,谭伟,高宇
项目地址:安徽省安庆市潜山县龙潭乡万涧村
建筑面积:103㎡
摄影版权:土上工作室
合作方:中国城市规划设计研究院
客户:中国城市规划设计研究院,潜山市住房和城乡建设局
项目管理:曹璐,刘琳,王先结,方跃,涂伟峰
Project name:Wanjian Village Children’s Library
Project type:Architecture
Design:Onearthstudio; BUCEA; XAUAT
Design year:2019
Completion Year:2019
Leader designer & Team:JIANG Wei,MU Jun, XIE Yuejiao,WU Yangchen, Tiffany LIM, Melanie PORRAS, CHEN Xiangyu
Civil Engineer: ZHOU Tiegang, TAN Wei, GAO Yu
Project location:Wanjian Village, Qianshan County, Anhui Province, China
Gross built area: 103㎡
Photo credit: Onearthstudio
Partner:China Academy of Urban Planning & Design
Clients:China Academy of Urban Planning & Design; Qianshan Housing and Urban-rural Development Bureau
Project Management: CAO Lu, LIU Lin, WANG Xianjie, FANG Yue, TU Weifeng








































