当代自然—云浮半山,北京/室内
久居樊笼里,复得返自然
随着社会生活品质的不断提高,人们对于找寻内心精神体验的愿望
变得越发强烈
与山野的邂逅宛如一场美妙的旅行
竹林层层,山色旖旎
沧海桑田,世事变迁
Living in a cage for a long time, returning to nature
With the continuous improvement of social life quality, people's desire to find inner spiritual experience
Become more and more intense
The encounter with the mountains is like a wonderful trip
Layers of bamboo forests and beautiful mountains
Vicissitudes of life

从事室内设计二十余年,痴迷于探索美好事物的资深室内设计师兼生活方式规划师,同时他也是位“自然生活方式”的倡导者。朋友Maggie一直就职于IT传媒行业,繁忙的工作虽然可以让她获得成就感,但同时,她也希望能拥有回归自然、内心平静的喘息时光,真正与繁杂快节奏的现代生活进行片刻分离。所以她在京西山中选了一处娴静惬意的房子,也算是圆了自己对慢节奏田园生活的向往。空闲的时候来小憩几天,外出工作的时候便当作民宿。
He is a senior interior designer and lifestyle planner who has been engaged in interior design for more than 20 years and is obsessed with exploring beautiful things. At the same time, he is also an advocate of "natural lifestyle". My friend Maggie has been working in the IT media industry. Although her busy work can give her a sense of achievement, at the same time, she also hopes to have a breathing time of returning to nature and inner peace, and truly separate from the complex and fast-paced modern life. So she chose a quiet and comfortable house in the Jingxi mountain, which can be regarded as fulfilling her longing for the slow-paced rural life. Take a few days' rest in your spare time, and use it as a B & B when you go out to work.

Maggie一直都很喜欢Foundhome充满自然气息的设计风格,便一拍即合,促成了这一次的合作。进入“云浮半山”你就能切实感到,室内设计与屋外京西山风景意境的无缝融合,民宿整体的设计风格与周围环境的自然色系相辅相成,大自然的赠予就是最天然的装饰。
Maggie has always liked the natural design style of foundhome, so they hit it off immediately, which led to this cooperation. When you enter the "Yunfu mountain", you can truly feel that the interior design is seamlessly integrated with the artistic conception of the outdoor Jingxi mountain scenery. The overall design style of the B & B complements the natural color of the surrounding environment. The gift of nature is the most natural decoration.

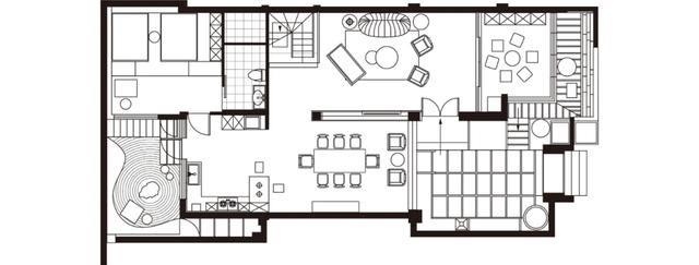
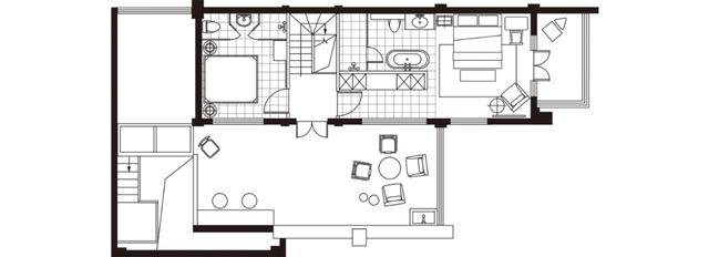
整个“云浮半山”民宿主要分为上下两层,由于Maggie很喜欢带家人和朋友前来小住,所以除了要配备三间有独立卫浴的卧室,另外还专门设置了茶室和露台,房子的后院还开辟出一处泡泉区。这些设施对她来说是很治愈的存在。
The whole "Yunfu Banshan" B & B is mainly divided into upper and lower floors. Maggie likes to bring her family and friends to stay, so in addition to three bedrooms with independent bathroom, there are also special tea rooms and terraces, and a bubble spring area is opened in the backyard of the house. These facilities are very healing for her.

找个周末,和家人朋友一起去趟“云浮半山”感受一下身心宁静的状态~
Go to "Yunfu mountain" with your family and friends on a weekend to feel the peace of mind and body ~

▼ 一层,First floor

▼ 二层,Second floor

项目信息
项目名称:当代自然系列——《山居之云浮·半山》
文章分类:室内设计
设计公司:鹏筑空间设计(北京)有限公司
项目地址:北京
项目规模:288㎡
设计师:刘悦鹏
项目年份:2019年
Project information
Project Name: Contemporary Nature Series - Mountain dwelling Yunfu · mid mountain
Article category: Interior Design
Design company: pengzhu space design (Beijing) Co., Ltd
Project address: Beijing
Project scale: 288 ㎡
Designer: Liu yuepeng
Project year: 2019














