崇礼北客运枢纽工程项目室内设计项目,北京/室内
01
设计理念
CONCEPT EXPRESSION & SPATIAL PERCEPTION
灵感来源
SOURCE OF INSPIRATION
雪山中的悦动—“ 中国的高铁站一个比一个大,像城市中一个个高大的宫殿,人在其中却感到非常渺小,周边通常是大马路、高架桥、和没有人去的大广场。我想,城市中的高车站有没有可能不追求宏大的纪念性,而具有优美的环境,舒适宜人的尺度,和便捷、人性的交通与城市功能?成为让人们不只是奔波,而是愿意停留、放松的城市公共空间?”
Yuedong in the Snowy Mountains - "China's high-speed railway stations are getting bigger and bigger, like towering palaces in the city, but people feel very small in them. The surroundings are usually big roads, overpasses, and large squares that no one goes to. I wonder if it is possible for high-speed railway stations in cities not to pursue grand commemoration, but to have beautiful environments, comfortable and pleasant scales, and convenient and humane transportation and urban functions? They have become urban public spaces that people are not only willing to travel, but also willing to stay and relax?"

崇礼—作为冬奥会重要场馆地址之一,当地独聚特色的气候和环境,奠定了这座城市不仅仅是旅途的过客,而是旅客的终点。因此在在方案的设计中,我们采用当地独聚特色“雪屋”作为方案的延伸。雪,不仅是景,因为她的到来,所以我们在此停靠。屋,不仅是名词房子,更是欢乐停歇的港湾。
Chongli - as one of the important venues for the Winter Olympics, the unique climate and environment of the local area have laid the foundation that this city is not only a passing traveler on the journey, but also a destination for travelers. Therefore, in the design of the plan, we adopted the local unique "snow house" as an extension of the plan. Snow is not just scenery, but we stop here because of its arrival. A house is not only a noun, but also a harbor for joy and rest.
规划概念
PLANNING CONCEPTS


业态规划
PLANNING CONCEPTS

02
方案设计
CONCEPT EXPRESSION & SPATIAL PERCEPTION
▼楼层平面-B2,PLANE ANALYSIS-B2

▼楼层平面-B1,PLANE ANALYSIS -B1

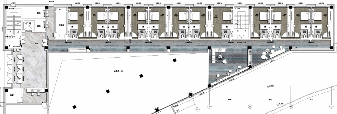
▼楼层平面-F1,PLANE ANALYSIS- F1

▼空间剖面图,Spatial profile map

▼配套服务增值,VALUE-ADDED SUPPORTING SERVICES

设计理念
DESIGN CONCEPT
山川-B2
Mountains and rivers-B2
阴山山脉东段
山势陡峻
一座塞北边城的盛世传奇
The eastern section of the Yinshan Mountains
The mountain is steep and steep
A prosperous legend of a northern border city
崇礼,位于张家口,地处燕山山脉边缘,北接内蒙古高原,南邻华北平原,境内山峦起伏,森林茂密、草场广阔,素有“塞北明珠”之美誉
Chongli, located in Zhangjiakou, is at the edge of the Yanshan Mountains, bordering the the Inner Mongolian Plateau in the north and the North China Plain in the south. With undulating mountains, dense forests and vast grasslands, Chongli is known as the "Pearl of the Northern Frontier"

设计风格
DESIGN STYLE

平面布局及功能分布
PLANE LAYOU

动线及区域分析
SPACE USE A LINE

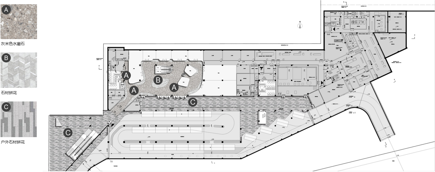
地铺设计
FLOOR DECORATION


03
标准卫生间设计
CONCEPT EXPRESSION & SPATIAL PERCEPTION
设计元素
DESIGN ELEMENTS
▼换成大厅扶梯,Replace with a lobby escalator


设计元素
DESIGN ELEMENTS


室内效果图-店面
INDOOR EFFECT

设计理念
DESIGN CONCEPT
白雪-B1
White Snow-B1
特殊的地形造就了当地独特的小气候,由于存雪期长,雪质佳,“雪”,成了此处最得天独厚的馈赠,一曲载入史册的恢弘交响。
The special terrain has created a unique microclimate in the area. Due to the long snow storage period and excellent snow quality, "snow" has become the most unique gift here, a magnificent symphony recorded in history.

设计风格
DESIGN STYLE

平面布局及功能分布
PLANE LAYOU

动线及区域分析
SPACE USE A LINE

地铺设计
FLOOR DECORATION

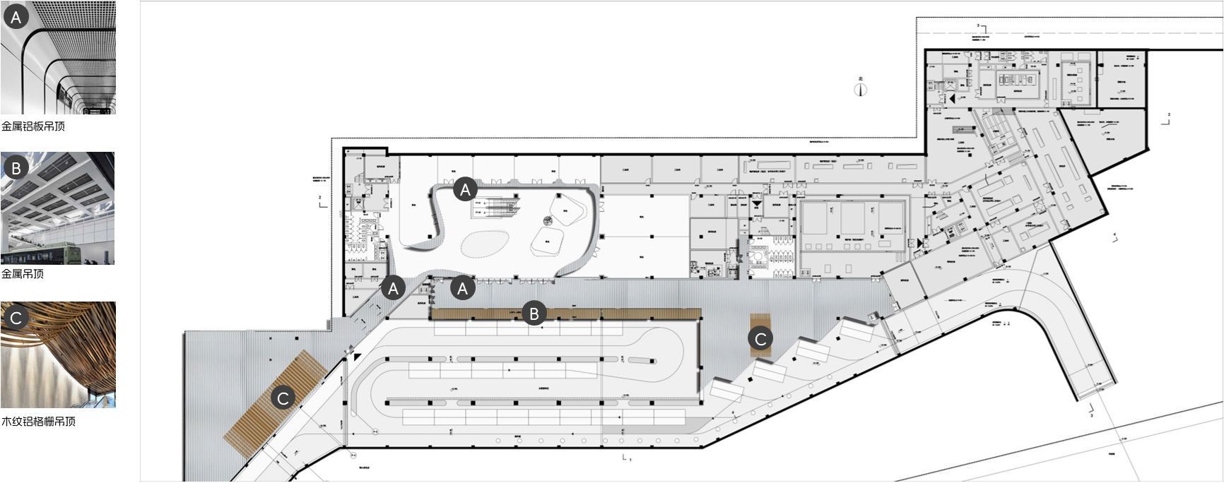
天花设计
INTEGRATED CEILING

室内效果图
INDOOR EFFECT
▼候车大厅,waiting hall

设计元素
DESIGN ELEMENTS

▼候车大厅通道,Waiting Hall Passage

▼换乘大厅,transfer hall

设计元素
DESIGN ELEMENTS

室内效果图
INDOOR EFFECT


室内效果图
INDOOR EFFECT

设计理念
DESIGN CONCEPT
木屋-F1
Wooden Rooft-F1

设计风格
DESIGN STYLE

地铺设计
FLOOR DECORATION
▼F1酒店前台、客房,F1 hotel front desk and guest rooms

室内效果图
INDOOR EFFECT
▼标准大床房,Standard double

室内效果图
INDOOR EFFECT
▼标准双人间,Standard Double Room

▼标准走道,Standard walkway

03
标准卫生间设计
DESIGN CONCEPT
效果图
INDOOR EFFECT


平面分析
PLANE ANALYSIS

地铺及天花
FLOOR AND CEILING

平面分析
PLANE ANALYSIS

地铺及天花
FLOOR AND CEILING

洁具方案
SANITARY WARE SOLUTION

04
标准配套空间设计
CONCEPT EXPRESSION & SPATIAL PERCEPTION
▼标准扶梯,Standard escalator

▼标准柱身,Standard column shaft

▼标准店面,Standard storefront

05
方案设计
THE PROJECT DESIGN
配色方案
THE COLOR SCHEME

材料搭配
MATERIAL COLLOCATION

项目名称:崇礼北客运枢纽工程项目室内设计项目
文章分类:室内设计-商业
项目地址:北京
项目规模:30000m²
设计主创:王建伟
设计团队:叶建森 张振波 王慧敏 于本彦
设计公司:北京华城远大建设有限公司
建 材: 地毯 铝板 木饰面 石材 瓷砖
项目年份:2021
业主单位:北京出版社产业园
施工企业:北京出版社产业园
Project Name: Interior Design Project of Chongli North Passenger Transport Hub Project
Article classification: Interior Design - Business
Project address: Beijing
Project scale: 30000m ²
Designer: Wang Jianwei
Design team: Ye Jiansen, Zhang Zhenbo, Wang Huimin, and Benyan
Design Company: Beijing Huacheng Yuanda Construction Co., Ltd
Building materials: Carpet, aluminum plate, wood veneer, stone tiles
Project Year: 2021
Owner: Beijing Publishing House Industrial Park
Construction enterprise: Beijing Publishing House Industrial Park













