La Moraleja18号别墅,西班牙 / Fran Silvestre Arquitectos
该项目的特点是可以看到属于马德里La Moraleja高尔夫球场的对角湖景。考虑到这一地点的面积,建筑师提出了一个主要在单层开发的住宅方案。白天的区域由两个不同高度的体量组成,它们相互转换,形成了一个面向景观的遮蔽露台,朝向东南方。主体高度接近一层半。第三座建筑是夜间区,其位置使其拥有自己更为私密的室外空间。
The project features diagonal views toward a lake belonging to the La Moraleja golf course in Madrid. Given that the size of this location allowed for it, a home was proposed that develops primarily on a single floor. The daytime area is organized into two volumes of different heights that shift in relation to each other, creating a sheltered terrace that faces the landscape, oriented southeast. The main body has a height of almost one and a half floors. A third structure houses the nighttime area, positioned in such a way that it has its own more private outdoor space.
▼项目鸟瞰,aerial view of the project


三个建筑体块的组合形成了一个朝北的入口庭院,为住宅的入户体验增添了独特的仪式感。建筑的几何设计不仅发挥了结构作用,使景观视野得以完全开放、无柱遮挡,同时也确保了空间的灵活性,便于未来根据不同的使用需求进行调整。
The interplay of the three built volumes forms an entrance courtyard, oriented north, which gives a distinctive character to the entryway experience. The geometry has a structural function, allowing for unobstructed views of the landscape without supports. This way, spaces may remain adaptable in the future for new uses and users.
▼三个建筑体块的组合,the interplay of the three built volumes

▼别墅外观,exterior of the villa

▼别墅外观,exterior of the villa



就像因纽特人和其他北极民族被认为拥有四十多个词汇来形容“雪”一样,在本项目中,设计面临的挑战是寻找一组极具细腻层次且富有温暖质感的白色调。这些色彩涵盖了从Colmenar天然石材到马德里森林中的梣木(白蜡木)、接近RAL 9016的各类黄铜材质,以及色温偏向2,700K的照明光线。我们的目标是通过这种融合多元材质的方式,营造出宁静而和谐的居住氛围。
Just as the Inuit and other Arctic peoples have, according to linguists, more than forty words to describe snow, in this project, we were challenged to find a very specific and extensive range of whites with warm undertones. These shades encompass everything from Colmenar’s natural stone to ash wood, which is found in the forests of Madrid, different types of brass with colors close to 9016, and lighting temperatures tending towards 2,700K. The aim was to achieve an integrated heterogeneity that would likely help to create a sense of calm within these domestic spaces.
▼别墅外观,exterior of the villa



▼别墅外观,exterior of the villa



▼泳池鸟瞰,aerial view of the swimming pool


下层空间则被规划为健康与休闲区域,包括游泳池、健身房及其他辅助设施,并通过天窗引入自然光线。建筑体块的边缘均采用圆角设计,塑造出流畅且富有动感的视觉效果。这些曲线元素主要运用于露台开放区域,既优化了建造工艺,又确保了室内空间保持规整的正交布局。
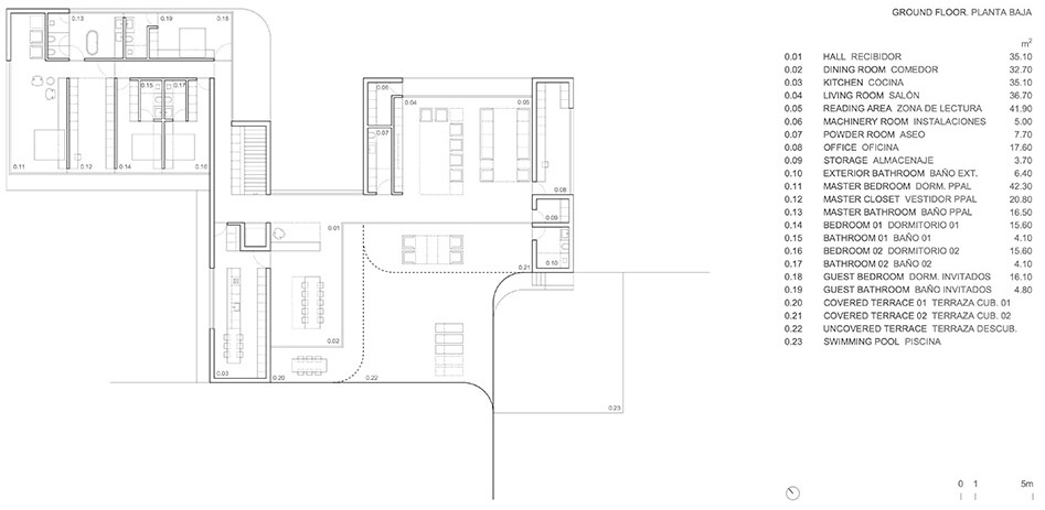
▼一层平面,ground floor plan

On the lower floor, spaces dedicated to physical well-being are located, including the swimming pool, gym, and other complementary uses, all illuminated by a skylight. Each volume features a rounded edge, generating a dynamic visual reading. These curved elements are placed in the open terrace areas, facilitating construction while ensuring that all interiors remain orthogonal.
▼健康与休闲区域,physical well-being area

▼健康与休闲区域,physical well-being area

▼室内空间,indoor space


▼塑造出流畅且富有动感的视觉效果,generating a dynamic visual reading

▼通过天窗引入自然光线,introducing natural light through the skylight

▼走廊,corridor

▼通往二层楼梯,the staircase towards the upper level

建筑师一直深受Andreu Alfaro作品中的设计策略启发。在他的部分雕塑中,直线与曲线的交融构成了流畅而连贯的视觉节奏,使观者的视线自然地从一个元素过渡到另一个元素。正如 Maderuelo所言,建筑师试图在本项目中“捕捉”这种空间特质。因此,住宅的主体被塑造为一个连贯的流动体验——游泳池延展至露台,露台进一步融入建筑立面,最终在泳池区域形成完整的回环。这种设计手法突出了住宅的核心价值之一:不仅是一处居住空间,更是一种可被观赏和体验的建筑艺术。
We have always been fascinated by this strategy in the work of Andreu Alfaro. In some of his pieces, the relationship between the straight line and the curve creates a continuous knot, where the eye appears to flow seamlessly from one element to another. As Maderuelo would say, we sought to “capture” this spatial quality from Alfaro’s sculptures. As a result, the main part of the house becomes a sort of continuous journey, where the swimming pool transitions into the terrace, which in turn integrates with the facades of the built volumes, ultimately closing the loop back at the pool. This approach highlights one of the many functions of the home: to be enjoyed by observing it.
▼客厅空间,living room space


▼浴室,bathroom

▼走廊,corridor


▼夜景鸟瞰,aerial view at night



▼庭院夜景,courtyard at night


▼夜景鸟瞰,aerial view at night



▼模型,model


▼场地平面,site plan

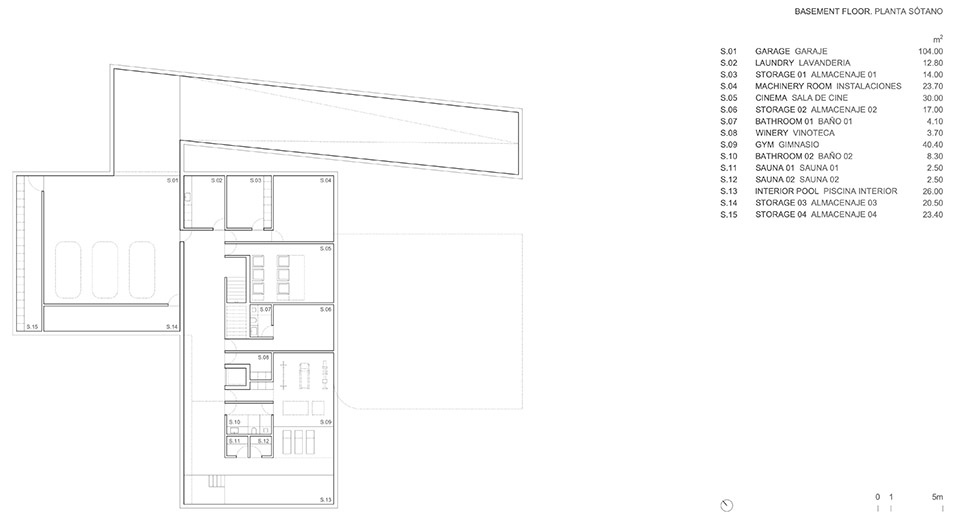
▼地下一层平面,basement floor plan

▼剖面,section

Architecture: Fran Silvestre Arquitectos
Project Team Fran Silvestre | Principal In Charge
María Masià | Collaborating Architect
Estefanía Soriano | Collaborating Architect
Carlos Lucas | Collaborating Architect
Interior Design: Alfaro Hofmann
Developer: 37 Threeseven
Technical Architect: Jorge Carrión Ponce
José Miguel Cota San Andrés
Structural Engineer: Estructuras Singulares
Photographer: Fernando Guerra
General Contractor:Project Work
Collaborators Pablo Camarasa | Collaborating Architect
Ricardo Candela | Collaborating Architect
Sevak Asatrián | Collaborating Architect
Andrea Baldo | Collaborating Architect
Angelo Brollo | Collaborating Architect
Javi Herrero | Collaborating Architect
Paco Chinesta | Project Architect
Gino Brollo | Collaborating Architect
Facundo Castro | Collaborating Architect
Anna Alfanjarín | Collaborating Architect
Laura Bueno | Collaborating Architect
Toni Cremades | Collaborating Interior Designer
Susana León | Collaborating Architect
David Cirocchi | Collaborating Architect
Neus Roso | Project Architect
Nuria Doménech | Collaborating Architect
Andrea Raga | Collaborating Architect
Olga Martín | Collaborating Architect
Víctor González | Collaborating Architect
Pepe Llop | Collaborating Architect
Alberto Bianchi | Collaborating Architect
Pablo Simó | Collaborating Architect
Andrea Blasco | Collaborating Interior Designer
Laura Palacio | Collaborating Architect
Carlos Perez | Collaborating Architect
Jovita Cortijo | Collaborating Architect
Claudia Escorcia | Collaborating Architect
Andrea García | Collaborating Architect
Diana Murcia | Collaborating Architect
Ana De Pablo | Financial Manager
Sara Atienza | Marketing Manager
Valeria Fernandini | Financial Department
Sandra Mazcuñán | Administration Department
José María Ibañez | Business Developer Ccg Y México
Andrea Álvarez | Marketing & Pr
Néstor Bolinches | Business Developer
Graciela Guillén | Marketing & Pr
Olga Fernández | Collaborating Interior Designer
Location La Moraleja, Madrid
Years Of Construction 2022 – 2024
Built Area: 1015 ㎡
Plot Area: 2764 ㎡
Product Typology: Single-Family Home














