春风市集,宁波 / 直距建筑设计
项目背景项目位于浙江省宁波市镇海区蛟川街道社区。随着现代人消费模式的转移,线上商业对线下商业的不断冲击,裙楼商业举步维艰,业态濒临“体无完肤”,裙楼商业的建筑使用与维护也近乎停滞。附近居住人群的组成以及他们的真实需求,是盘活这一区域的关键因素。由于周边人群多以老人和拆迁人员为主,生活采买、休憩休闲是其主要诉求,因此我们将菜场与小尺度公共空间——口袋公园引入街区,用生活方式重新盘活该区域。
Located in the Jiaochuan Subdistrict community of Zhenhai District, Ningbo, Zhejiang Province, the project addresses the challenges faced by podium commercial spaces under the impact of shifting consumer patterns and the rise of online commerce. Struggling to survive, these commercial spaces have seen stagnant utilization and maintenance, with their original business formats nearly eroded. The key to revitalizing this area lies in understanding the demographics and genuine needs of nearby residents. With a population dominated by elderly individuals and relocated residents, daily shopping and leisure activities are their primary demands. To address this, we introduced a fresh market and small-scale public spaces—pocket parks—into the neighborhood, using lifestyle-driven strategies to breathe new life into the area.
▼项目鸟瞰,aerial view of the project



▼用新“建筑”与原街区之间建立起新的联系,creating new link between new ‘building’ and the original block


改造策略“链接”是本次项目的关键词之一,不仅是用新“建筑”与原街区之间建立起新的联系,更是链接“商户”与“邻里”。儿时生活在农村那段日子,最期待的就是集市日的到来,步行五公里,去到一条自然形成的市集,琳琅满目,充满香气的包子铺,清汤铺、揣着5块钱,就可以自在一上午。自然形成的集市区别于城市中标准化的菜市场,它更多的是菜农自由地选择摆摊的时间和位置,人与人之间的物理与心理距离非常近。
Drawing inspiration from childhood memories of rural markets
vibrant, organically formed gatherings where people freely interacted
we sought to recreate this warmth in an urban setting. Unlike standardized urban markets, these nostalgic spaces emphasize flexibility, with vendors choosing their own timings and locations, shortening both physical and psychological distances between people.
▼链接“商户”与“邻里”的集市,links between the redesigned architecture and the original neighborhood


▼链接“商户”与“邻里”的集市,
links between the redesigned architecture and the original neighborhood

对于一个商业来说,持续的自然流量是很重要的,我们尝试从生活本身最基础的需求去找解决方案。用回归“村”的概念,去置入一个“村头”,“村头”的小卖部是最聚集人气的地方,茶余饭后,八卦闲聊,我们尝试打造一个类似“村头”一样的街区,去重新梳理这样一条街。既可以解决居民的生活所需,饿了可以吃碗馄饨,空闲时能晒晒太阳,聊聊八卦,成为一个能“聚气”的地方。
For sustainable commercial vitality, we focused on fundamental lifestyle needs. By reintroducing the concept of a “village entrance”—a traditional social hub—we reimagined the street as a communal space where residents can shop for groceries, enjoy a bowl of wontons, bask in the sun, or chat with neighbors, creating a “place that gathers energy and vitality.”
▼打造类似“村头”一样的街区,reintroducing the concept of a “village entrance”

围合起来的集市总有些距离感,我们尝试换一种方式,预留了“点状”散摊位,一个月中有几天可以成为自由集市的状态。中央做了微型的口袋公园,老人、小孩、年轻人都可以使用,现在居住小区模式,人实际上是很难聚在一块的,有了这个可以驻留的点,人们可以在买菜的中途停下来,唠嗑、闲聊,久而久之彼此熟悉。
To avoid the sterility of enclosed markets, we scattered “pop-up stalls” across the area, allowing periodic free-market days. A central pocket park serves all age groups, offering a pause in daily routines—a spot to linger, converse, and build familiarity over time.
▼微型的口袋公园,a central pocket park

▼微型的口袋公园,a central pocket park

原始的建筑立面为灰色,即使开了新店,也极少有人会注意到。因此我们选用了高饱和度的色彩把这条街勾勒出来,视觉上吸引人过来后,发现这里也可以满足他们的日常需求,逐渐形成一个生活场景。设计上所做的正是用这样一种方式把场景搭建起来,把需求呈现出来,让人能发现这里,使用这里。
The original gray building façades were visually uninviting, even after new shops opened. By introducing high-saturation colors, we transformed the street into an eye-catching destination. Once drawn in visually, visitors discover functional daily amenities, gradually forming an organic living scene. Our design aims to build such scenarios and highlight needs, inviting people to explore and engage.
▼选用了高饱和度的色彩,introducing high-saturation colors


设计思路Design Approach
微改动
Minimal Intervention
整个项目实际上有770㎡是商业租赁的业态,其它 1000㎡是公共开放空间。项目分为两期,方案从确认到一期落成只有25天,70%的构件是在工厂预加工的,30%是现场施工。
The project spans 770㎡ of leased commercial space and 1,000㎡ of public areas. Completed in two phases, the first phase—finished in just 25 days—relied on 70% prefabricated components and 30% on-site construction.
▼将原始裙楼的商业空间部分进行了退让,the commercial space portion of the original podium has been set back

▼屋檐悬挑形成3米宽的半户外空间,creating a 3-meter-wide semi-outdoor space

第一期我们做了一个屋檐,将原始裙楼的商业空间部分进行了退让,100米的裙楼,从商铺往内退了1.5米,屋檐悬挑1.5米,形成一个3米宽的半户外空间。这个空间既能遮风挡雨,又与内部的商铺连接,形成新的微型社交场景。第二期则是在现有的景观基础上做“微改动”,增加户外雨亭,在石凳上加小桌板等,用最轻微的改动,提高舒适度与体验度,增设更多的使用场景。
In Phase 1, we added a 1.5-meter cantilevered roof to the original podium, creating a 3-meter-wide semi-outdoor space. This sheltered area connects shops to the street, fostering micro-social interactions. Phase 2 introduced subtle enhancements like rain shelters and foldable tabletops on stone benches, optimizing comfort and usability with minimal intervention.
▼屋檐悬挑形成3米宽的半户外空间,creating a 3-meter-wide semi-outdoor space

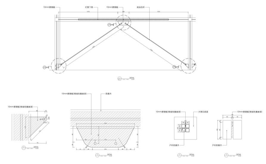
▼屋檐悬挑细部,cantilevered roof detail

轻盈
Lightness
雨亭选用了玻璃钢格栅与夹胶玻璃的组合,当光落下时,同个格栅进行一层柔化,避免阳光直射。同时使用者的视线向上看时能弱化周边杂乱的高层环境,形成舒适的视觉体验。
▼口袋凉亭结构,pocket park pavilion structure

Rain shelters combine FRP grating and laminated glass, softening sunlight while framing views of the sky and filtering out surrounding visual clutter. Cross-shaped steel frames and tension rods ensure structural lightness.
▼雨亭选用了玻璃钢格栅与夹胶玻璃的组合,rain shelters combine FRP grating and laminated glass


▼雨亭细部,rain shelters detail

结构上采用十字架的钢构与拉杆方式,让整个构筑物看上去更加得轻盈。坐具主要选用了水洗石、木质,类似“飞镖的形态。在主动线边界进行了内退,与商铺之间的 “留白”,削弱了建筑间的压迫感。同时考虑到日常生活状态下,老人使用的频率极高内退后,他们对于休息区的心理安全感会大大增强。
▼结构上采用十字架的钢构,Structural steelwork with crosses

Seating features washed stone and wood in dart-like shapes. Set back from main walkways, these areas reduce architectural while enhancing psychological safety for elderly users. The “negative space” between shops and seating encourages spontaneous gatherings.
▼结构上采用十字架的钢构,Structural steelwork with crosses

▼结构上采用十字架的钢构,Structural steelwork with crosses


▼坐具选用了玻璃钢格栅与夹胶玻璃的组合,seats using FRP grating and laminated glass


街区文化的重建与共生Reconstruction and Symbiosis of Neighborhood Culture
共享、生长
Shared Growth
把商业和休闲进行软性地结合,让大家在买菜过程中,陌生人看到你买了什么,一袋肉挺新鲜,或者谁家的鱼今天还可以,生成一个新的交流场景,进而形成一个新的停留点。随着交流、沟通次数增加,陌生人慢慢变成熟悉的“村里人”,然后发现原来是邻居,慢慢这里就形成拉近大家距离的一个场域。
By blending commerce and leisure organically, everyday interactions—like discussing fresh produce or sharing tips—create new social opportunities. Strangers gradually become familiar “villagers,” then neighbors, weaving tighter community bonds.
▼成为市民们闲聊聚会的场所,becomes a gathering space for citizens


曾经人烟稀少的裙楼商业焕新成为一个开放式的街区。通过项目改造,不仅仅在重建建筑,更是在重塑社区共生关系,市场不仅是商品交易场所,更是人们相聚交流、感受生活的空间。
Once-deserted podium spaces have evolved into vibrant, open neighborhoods. Beyond architectural renewal, the project rebuilds symbiotic relationships, transforming markets into spaces not just for transactions but for connection, conversation, and experiencing life together.
▼夜景,night view

▼工厂预制件,pre-cast component in factory

▼建造过程,construction progress


▼平面图,plan

▼口袋公园平面图,pocket park plan

▼口袋公园凉亭立面图,pocket park pavilion elevation

▼铺位遮雨亭,stand pavilion

▼廊道雨棚预制件,Prefabricated parts for corridor canopies

▼廊道雨棚预制件,Prefabricated parts for corridor canopies
Project name:Breeze Market
Project type:Commercial/Renovation
Design: Displacement architectural design
Contact e-mail: 443228854@qq.com
Design year:2024.11
Completion Year:March 2025
Leader designer & Team:willam,Scott,Chen Siqiang,Nicole Qiu
Project location: Ningbo
Gross built area: 1700㎡
Photo credit: wongke
Partner:Taizhou Aoyang Building Decoration Co.
Materials:Manganese-magnesium aluminum panels, steel structure, pine wood, fiberglass grating














