花园别墅,新加坡 / Create Architecture
由Create Architecture设计的花园别墅是一座展现热带精致生活的典范之作,建筑与景观在此交融,共同构筑出一处静谧的庇护所。该住宅荣获新加坡室内设计联盟颁发的2023年卓越设计奖铜奖,是传统与当代完美融合的典型案例。
Garden Villa by Create Architecture is a masterclass in refined tropical living, where architecture and landscape coalesce into a serene sanctuary. Honored with the Bronze Accolade at the 2023 Design Excellence Awards by the Interior Design Confederation Singapore, the residence exemplifies a harmonious blend of heritage and modernity.
▼住宅外观,exterior view of the villa

▼庭院与泳池,courtyard and pool


项目选址于一块被郁郁葱葱绿意环抱的非常规地块,设计在保留原有建筑的基础上进行更新,既尊重场地的历史文脉,又满足现代生活的实际需求。建筑灵感源于空中花园,模糊了建筑与自然之间的界限,使住宅随环境而生长。
Set within an unconventional plot embraced by lush greenery, the design revitalizes existing structures to honor the site’s rich history while seamlessly integrating contemporary needs. Inspired by hanging gardens, the architecture blurs boundaries between built spaces and nature, creating a home that evolves with its surroundings.
▼设计模糊了建筑与自然之间的界限,the architecture blurs boundaries between built spaces and nature


客厅与餐厅配有大面积玻璃面板,有效打通内外空间,引入充足的自然光与通风。室内以中性色调、天然材质与精致肌理构建出低调奢华的氛围。楼上的卧室延续了温润而内敛的设计语言,进一步增强了私密感与静谧氛围。
Expansive glass panels in the living and dining areas dissolve barriers between indoors and outdoors, inviting natural light and ventilation. The interiors feature a palette of neutral hues, natural materials, and refined textures, fostering an atmosphere of understated luxury. Upstairs, bedrooms continue this narrative of warmth and sophistication, with design elements that enhance intimacy and calm.
▼由二层俯瞰泳池庭院,viewing the pool garden from upper floor

▼二层建筑体量与露台,upper architectural volume and terrace

别墅注重可持续理念,采用被动式通风与采光策略,降低对人工系统的依赖。每一处设计细节都经过悉心打磨,力求提升居住体验,让生活在此既自然又深具意图。
Emphasizing sustainability, the villa incorporates passive cooling and lighting strategies, reducing reliance on artificial systems. Every element is meticulously curated to heighten the living experience, ensuring a home that feels both organic and intentional.
▼半户外生活空间,semi-outdoor living space

▼浴室,bathroom

▼楼梯,staircase

▼细部,details

花园别墅不仅是创新设计的体现,更是在尊重过去的同时,积极拥抱未来的建筑宣言。
Garden Villa stands as a testament to innovative design that respects the past while embracing the future.
▼夜景,night view


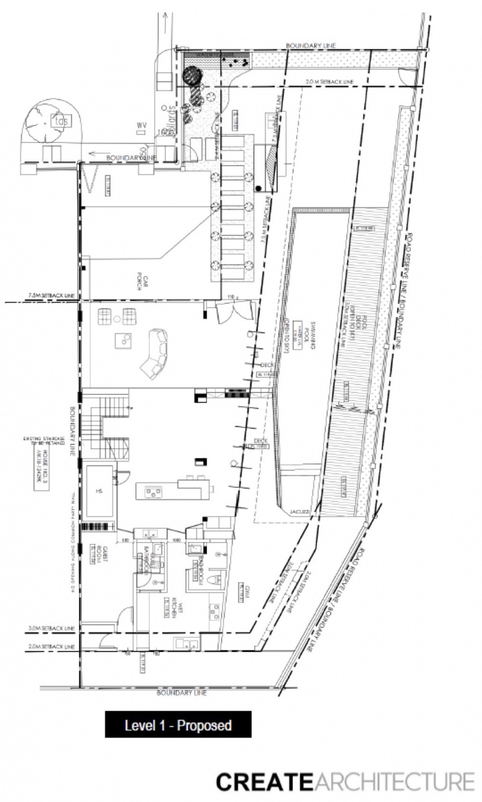
▼平面图,plan

Credits
Architect firm: Create Architecture
Photographer
Instagram: @chan.psb














