四川大学博物馆改扩建 / 中建西南院
川大博物馆的历史可以追溯到1914年华西协合大学古物博物馆,是民国时期第一座综合性大学博物馆,也是西南地区历史最悠久的博物馆。
The Sichuan University Museum traces its origins to the Huaxi Union University Antiquities Museum established in 1914, making it not only the first comprehensive university museum in China during the Republican era but also the oldest museum in Southwest China.
▼项目鸟瞰,Bird’s eye view

博物馆用地位于川大老校区东门的锦江河畔。校园历史轴线向西南方向偏转,博物馆建筑设计顺应校园网格,充分融入校园肌理,回应场地文脉。
▼校园历史轴线与场地文脉,campus historical axis and site context

Situated along the Jinjiang River adjacent to the east gate of Sichuan University’s historic campus, the museum responds to the campus’ southwest-deflected historical axis. Its design follows the campus grid system, seamlessly blending into the campus fabric while honoring the site’s cultural heritage.
▼锦江河畔的博物馆,Museums along the Jinjiang River

▼博物馆顶视图,Top view

▼江畔远观,Distant view

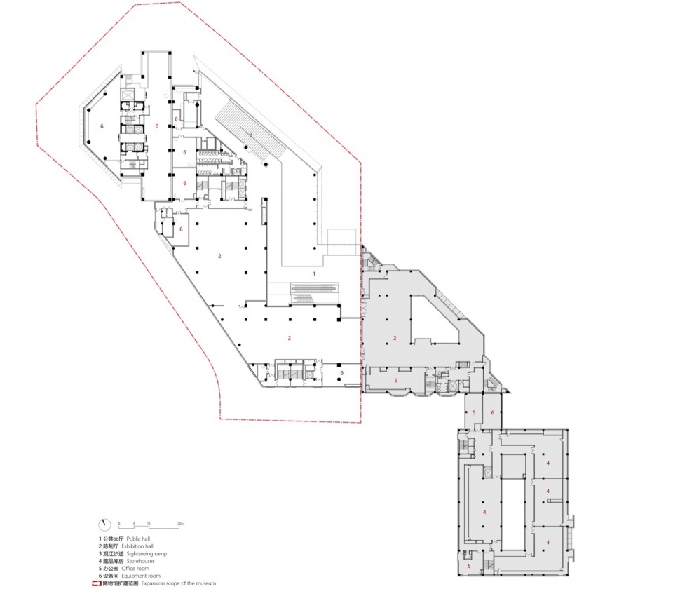
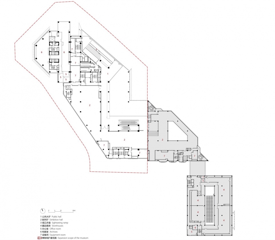
博物馆包括老馆改造和新馆两大部分。老馆建于20年前,包括原人文馆和自然馆,面积约1.47万平米。自然馆层高较低,进行功能置换改造为藏品库房,人文馆通过改造展厅空间,与新馆展陈一体化融合。新馆建筑面积约2万平米。北侧贴建校园高层综合楼,为学校提供1.87万平米的科研办公空间。
▼老馆外立面改造前后对比,Comparison of the facade before and after renovation

▼塔楼墙身大样,Tower wall sample

The museum complex consists of two primary elements: the renovated original structure and a new extension. The 20-year-old existing building comprises the former Humanities Pavilion and Natural History Pavilion, totaling 14,700 m². The Natural History Pavilion has been functionally converted into collection storage due to its low ceiling height, while the Humanities Pavilion has been spatially reconfigured to integrate with the new building. The new extension provides 20,000 m² of space, with a high-rise mixed-use complex attached to the north supplying 18,700 m² of research and office spaces.
▼博物馆立面,Facade

▼博物馆立面,Facade

▼夜览立面,Facade night view


▼街道侧视角,Street view

项目地处老城区,用地非常紧凑,新老馆平面上无缝崁合,通过局部坡道来弥合新老馆之间的标高差异,保持了动线和功能上的连续性。
▼承古创新的立面设计,elevation design

▼景窗大样,View window sample

Occupying a compact urban site, the design achieves planar integration between old and new structures. Transitional ramps bridge level discrepancies, ensuring functional continuity and circulation flow throughout the complex.
▼立面近景,Facade close view

▼夜览立面近景,Facade night view


▼立面细部,Facade detials



扩建后的博物馆采用“一馆两翼”的布局,新老馆之间设置通高公共大厅,作为核心的空间枢纽。观众可通过门厅扶梯便捷到达各个楼层,也可从大厅沿江一侧的景观坡道盘旋而上,沿途眺望锦江风光。坡道外侧为超大板块玻璃幕墙,形成画框般的景象,实现博物馆与城市环境的对话。
The expanded museum employs a “one museum, two wings” configuration. A full-height atrium between old and new structures serves as the central circulation hub. Visitors may access exhibition floors via lobby escalators or ascend along the riverside landscape ramp, enjoying framed views of the Jinjiang River through expansive curtain walls – creating a picture-frame dialogue between the museum and urban environment.
▼首层大厅,Full-height atrium

▼核心枢纽,Core hub


▼交通空间,Traffic space



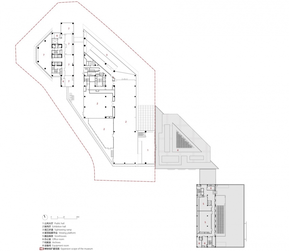
在展陈设计上,考虑人文与自然融合,彰显川大在人文和自然学科建设上的领军地位。
负一层设置临展厅、报告厅、放映厅及研学功能;
一、二层为基本陈列,设考古、民俗、民族等专题展厅;
三层为自然专题展厅,
四层设艺术专题展厅,展示川大百余年来收集的艺术珍品。
The exhibition program emphasizes the integration of humanities and natural sciences, showcasing Sichuan University’s academic leadership in both fields. Spatial distribution is organized as follows:
Basement: Temporary exhibitions, lecture hall, screening room, and educational spaces
Levels 1-2: Permanent exhibitions featuring archaeology, folklore, and ethnic studies
Level 3: Natural history exhibitions
Level 4: Art exhibitions displaying the university’s century-spanning collections
▼展陈空间,The exhibition area

▼展陈空间近景,The exhibition close view


艺术展厅利用高耸的坡顶空间,形成仪式感的空间氛围,顶部天窗内侧设电动百叶,临江一侧外窗设置铝管遮阳帘与半透明遮光帘,提供自然光漫射中的观展体验。旧馆的屋面,结合绿植打造为咖啡座和户外平台,创造鸟瞰滨江的场所。
▼老馆采光廊改造前后对比,Comparison of the lighting corridor before and after renovation

▼老馆三角中庭改造前后对比,Comparison of atrium before and after renovation

The art gallery utilizes the soaring pitched-roof volume to create a ceremonial atmosphere. Automated louvers control skylight illumination, while riverside windows feature aluminum tube sunshades with semi-transparent blackout curtains for diffused natural light viewing. The existing pavilion’s roof transforms into a cafe and terrace with greenery, offering panoramic river views.
▼高耸的坡顶空间,High roof space

▼天窗光影,Skylight shadow

▼走廊空间,Corrdior space

川大历史建筑的典型元素——挑檐、青砖和坡顶歇山,在新馆中进行转译。檐口底部采用川大标志性的红色,强化了文化认同感。入口大厅的镂空砖外墙采用不锈钢拉杆串联陶砖的构造,创造巨幅的“光之墙”。三角形坡屋面采用钛锌板替代传统瓦。高层综合楼的形式参考了邻近望江公园里的望江楼,再现传统多层楼阁的层层屋檐,并利用披檐底部的百叶形成通风腔,将形态设计与环境调控相接合。川大博物馆组群的改造与扩建,重塑了滨江的公共空间,成为锦江沿岸上的重要城市人文节点。
Architectural elements reinterpret Sichuan University’s historic vocabulary: projecting eaves, blue brickwork, and Xieshan-style pitched roofs. The iconic university red highlights eave undersides to reinforce cultural identity. The atrium’s permeable brick screen – a monumental “Light Wall” – employs stainless steel tension rods supporting ceramic tile assemblies. Titanium-zinc panels replace traditional roofing tiles, while the high-rise complex abstracts the layered eaves of Wangjiang Tower in nearby Wangjiang Park, incorporating louvered ventilation cavities at eave bases to integrate environmental control with formal expression. Through this renovation and expansion, the museum revitalizes the riverfront public space, establishing itself as a significant urban cultural node along the Jinjiang River corridor.
▼总平面图,masterplan

▼一层平面图,first floor plan

▼二层平面图,second floor plan

▼三层平面图,third floor plan

▼四层平面图,forth floor plan

▼剖面图,section

项目信息
Project Name: Sichuan University Museum Renovation & Expansion Project
Project Completion Year: 2022
Area:73,414 m²
Architectural Design Firm: China Southwest Architectural Design & Research Institute Corp. Ltd.
Company Abbreviation: CSWADI
Company Website: https://xnjz.cscec.com/
Contact Person: Huang Zhen
Contact Email:54608658@qq.com
Company Location: Chengdu, Sichuan Province, China
Lead Architect: Liu Yi
Lead Architect Email:965861327@qq.com
Project Address: No. 19 Wangjiang Road, Chengdu, Sichuan Province, China
Project Team & Information
Client:
Chengdu City Construction Investment & Management Group Co. Ltd. / Sichuan University
Structural Design:
China Southwest Architectural Design & Research Institute Corp. Ltd. (CSWADI)
Landscape Design:
Engineering Design & Research Institute of Sichuan University Co. Ltd.
Interior Design:
CSD·DESIGN
Façade Lighting Design:
TORYO International Lighting Design Center
Construction Contractor:
China MCC5 Group Corp. Ltd.
Design Team
Lead Architect: Liu Yi
Project Architects: Xiao Bo, Yang Pengcheng
Architecture Design: Huang Zhen, Sha Peng, Wan Yaling, Qiu Yanquan
Structural Design: Zhang Shulu, Zhang Zhijun, Yao Li, Xu Jingmeng
Plumbing Design: Yang Jiuzhou, Tan Gujin, Cai Yangyang, Liu Shuai
HVAC Design: Wei Minghua, Dong Lijuan, Wen Ling, Fang Yingfa
Electrical Engineering Design: Li Hui, Ao Faxing, Xu Jiawei, Li Lu
Intelligent Systems Design: Wu Huan, Bu Xiangyu
Curtain Wall Design:Yin Bingli, Wen Jing, Zhao Xin
Green Building Design: Qiu Yanling
Cost Engineering Design: Peng Xiaofang














