Forges文化中心,西班牙 / Firm architects
位于西班牙Fonsagrada的旧市政厅建于1845年,自2015年废弃不用。本项目将其改造为一处全新文化空间,用以展示漫画家Antonio Fraguas(艺名“Forges”)在2018年去世后捐赠的个人藏品。弗尔赫斯文化中心的设计深入探讨了既有建筑遗产干预的基本理念。通过对建筑不同阶段的演变、用途及过往改造的梳理与分析,团队辨别出哪些变动增添了价值,哪些则违背了建筑的原始逻辑。因此,首要任务是对建筑进行清理和筛选,同时加固受损的结构构件。
The Old Town Hall of A Fonsagrada (1845), unused since 2015, is transformed with this project into a space where the City Council can showcase the collection donated by the cartoonist Antonio Fraguas “Forges” after his passing in 2018. The proposal for the Forges Cultural Center delves into some of the basic concepts of intervention in built heritage. The reading and analysis of the different stages, uses, and interventions that occurred in the building allow us to identify which ones added value and which ones went against the original logic of the construction. In this sense, the first task was to clean and select, as well as to consolidate the deteriorated structural elements.
▼街景,street view

另一项挑战是如何在原有结构基础上满足博物馆使用的现行规范,尤其是在无障碍通行、防火、温湿度控制以及能源效率方面的适配。项目恢复了建筑原本的天井空间,这部分在1990年代曾被亚克力穹顶覆盖。新方案以层压栗木构件围合出新的立面,同时兼具太阳能控制与采集功能。在内部空间中,设计尽可能利用既有的石砌墙体组织功能布局,仅新增垂直交通和服务核心,力求简洁高效。
▼分析图,analysis diagram

On the other hand, one of the major challenges of introducing a museum use in a building of this type was adapting the pre-existing structure to current regulations, especially regarding accessibility, fire protection, temperature and humidity control, and energy efficiency. Thus, the original courtyard of the building, which had been covered with a methacrylate vault in the 1990s, was recovered, delineated by a new façade made of laminated chestnut wood structural elements, which also functions as a solar control and capture device. Inside, the spaces created by the existing masonry walls are utilized to develop the program of needs in the simplest way possible, adding only a circulation core and a service core.
▼庭院,courtyard


▼庭院立面,facade of the courtyard

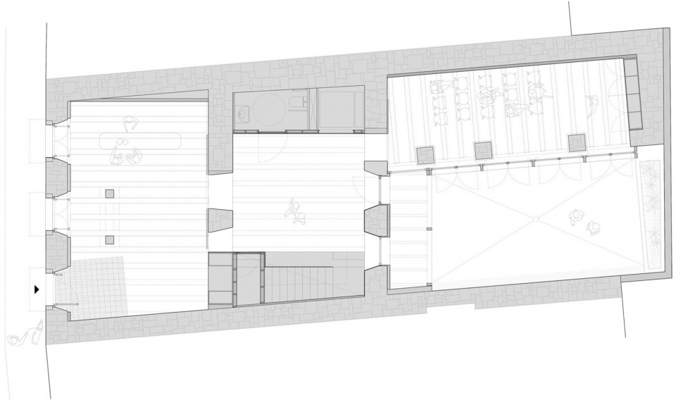
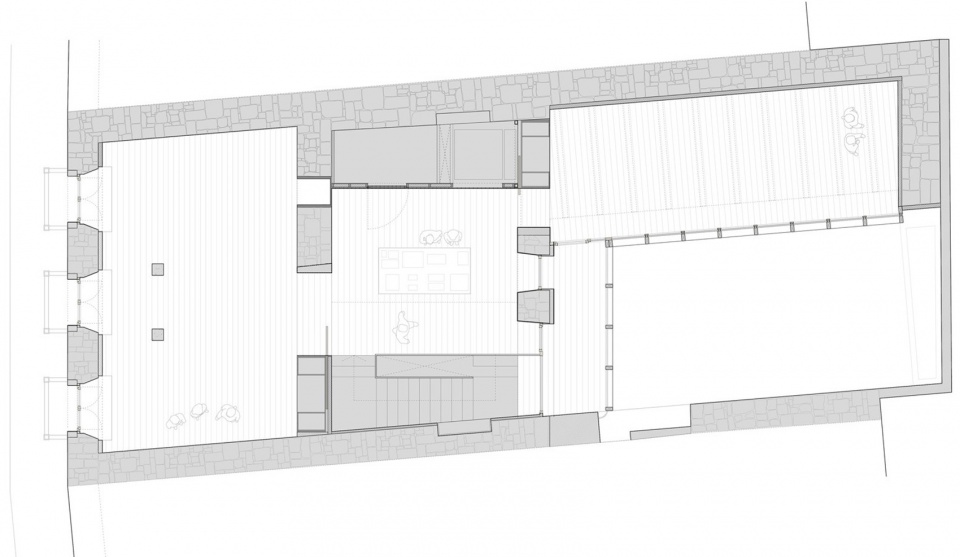
一层与街道互动紧密,毗邻镇中心的历史街区及圣地亚哥之路原始之路(Camino Primitivo de Santiago)。这里设有未来的旅游信息中心、文化中心的门厅及一间可延展至中庭的多功能厅。二层则设有三间展厅,可单独或联动使用。
▼剖面图,section

The ground floor is understood as a space for interaction with the street, located in the Historic Center of the town and next to the Camino Primitivo de Santiago. In this way, it houses the future tourist office, the lobby of the Cultural Center, and a multipurpose room that can extend to the recovered courtyard. Meanwhile, the first floor is distributed into three exhibition rooms that can function together or independently.
▼多功能厅,multifunction hall


▼楼梯,staircase

▼通高空间,double-height space

在设计推进的过程中,2023年3月,项目团队以“向公众展示项目进展”为契机,将旧市政厅临时改造为展览和讨论空间,展出Forges的作品、项目影像与图纸,并邀请相关领域的专家共同参与交流与思辨。
As part of the reflection process on the project, in March 2023, and with the pretext of presenting it to society, the old Town Hall was transformed into a temporary exhibition and debate space where works by Forges, images, and plans of the project itself were displayed, in addition to inviting experts in related fields to contribute to it.
▼改造后的木制立面,wooden facade facing the courtyard

▼开阖门,open and close the door

▼二层空间,upper floor space

在材料和资源选择方面,设计强调使用本地建材与劳动力,确保项目在经济与环保方面的可行性。修复既有建筑遗产被视为最基本的可持续策略之一。基础设施与城市肌理的废弃不仅无效,且往往增加社会成本。
Regarding the use of materials and resources in the intervention, the premise was to use local materials and labor, making it viable both economically and environmentally. The rehabilitation of existing heritage is understood as one of the most basic concepts of sustainability. The abandonment of infrastructure and urban fabric is unproductive and unnecessary, generating more expense.
▼二层走廊,hallway

▼展厅,exhibition hall

▼展厅,exhibition hall

▼飘窗,bay window

考虑到当地存在一批专注于栗木锯材的小型企业,设计广泛使用这种本地木材,涵盖结构层压木、锯材以及用于地面与墙面的饰面材料。如此一来,既支持了摆脱松木与桉树单一林业模式的可持续林业路径,也在经济与生态之间建立起一种地方性的平衡,助力建筑行业的脱碳进程。
In this same line, and considering the presence of a small industry in the locality dedicated to chestnut sawing, the use of this species of wood was chosen in all available formats: sawn and laminated structural wood, as well as finishes for both flooring and vertical surfaces. On one hand, the commitment to this type of industry allows for maintaining a forestry option away from pine and eucalyptus monocultures, while also being a way to locally regulate the relationships between economy and ecology, contributing to the decarbonization of the construction sector.
▼一层门厅,ground floor lobby

▼干净优雅的空间氛围,clean and elegant spatial atmosphere

▼细部,details

▼区位图,location

▼街道立面,facade of the street

▼一层平面图,ground floor plan

▼二层平面图,upper floor plan

▼细部详图,detailed drawings

Location: Rúa Burón n.12, A Fonsagrada, Lugo (Spain)
Authors: Daniel Gómez Magide | Adrián López Rancaño
Other technicians: TimberSoul by Cándido Hermida S.L. (Wood Structure) | Estudios Inimatec S.L. (Installations)
Promoter: Concello de A Fonsagrada














