“逅HOOOO”集合店,杭州 / 边界空间设计
“逅HOOOO”是一家集合店铺,坐落在杭州良渚玉鸟集。关于美好生活的定义,四位女性业主用四种经营业态给出了她们自己的理解,咖啡、简餐、服装与鲜花。
The “HOOOO” concept store is situated within the Liangzhu Yuniao Market in Hangzhou. It embodies the diverse interpretations of a fulfilling lifestyle as expressed by its four female proprietors, each representing a distinct business sector: coffee, light meals, apparel, and fresh flowers.
▼“逅HOOOO”正门,“Hoooo”front door

▼入口空间,Entrance space


场地建筑面积130平方,南北朝向,前后临街,西侧窄巷,山墙有一小窗,仅东侧有邻。南北有长檐高窗,室内空间高挑,下可掘地半米。设计围绕着场地和几个不同的功能与相互关系展开。如何处理各功能之间经营关系和空间关系,设计前期的沟通已让我们留意到这个项目背后的隐形要点。
▼轴侧图,Axonometric diagram

Occupying a 130-square-meter site oriented along a north-south axis, the store features street access at both its front and rear. The western boundary is defined by a narrow alley, while a small window punctuates the gable wall. The eastern side adjoins an adjacent building. Notably, the north and south facades are characterized by extended eaves and tall windows, which contribute to an expansive interior volume complemented by a sunken floor recessed by half a meter.The design strategy centers on the site’s attributes and the functional interplay among the various business areas. A primary focus during the initial design discussions was the management of operational and spatial relationships between these functions, uncovering nuanced yet critical considerations integral to the project’s success.
▼一窗一境,A view in each window


我们决定在中间区域做出夹层,南北高窗区域挑空,拓宽山墙小窗,保留最大的自然采光内渗。地面下沉,争取室内最大层高同时,营造出错落变化的地形高差,通过高差随势连带出大小体量的作为分界间隔、地台、坐位等类家具功能的构造体积,让空间诸多体块相互间的关系既自我明确有彼此关联,制造内在关系和“势”的链接。地面天花各自暗含的圆形围合也将上下不同功能空间拉合在一个向心的场域内,形成隐性的力场。
A mezzanine level was introduced centrally, while the tall window zones on the north and south sides were preserved to their full height to enhance spatial openness. The small window on the gable wall was enlarged to optimize natural light ingress. The sunken floor facilitates maximum ceiling height within the interior and introduces a varied topography with multiple levels. These level changes inherently delineate boundaries and functional volumes, serving simultaneously as partitions, platforms, seating, and furniture-like elements. This spatial articulation clarifies the relationships among the distinct zones, rendering them both separate and interconnected, thereby fostering internal dynamism and “fluidity”. Additionally, circular enclosures subtly integrated into the floor and ceiling unify the vertical dimension of the functional spaces, creating a cohesive and focused spatial field that acts as an intangible force.
▼功能分区,Functional zones


▼吧台区,Bar Area

边界是关系中的“热区”,在我们看来,处理这些关系分外的重要。正负空间的转换、相邻空间的开闭、体积之间的合分、相邻两面的转角、不同材料的过度、同材质的缝隙、力与力的节点等等皆为关系,错综复杂却又相互关联。
The concept of boundaries is regarded as critical “hot zones” of interaction. Effective management of these transitional areas—such as the interplay between positive and negative space, the opening and closing of adjacent zones, the merging and division of volumes, the junctions of surfaces, material transitions, seams within materials, and structural nodes—is essential. These elements represent complex yet interrelated relationships that define the spatial experience.
▼石阶与绿园,Stone steps and interior garden

▼石阶,Stone steps

▼金属台阶,Metal steps


去年“赤饭”餐厅项目寻找旧石板,旧材市场见得几个石梯,应是老山屋的构件,由整块山石凿出,在此项目处理上下层关系时竟骤然记起。作为与钢制楼梯组合的下半段,继续它作为建筑构件的宿命,搭配暗红色的钢结构与松木板,显露那独有的稳固质朴的力量。沿街内望,若置身橱窗的楼梯与地面花池沙生植物分外凸显,因此驻足拍照进门打量游荡做饮者甚多。店铺试营其间,发现有两处台阶转合偶有险步,另作构件补缺以求上下周全。
During the previous “Chifan” restaurant project, reclaimed stone slabs and steps—likely originating from an old mountain house and carved from solid rock—were sourced from a materials market. This memory resurfaced during the current project’s exploration of vertical spatial relationships. These stone steps now form the lower portion of a steel staircase, continuing their architectural narrative in conjunction with dark red steel structures and pine boards, imparting a distinctive, robust, and rustic character. Viewed externally through the window, the staircase alongside a ground-level flower bed planted with sand-tolerant species creates a striking visual that attracts passersby to pause, photograph, and enter to experience the space. During the store’s trial operation, it was observed that two stair turns occasionally presented a tripping hazard; consequently, modifications were implemented to ensure safe and seamless access.
▼二楼区域,Second-floor area

止于发文,杭州的气温已近冬日。店铺经暑期,过深秋,在各位主理人的细心照料中,生意稳定,人气高涨。开业后若干次回访,主理人诉苦周末假日客满为患,饱受若菜市场般无处安排客人落座之困,提调整摆法增加坐位,我一时不知可否,一面希望保持良好稳定的空间氛围,一面希望店铺经营自然客流兴旺。当然,健康稳定的经营人气也是很重要的空间氛围,会给予整个场所独有的变化的体验。
▼包间入口,Private room entrance

As this article is prepared, Hangzhou is approaching winter. Following the summer and late autumn seasons, under the attentive stewardship of the owners, the business has stabilized and enjoys considerable popularity. Post-opening visits revealed the owners’ concerns regarding full bookings on weekends and holidays, with challenges arising from market-like crowds and insufficient seating capacity. They proposed a layout reconfiguration to increase seating availability. Initially, there was hesitation—balancing the desire to preserve a stable and pleasant spatial atmosphere against the expectation that the store’s success would naturally evolve with increased patronage. Nonetheless, a vibrant and well-managed customer presence is recognized as a vital component of the spatial ambiance, contributing a unique and dynamic experience throughout the environment.
▼二楼包间,Second-floor private room

▼险步处理,Dangerous-step treatment

▼楼梯细部,Staircase Details

▼室内细部,Interior Details

▼项目场地,Site

▼一楼平面,First-floor plan

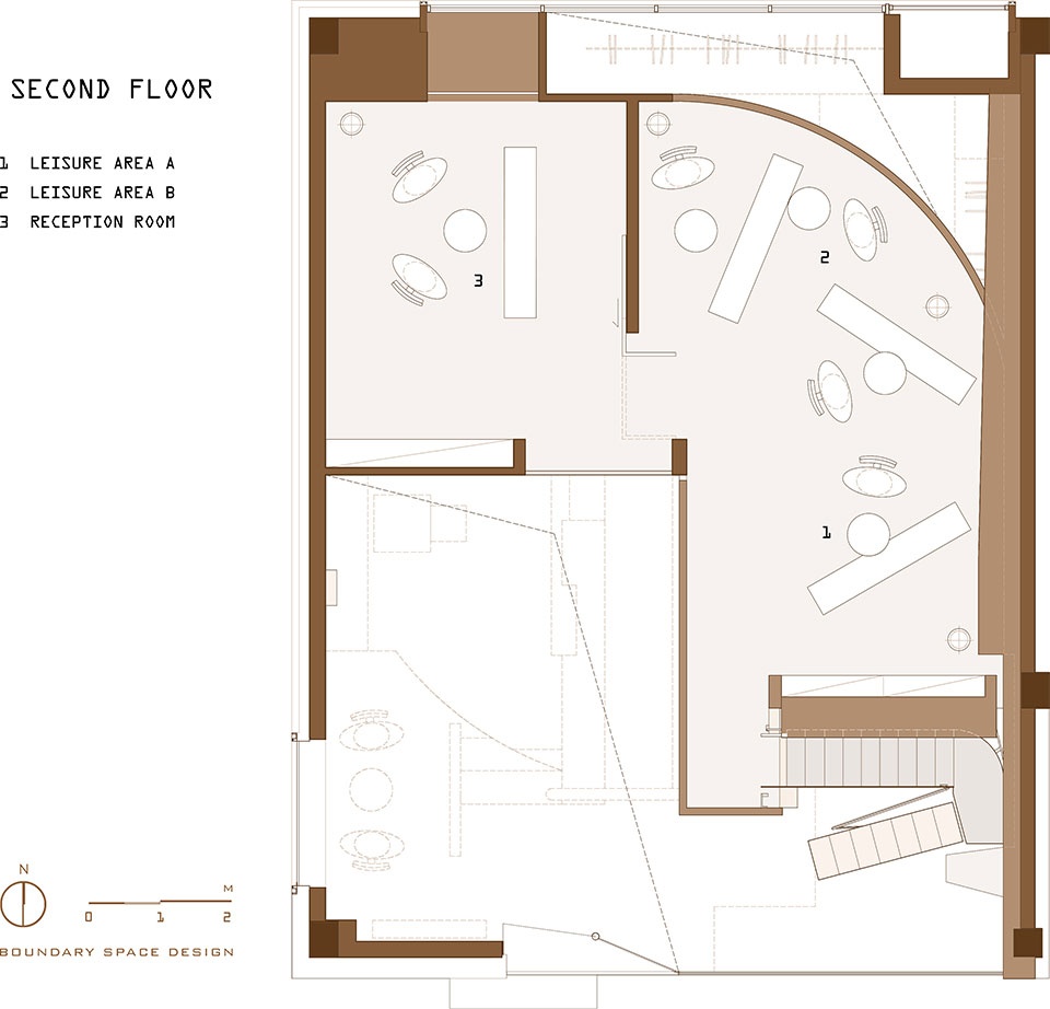
▼二楼包间,Second-floor plan

项目信息
Project Details














