新疆昌吉州文化中心,新疆/建筑
新疆昌吉州文化中心项目的主体功能是传媒中心,是集广播电视节目制作、播出、传输及行政办公、信息服务于一体的综合建筑,此外还复合了图书馆、艺术剧团等文化功能。项目选址位于昌吉新城区,用地面积大而周边配套设施少,时间要求紧,造价相对较低。团队在设计时以客观条件为前提,从文化媒体建筑本质出发,充分考虑地方性因素,用巧妙的构思和最质朴的建筑语言,探索一种适合经济欠发达地区设计文化媒体建筑的新思维。
The main function of Xinjiang Changji Prefecture Cultural Center project is the media center. It is a comprehensive building integrating radio and television program production, broadcasting, transmission, administrative office and information services. In addition, it also combines cultural functions such as library and Art Troupe. The project is located in the new urban area of Changji, with large land area and few surrounding supporting facilities, tight time requirements and relatively low cost. In the design, the team took objective conditions as the premise, started from the essence of cultural media architecture, fully considered local factors, and explored a new thinking suitable for the design of cultural media architecture in economically underdeveloped areas with ingenious ideas and the most simple architectural language.

在本项目中,设计团队一改过往城市传媒大厦以集中高层建筑为主的形式,从地方特色、媒体特征、公共空间塑造入手,提出了“媒体聚落”、“城市纽带”和“信息广场”三个概念。
In this project, the design team changed the previous urban media building to focus on high-rise buildings, and proposed three concepts of "media settlement", "urban link" and "information square" from the perspective of local characteristics, media characteristics and public space shaping.

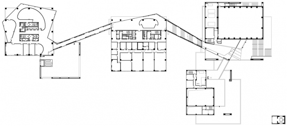
整个项目总建筑面积不足6万平米,建设用地约9万平米,相对宽松。功能上包括广播、电视及广电机关、网络公司、昌吉日报社、州文联、回族文学社、曲子剧团、歌舞团两团团部、图书馆等多个部门。因此设计方案将建筑体量打散,化整为零,分类整合各项功能,将图书馆、两团团部及传媒大厦各部门的普通办公区、广播电台与电视台技术办公区、演播区及职工餐厅等分别整合为多个不同体量的立方体,根据他们的功能关系散布于场地中,形成“媒体聚落”。
The total construction area of the whole project is less than 60000 square meters, and the construction land is about 90000 square meters, which is relatively loose. Functions include radio, television and radio and television agencies, network companies, Changji daily, the state Federation of literary and art circles, Hui literature society, Quzi Opera Troupe, song and dance troupe, and library. Therefore, the design scheme breaks up the building volume, divides it into parts, integrates various functions by classification, and integrates the general office area, radio and television station technical office area, studio area and staff restaurant of the library, the two regiments and the media building into multiple cubes of different volumes, which are scattered in the site according to their functional relationship, forming a "media settlement".

昌吉自古就是丝绸北道上的重镇,至今仍保存着世界上最大、最古老、保存最完好的生土建筑城市—交河故城,以及夯土王城—高昌故城,这两处故城遗址的方正型体建筑和夯土建筑的朴拙形象激发了设计师的创作灵感,也成为了大漠聚落形态与建筑意象的原型。
Changji has been an important town on the north silk road since ancient times. Up to now, it still has the largest, oldest and best preserved raw earth building city in the world - Jiaohe Ancient City, and the rammed earth King City - Gaochang ancient city. The simple images of the square buildings and rammed earth buildings of these two ancient city sites have inspired designers and become the prototype of the desert settlement form and architectural image.

文化中心所在的新城区配套尚不完善,尤其缺乏户外的公共活动场所。方案利用聚落形态本身围合出不同尺度的外部空间,创造出多处不同属性的场所,为各类型的活动提供可能。在这里,外部非功能空间和内部功能空间具有同等重要的地位,景观和公众活动都可以渗透在建筑之间,形成多层次的城市活动。可以想象在昌吉这个多民族聚居的地区,不同民族的人们将汇聚于此,共同享受这一处城市公共场所。
The supporting facilities of the new urban area where the cultural center is located are not perfect, especially the lack of outdoor public activity places. The scheme makes use of the settlement form itself to enclose the external space of different scales, and creates a number of places with different attributes, making it possible for various types of activities. Here, the external non functional space and the internal functional space have the same important status. Landscape and public activities can permeate between buildings to form multi-level urban activities. It is conceivable that in Changji, a multi-ethnic area, people of different nationalities will gather here to enjoy this urban public place.

昌吉州位于天山北麓,冬季漫长而严寒,夏季短促而炎热。为了适应这种较严峻的气候,设计中充分考虑建筑节能,在立面设计上主要采用了石材幕墙加带形条窗的手法,避免大面积玻璃幕墙,保证较好的热工性能。
Changji Prefecture is located at the north foot of Tianshan Mountain, with long and cold winter and short and hot summer. In order to adapt to this severe climate, building energy conservation is fully considered in the design. The method of stone curtain wall and strip window is mainly adopted in the facade design to avoid large-area glass curtain wall and ensure good thermal performance.

基于当地相对落后的施工水平和有限的项目投资,也为保证建筑的完成度,在单体造型上均采用易于建造的正方形体造型和单元化的模式,降低施工难度。在材料的使用上就地取材,建筑外饰黄色石材取自当地奇台地区的“卡拉麦里金”,既体现了厚重的当地建筑气质,又节省了运力和投资。
Based on the relatively backward local construction level and limited project investment, and in order to ensure the completion of the building, the square shape and unitization mode that is easy to build are adopted in the single shape to reduce the construction difficulty. In terms of the use of materials, local materials are used. The yellow stone for the exterior decoration of the building is taken from the "karamalijin" in the local Qitai area, which not only reflects the thick local architectural temperament, but also saves transportation capacity and investment.


















