我说春风十里不如你,上海/室内设计
项目标签
我的灵魂和我如此遥远,而我的存在却如此真实。
My soul is so far away from me, but my existence is so real.
01
写好的结局
Written ending
一切都在变化,没有东西会消失。一家老上海的理发店转型女子生活体验中心,业主找到我们,他期待能在这里有所突破——创造一个符合当下流行趋势,又不拘泥于既有审美范式的设计。对Mur Mur Lab来说,每一次突破,都是在面对不同人的期盼中,不断探索建筑学与建造、设计与人关系的边界。在原有边界中创造一个完整的空间,这将是一个可以自洽的设计。就好像在房间里盖一个房子。
Everything is changing and nothing will disappear. A barber shop in old Shanghai transformed into a women's life experience center. The owner found us and he looked forward to making a breakthrough here - creating a design that conforms to the current fashion trend and is not limited to the existing aesthetic paradigm. For Mur Mur lab, every breakthrough is to constantly explore the boundary between architecture and construction, and between design and people in the face of the expectations of different people. Create a complete space in the original boundary, which will be a self consistent design. It's like building a house in a room.
▼外观
Appearance



02
空间即表演
Space is performance
场地是一个面向商业广场的三层小楼。立面像一个表情,代表着对周围的态度。而内部的空间,则可以自成一体,怡然自得。沟通是一种快速获得信息的方式,而内省是建立内部秩序体系的途径。空间,就像是在两种途径间建立起联系的空隙,和物体表达的媒介。最终的设计趋近真实的愿景,同时又希望建构一系列场景超乎想象。
The venue is a three storey building facing the commercial square. The facade is like an expression, representing the attitude towards the surroundings. The internal space can be self-contained and contented. Communication is a way to get information quickly, and introspection is the way to establish an internal order system. Space is like a gap between two ways and a medium of object expression. The final design approaches the real vision and hopes to construct a series of scenes beyond imagination.
我们说,空间像表演。自己就在演一出戏。
一层空间像一个浸入式的剧场,水磨石包裹的地面和墙体沉稳厚重,自成一体,让你有种向上仰望的欲望,一片天幕。它像覆盖着舞台的穹顶,微微隆起,轻轻接触,一冷一暖像在对话。
We say that space is like a performance. I'm in a play.
The space on the first floor is like an immersion theater. The terrazzo wrapped ground and wall are calm and thick, forming a whole, which makes you have the desire to look up, a curtain of heaven. It is like a dome covering the stage, slightly uplifted, gently touched, cold and warm, like a dialogue.
拱的要素既是覆盖,也是限定。在二楼,镂空的拱朝着不同的方向铺开,重重幕幕,空间像被拉开了几个层次;层层叠叠,又好似无尽。纺布是时装的展场。女朋友说,温和的曲率,柔软的包裹配上鲜花甜点,窝在这里美美的喝上一番下午茶的欲望都有了。
The elements of arch are both coverage and limitation. On the second floor, the hollowed out arches spread out in different directions, with heavy curtain, and the space seems to be opened several levels; Layer upon layer, it seems endless. Spinning cloth is a fashion show. My girlfriend said that with mild curvature, soft package and flower dessert, I have the desire to drink some afternoon tea here.
空间的表情庄重有序,又可爱的一撩,露出两个小角,是一层的橱窗。反射着天光云影,坚硬的玻璃砖呈现出帷幕般的柔软肌理。平静之下,暗藏一段空间拼贴的叙事和戏剧性的冲突。
The expression of the space is solemn and orderly, and a lovely lift reveals two small corners, which is the window on the first floor. Reflecting the sky light and cloud shadow, the hard glass brick presents a curtain like soft texture. In peace, there is a space collage narrative and dramatic conflict.
▼水磨石包裹的地面与墙面自成一体
The terrazzo wrapped ground and the wall form a whole

03
未来商店
Future store
未来商店是Mur Mur Lab一直在意的。而在这里,它更像是一种奇幻梦境的拼贴。空间与场地的环境,附近机场起落的轰鸣声与现状,童话和暗黑。一种魔幻非现实的感觉,一个展出梦境的未来商店。
The future store is what Mur lab has always cared about. Here, it is more like a collage of fantasy dreams. Space and site environment, the roar and current situation of nearby airports, fairy tales and darkness. A magical and unrealistic feeling, a future store displaying dreams.
灵魂和现实的距离遥远,存在也是真实的。此时,线下可能是平静的,而线上热闹非凡。还有什么,比当下片刻的宁静更重要呢?
The distance between soul and reality is far away, and existence is also true. At this time, the offline may be calm, while the online is lively. What is more important than a moment of peace?
空间用语言表达时候,总会显得苍白。直接用眼睛看见的颜色、形态,置身空间感受到的气氛、味道,体验的丰富度,在描述之下似乎都会略显不足。我想说,我们只能试图表达。
When space is expressed in words, it always looks pale. The colors and forms seen directly with the eyes, the atmosphere and taste felt in the space, and the richness of experience seem to be slightly insufficient under the description. I want to say that we can only try to express.
▼顶与地,一冷一暖像是在对话
The top and the ground, cold and warm, seem to be talking


▼拱的要素即是覆盖也是限定
The element of arch is both coverage and limitation





▼空间里的温和曲率
Mild curvature in space



▼意向图
Intention map

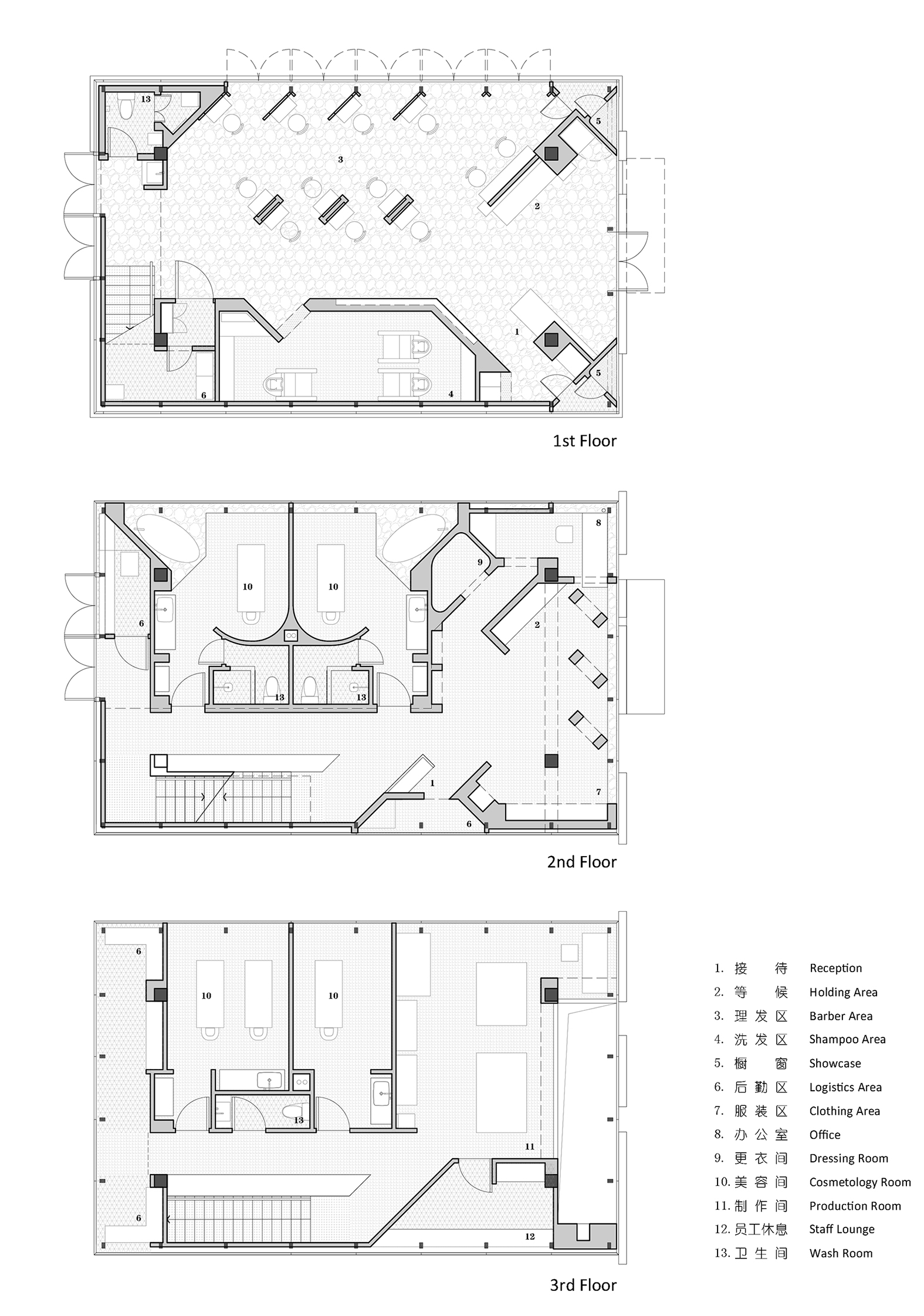
▼平面图
Plan

▼剖面图
Profile

项目信息
项目名称:七月 | 女子生活体验中心
设计团队:夏慕容,张弥,李智
文章分类:室内设计-综合商业
设计公司:Mur Mur Lab
项目地址:上海
项目规模:300㎡
项目年份:2018年
摄影师:Arttteeezy,四月
Project information
Project Name: July | women's life experience center
Design team: Xia Murong, Zhang Mi, Li Zhi
Article classification: Interior Design - integrated business
Design company: Mur Mur Lab
Project address: Shanghai
Project scale: 300 ㎡
Project year: 2018
Photographer: Arttteeezy, April














