葫芦院 – 銮庆胡同37号院,北京/建设
7位建筑师被邀请参与位于西打磨厂街和銮庆胡同之间7个院子的保护和修复设计,其中銮庆胡同37号院是一套不完整的三合院,原本与北面临西打磨厂街的院落相通,曾经做过日本医院的宿舍。而规划中有一条狭窄的内胡同把南向的3个院落也联系到西打磨厂街上来,这样也就多了一个从北边内胡同里进入院子的入口。
Seven architects were invited to participate in the preservation and restoration design of seven courtyards between West Sanding Factory Street and Luanqing Hutong. The No.37 Courtyard of Luanqing Hutong is an incomplete Sanheyuan that was originally connected to West Sanding Factory Street on the North side as a residence for a Japanese Hospital. In the plan, there is a narrow inner Hutong that links the three courtyards in the south to West Sanding factory Street. This layout thus created an entrance to the courtyard from the Hutong in the north.
▼鸟瞰,aerial view
▼项目位置,site map
曾经的銮庆胡同是一条宽不过三四米的小胡同,两侧密密匝匝围满了墙皮剥落的古老四合院。37号院里的原住户早已搬离,房子经过了十几年的空置已经损毁、颓败不堪。南房中部的梁架已经塌下,屋顶、门窗也早已不见了。房内淤积的渣土有1m多厚,不知是哪一年飘来的两粒种子发了芽,在屋内长成了两棵大树,其中树冠颇大一棵冲破了屋顶,两侧的树枝也顽强地破窗而出。冥冥之中的自然力量又卷土重来,重新占据了人类的领地而生发出新的生命。我面对这感人至深的一幕立即就动了恻隐之心,决定留下这不速之客,让两棵“破家之树”和新的房子共生共容。
The former Luanqing Hutong was a small alleyway with a width less than 4 meters, and the two sides were densely surrounded by old peeling walls. The original tenants in the courtyard of the 37th have already moved away, and the house is in ruins after more than ten years of vacancy. The middle beam of the house in the south has collapsed, and the roof, doors and windows have long since disappeared. The silt accumulated in the room is more than 1m thick. In the house, however, two large trees have grown, and the canopy is quite big. One of the trees has already grown through the roof and some branches have also broken through the windows. The natural forces in the midst of the earth have come back again, re-occupying the human domain and giving birth to new lives. In the face of this touching scene, I was immediately touched and decided to leave these uninvited guests, the two “house breaking trees”, to coexist with the new house.
▼场地原貌,site photo
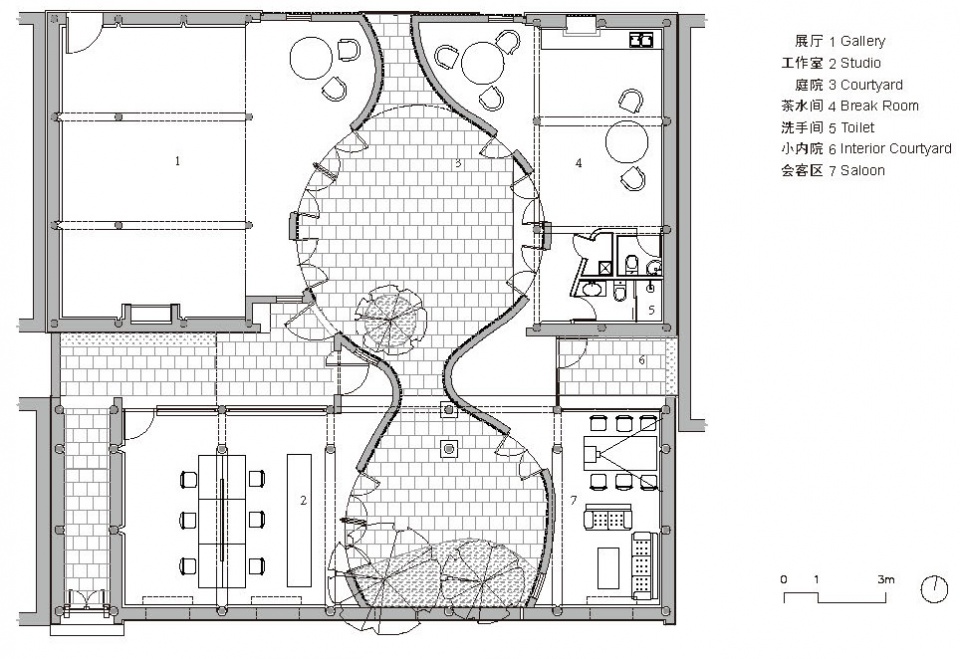
37号院原本正门朝南,从西南角进入门楼再折向东进入内院。从北侧打磨厂街来的人可以先穿过一条狭窄的内胡同绕过沿街的一层院落,再转折进入到这隐匿在小胡同之中的新北门。两侧灰砖山墙的中部填充了一道竹钢院墙,中间是一大扇通透的竖向隔栅推拉门。拉开之后闪出一个狭窄的门道,它并不对中而是向东侧少许弯曲,把人引进一处豁然开朗的圆形庭院,灰瓦屋顶和四周环绕的竹木色的曲墙划出一方宁静的天地,灰色大方砖铺砌的庭院之中植有一株玉兰。
The original courtyard of No. 37 was facing south, one would enter the gate from the southwest corner and then into the inner courtyard. People coming from the North side of Sanding Factory Street can first pass through a narrow inner alleyway (Hutong) to bypass the courtyard along the street, and then turn into the new North Gate hidden in the narrow Hutong. Between the gray brick gables is a bamboo steel wall, and in the middle is a large transparent vertical sliding door. After pulling it open, a narrow doorway appears and the path curves to the east side, introducing one into a bright, circular courtyard. The gray tiled roof and a curved wall filled with bamboo brings one into a tranquil atmosphere; at the center of the gray brick paved courtyard, is a magnolia.
▼狭窄的内胡同和庭院入口,the narrow inner alleyway & the gate to the courtyard
原本南房共有五个半开间,中部已经坍塌,两棵大树也就生长于此。顺势辟出中间两个开间成为一个“屋中院”留住树木,两侧的屋顶则按古法修复。为保证原有建筑面积不致减少,我们就把两侧厢房向院内适当加大,在中间留出一个葫芦形的庭院,于是一个传统的小三合院就演变成为一大一小、一明一暗两个串联的曲线形的小院,再加上有意收小的北入口门廊,形成了小两进的“葫芦院”格局。
Originally, the house in the south had five and a half open rooms; the central part had collapsed, where the two large trees have grown. Following this unique layout, two open rooms were split into “a room in the middle of the house” to keep the trees, and the roofs on both sides were repaired using the ancient method. To ensure that the original living area is not reduced, we extended the side rooms into the courtyard appropriately, leaving a gourd-shaped courtyard in the middle, so a traditional Sanheyuan would now have two curved and consecutive spaces from large to small, bright to dim. Together with an entrance porch, a small two-in-one “Gourd Garden” is formed.
▼建筑师孟岩的手绘,sketch by MENG Yan
“葫芦院”略微偏向东侧,使得原来已采用“勾连搭”屋顶获得大进深的西厢房得以进一步加大。曲墙上设有一系列可开合的竹钢屏门,连续的竖向隔栅过滤了院中强烈的阳光也提供了相对私密的内部空间。而东侧曲墙凹入东厢房檐下,让一根檐柱暴露出来。曲墙如龙蛇游动般在规整的合院中穿行,划破了原本过度严谨的空间秩序,新加的曲墙与原有建筑之间充满了天窗,阳光穿过隔栅照亮了室内弯转的墙面,也划分出了自由灵活的休闲空间。
The “Gourd Garden” is deviated slightly to the east side, which further enlarges the room in the west wing which has already utilized the “geared timber structure (gou lian da勾连搭)” method to obtain a large depth. The curved wall has a series of open and close bamboo steel screen doors and the continuous vertical grille filters the strong sunlight and provides a relatively private interior space in the courtyard. On the east side, the curved wall is sunk into the room, exposing a pillar. The curved wall, like a snake, travels through the ordinary courtyard and redefines the excessively rigorous spatial order. This new addition and the original building are filled with skylights, illuminating the interior while creating a free and flexible leisure space.
▼连续的竖向隔栅提供了相对私密的内部空间
the continuous vertical grille provides a relatively private interior space in the courtyard
▼曲墙与原有建筑之间充满了天窗,the new addition and the original building are filled with skylights
与传统四合院所有房子的窗户都开向院内不同,内外边界不再清晰;“葫芦院”的墙面相对封闭,竖向隔栅时而阻隔室内外的对望,时而又掀开一角允许一瞥,隔栅与玻璃之间成一斜角,不同时段的阳光可以照进户内,也让人从南侧观看曲墙更为通透,北侧看去会更为封闭,隔栅在东西两面墙上也方向不同,随着人在院中行走,墙的通透与开合也不断变化。相比传统合院的空间体验,“葫芦院”中室内空间向天空开放、向院内封闭的空间反转更强化了院落围合的向心性和精神性,反衬出中间空无一物的院子才始终是建筑的核心与高潮。
Different from the tradition of having all windows facing inward, the boundary from the outside became ambiguous. The walls of the “Gourd Garden” are relatively enclosed, and the vertical barrier prevents the direct confrontation between the interior and exterior space while one is sometime able to have a glimpse through the corners. The angle between the barrier and the glass is at an oblique angle, allowing sunlight in at different times of the day; and this design also allows people to have unique spatial experiences at different sides of the courtyard. Compared to traditional Siheyuans, the “Gourd Garden” has its interior space opened to the sky and separated from the courtyard; this spatial contrast strengthened the Siheyuan’s endocentric spirit and portrayed the importance of having an “empty core” to this form of vernacular architecture.
▼轴测图,axonometric drawing
▼墙的通透与开合不断变化,the spatial experiences change with different sides of the courtyard
两道曲墙向南延伸抵达另一个狭窄的开口,从这里进入第二进位于倒座房内的屋中庭院。南房仅仅修复了东西两边的三间屋顶,中部两间的屋顶用原先木架尺寸的竹钢梁架搭接,椽子采用十字交叉竹钢构件组合,在小院的正上方勾勒出葫芦形的轮廓。通透的竹钢板屋面一方面呼应了原有屋瓦的尺度,又形成屋面中间更为通透的效果,给屋中小院引入充足的阳光,便于树木生长。
Two curved walls extend southward to another narrow opening, from which they enter the second courtyard in the inverted room. Only three roof were repaired for the room on the south and the two in the middle utilized overlapping bamboo steel of the original wooden frame size to outline the gourd directly above the small courtyard. The transparent bamboo steel roof conforms to the scale of the original roof tile and forms a more see-through effect in the middle of the roof as it introduces a sufficient amount of sunlight to the small courtyard to facilitate the growth of the trees.
▼轴测拆解图,exploded axonometric
▼通透的竹钢板屋面给屋中小院引入充足的阳光
the transparent bamboo steel roof introduces a sufficient amount of sunlight to the small courtyard
▼树木被保留在场地中,the trees has been kept on the site
阳光透过隔栅屋面落下,院里树影斑驳,南墙上开有一条垂直窄缝,在一墙之隔的銮庆胡同与屋中小院之间留下一处对望和想象的缝隙。从这最后一进小院北向回望,曲墙回转之间露出青砖灰瓦、绿树蓝天,层层叠叠,无限延展。从南侧进入“葫芦院”会有与北侧进入截然不同的感受,从南大门进时先遇影壁,东拐进小门廊,从右侧进南房,或直行推开暗隔栅门进到院中间。
The sun falls through the grille roof, the shadows in the courtyard are mottled, and there is a vertical narrow slit between Zhaoqing Hutong and the small courtyard on the south wall that seemingly contains hope and imagination. The last entrance to the small courtyard, where the brick wall is covered with blue brick gray tiles, leads to a scene of green trees and the blue sky that have been stacked in layers, and infinitely extended. Entering the “Gourd Garden” from the south side is a completely different experience from the north side; you will first encounter the a wall with shadows then turn east into the small porch and finally entering the house on the south from the right side through a hidden door.
▼树影斑驳,the shadows in the courtyard are mottled
小院从使用上可以分为3个小单元,东厢房与东南角一间可以作为一套完整的小LOFT公寓居住,东厢房南侧隔出来的一个小庭院接纳了冬季温暖的阳光,院墙的反射让倒座的南房更加明亮。西南一角是两开间的办公空间;进深较大的西厢房可用作展览和活动空间,这些空间可分可合,位于南北的两个入口也可单独使用。
The small courtyard can be divided into three small units based on functionality. The east wing and the southeast corner can be used as two complete LOFT apartments. A small courtyard separated from the south side of the east wing brings in the warm sunshine in winter and the refraction makes the south wing brighter. The southwest corner is a (两开间的)office space; the deeper west wing which can be divided into two can be used as an exhibition and event space; the two entrances in the north and south can also be used separately.
▼屋面视角,roof top view
▼细节,detailed view
不同于横胡同四号院里用轻质通透的竹钢屏墙重新界定都市合院内的公共与私密空间,“葫芦院”的实验更进一步关注琐碎日常生活之上的精神性空间,这也是四合院最为内在和本质的生活内涵。我们几年的研究和实验证明:即便是这样一座破败的小院,在保持原有院落肌理不变的情形下,也可以通过当代的设计语言植入兼具传统人文精神的生活空间。
Different from the usage of lightweight transparent bamboo steel slabs in the No. 4 courtyard of Heng Hutong, to redefine public and private spaces in the urban courtyard, the experiment of “Gourd Garden” further attends to the spiritual space above the trivial daily life that is also the most intrinsic and essential life connotation of the courtyard. Many years of research and experiments have proved to us that even in such a dilapidated courtyard, it is possible to implant a living space with a traditional humanistic spirit through the language of contemporary design while maintaining the original architectural texture of the courtyard.
▼洒满阳光的葫芦院,Gourd Garden bathed in the sunlight
它重塑了传统合院的向心性,重拾起中国文人大隐于市、通过营造内向的小天地物化外部和本心的自然,重建喧嚣闹市中内心的平和。“葫芦院”的原型源于中国文人古老的理想世界——桃花源,然而它不是虚无缥缈的遥远幻影,而是就在都市日常之中。它也并不完全与世隔绝,它一直保有一条联系外部世界的出口,虽不易被发现,但通过“若有光”的黑暗通道而抵达一方平和内敛的小天地。在当下它不再是一片四面环山的田畴村落,而是都会之中的残山剩水,一片天、一瓢水、几株树,所向往的恰是大都会喧嚣之间若隐若现般芥子须弥式的存在。
It reshapes the endocentric spirit of the traditional courtyard, regains the prominence of the Chinese literati, and rebuilds the peace of the inner city by creating an introverted utopia to neutralize the bustling outside world. The prototype of the “Gourd Garden” originated from an ancient ideology in Chinese literati – Taohuayuan; here it is not a completely isolated illusion, rather it now exists in the daily life of the city. It is not secluded as it has maintained an export to the outside world. Although it is not easy to be discovered, it reaches a peaceful and restrained world through the dark passage of “if there is light”. In the present, it is no longer a village surrounded by mountains but a fragmented remain in the modernized city that still possessed the sky, one scoop of water, and a few trees. This utopia longs for a mysterious existence within the rowdy metropolis.
▼一方平和内敛的小天地,a peaceful and restrained world
这一实验的意义在于它通过自我隔绝以期重建与外部世界的联系,于是这葫芦小院作为一项实验便有了原型的意义,它试图以小博大,宣扬微小个体存在的价值。通过层层围合中裁剪出的一片天空揭示出一种更具普遍意义的旧城再生的空间模型,在外部尽可能保持原有传统格局和历史风貌的情形下,内部可以衍生出另类独特的空间体验。
The significance of this experiment is that it is attempting to re-establish the connection with the outside world through the method of self-isolation. Therefore, this small “Gourd Garden” has become a prototype as it tries to promote the value of the existence of every single individual. This utopia hidden within a set of layered enclosures reveal a more universally significant spatial model for the old city regeneration agenda. While we attempted to maintain the original, traditional and vernacular layout patterns and historical features as much as possible, the interior space can evolve into other unique spatial experiences.
▼屋顶平面图,roof plan
▼一层平面图,1st floor plan
项目名称:葫芦院 – 銮庆胡同37号院
设计公司:都市实践
项目地址:北京
项目规模:234平方米
建筑师:黎靖、李永才
设计团队:方雪、陆婧、刘羽、Bernat Riera、金晨佳(方案设计)| 李永才、王喆(建筑施工图)| 张溯源、崔谊、王思洁(设备施工图)
合作设计:荷捷建筑顾问(北京)有限公司 / H&J Internati
Project Name: Huluyuan - No. 37 Courtyard of Luanqing Hutong
Design Company: Urban Practice
Project address: Beijing
Project scale: 234 square meters
Architects: Li Jing and Li Yongcai
Design team: Fang Xue, Lu Jing, Liu Yu, Bernat Riera, Jin Chenjia (scheme design) | Li Yongcai, Wang Zhe (construction drawings) | Zhang Suyuan, Cui Yi, Wang Sijie (equipment construction drawings)
Collaborative design: Hoje Architecture Consulting (Beijing) Co., Ltd./H&J Internati



































