B.L.U.E. 办公室,北京/室内

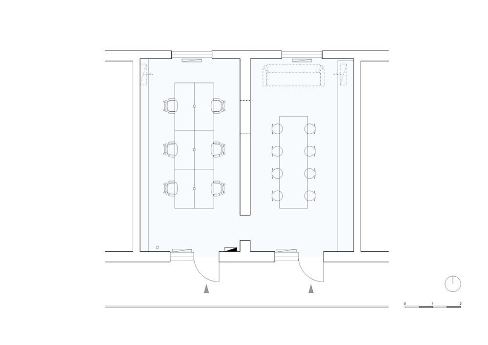
建筑原为旧厂房宿舍楼,空间格局规整,将这老旧红砖建筑物进行翻新改造,将原本两个独立的房间利用红砖构造的墙体不规则开洞形式,将办公区和会议室灵活的衔接在一起,另一侧为了避免对视而巧妙设置的圆孔,不但减少了因房间进深⻓长带来的压迫感,还可方便传递物品。
B.L.U.E. Architecture Studio is an office that fully takes the advantage of natural environment. We renovated the second level of this red brick building which used to be a residential build in for an old factory. We used a wall that’s made of red bricks to separate office and meeting room into 2 semi-closed space.

会议室墙面设置整体书架柜体,提供了足够的收纳空间;简洁的线状灯管设置巧妙的把整个空间连接成一体。办公区台面展示摆放的物件给整体办公空间添加了活跃气氛。
The circle opening on the wall not only takes away the intense feeling generated by eye contact, but also makes the act of passing items more convenient.We designed an area for both exhibition and storage on the entire interior wall; and a liner light bulb at top of the wall that knits the whole space into one unit.






















